Erna 2 Drewniana: Sielska Przystań w Sercu Natury
Piękny, prosty w nie byle jaki sposób - najpiękniejszy dom tego roku! Marzysz o wymarzonym domu na uboczu cywilizacji, gdzie zaznasz spokoju i wytchnienia od codziennego zgiełku? Erna 2 Drewniana to najpiękniejszy projekt, który urzeka cudnym designem i funkcjonalnym wnętrzem. Ten mały, ale przestronny dom idealnie sprawdzi się zarówno jako wygodne lokum dla rodziny, jak i wymarzona letniskowa oaza.
Harmonia natury i nowoczesności
Erna 2 Drewniana to nowoczesna interpretacja tradycyjnej stodoły. Elewacja z naturalnego drewna nadaje domowi przytulny i sielski charakter, a przeszklenia w ścianie szczytowej zapewniają doskonałe doświetlenie wnętrza i piękne widoki na otaczającą naturę.
Przemyślany rozkład pomieszczeń
Wnętrze domu zostało zaprojektowane z myślą o komforcie i funkcjonalności. Na parterze znajduje się otwarta część dzienna, łącząca salon, jadalnię i kuchnię. Duże przeszklenia tarasowe otwierają przestrzeń na ogród, zacierając granice między wnętrzem a naturą. Na parterze znajduje się również sypialnia, łazienka i pomieszczenie gospodarcze.
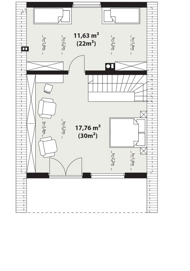
Poddasze to strefa prywatna, gdzie zaprojektowano dwie sypialnie i antresolę, która może pełnić funkcję dodatkowego pokoju lub miejsca do relaksu.
Dom na każdą kieszeń
Erna 2 Drewniana to projekt domu do 70m2, który może być budowany na zgłoszenie, co znacznie obniża koszty i czas budowy. Standardowo dom jest wyposażony w pompę ciepła i kominek, co zapewnia ekologiczne i ekonomiczne ogrzewanie.
Erna 2 Drewniana - idealny dla:
Rodzin szukających wytchnienia od zgiełku miasta: sielskie otoczenie i komfortowe wnętrze zapewniają idealne warunki do życia w zgodzie z naturą.
Miłośników natury: duże przeszklenia i drewniana elewacja zacierają granice między wnętrzem a naturą, dając poczucie bliskości otoczenia.
Osób ceniących nowoczesny design: połączenie tradycyjnej formy stodoły z nowoczesnymi elementami tworzy niepowtarzalny charakter domu.
Inwestorów szukających ekonomicznych rozwiązań: niski koszt budowy, możliwość budowy na zgłoszenie oraz ekologiczne rozwiązania grzewcze sprawiają, że Erna 2 Drewniana to idealny wybór dla każdego.
Dlaczego warto wybrać Erna 2 Drewnianą?
- Niewielka powierzchnia zabudowy: idealny na małą działkę.
- Możliwość budowy na zgłoszenie: szybki i tani proces budowy.
- Przemyślany rozkład pomieszczeń: komfort i funkcjonalność użytkowania.
- Ekologiczne rozwiązania grzewcze: pompa ciepła i kominek.
- Piękny design: połączenie tradycji i nowoczesności.
- Erna 2 Drewniana - Twój klucz do sielskiego szczęścia!



















