Dom BW-55 to unikatowy projekt, który idealnie spełni potrzeby czteroosobowej rodziny. Jego powierzchnia użytkowa wynosi 115,40 m², a powierzchnia ogrzewana gazem to 120,30 m². Budynek charakteryzuje się powierzchnią zabudowy 134,50 m² oraz powierzchnią dachu 184,60 m². Kubatura wynosi 747,90 m³, a wysokość budynku to 8,60 m.
Budynek został zaprojektowany w taki sposób, aby spełnić oczekiwania rodziny. Przyjęto prostą formę parterowego budynku z poddaszem użytkowym i dwuspadowym dachem o nachyleniu połaci wynoszącym 42°. Garaż został dobudowany, a jego dach stanowi płaski stropodach żelbetowy, który jest jednocześnie tarasem dostępnym z poziomu poddasza.
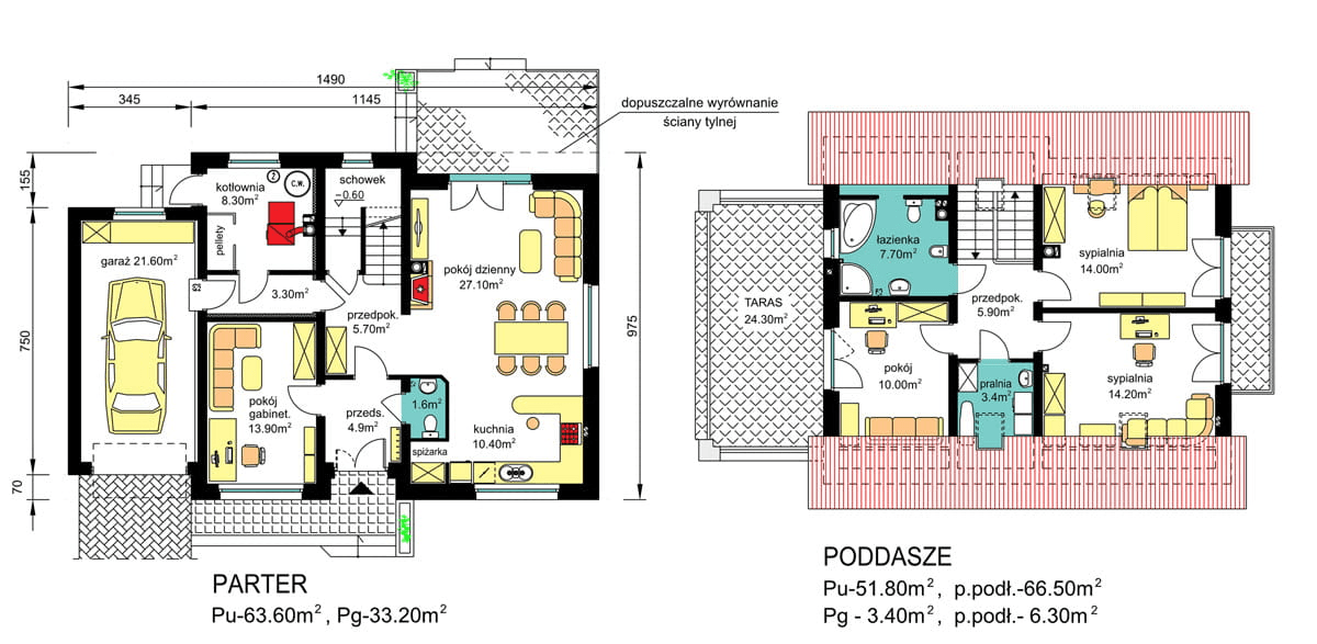
Projekt domu BW-55 wariant 3 uwzględnia dwie warianty funkcjonalne. W podstawowym założeniu przewidziano ogrzewanie na paliwo stałe z kotłownią wbudowaną. Dodatkowo, projekt zawiera wariant z ogrzewaniem gazowym, który pokazuje możliwe zmiany wewnętrzne, takie jak zamknięta kuchnia czy powiększona łazienka. Oba warianty mogą być dostosowane do indywidualnych preferencji i warunków terenowych.
Ten jednorodzinny dom wolnostojący jest parterowy, bez podpiwniczenia, z poddaszem użytkowym i jednostanowiskowym garażem dobudowanym na poziomie parteru. W programie użytkowym znajdują się 2 pokoje, kuchnia, węzeł sanitarny, kotłownia ze składem opału oraz garaż 1-stanowiskowy na parterze. Na poddaszu zaprojektowano 3 sypialnie, łazienkę oraz pralnię-suszarnię.
Dom BW-55 to doskonale zaprojektowane rozwiązanie dla rodziny, oferujące komfortowe i funkcjonalne wnętrza, przy zachowaniu estetyki i praktyczności.
Projekty domów lubianych i sprawdzonych.


















