BW 36 Wariant 10: Komfortowy dom dla 4-osobowej rodziny z potencjałem rozbudowy
Szukasz projektu domu, który łączy w sobie funkcjonalność, komfort i nowoczesny design? BW 36 Wariant 10 to idealna propozycja dla Ciebie! Ten parterowy dom z poddaszem użytkowym i garażem zapewnia komfortowe warunki życia dla całej rodziny, a także oferuje możliwość rozbudowy w przyszłości.
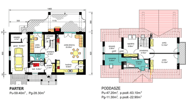
Przemyślany układ pomieszczeń
Na parterze domu znajduje się przestronny salon z kominkiem, który jest idealnym miejscem do wypoczynku i spędzania czasu z rodziną. Obok salonu znajduje się pokój gabinetowy, który może być wykorzystany jako biuro lub pokój zabaw dla dzieci. Kuchnia ze spiżarką jest funkcjonalna i wygodna w użytkowaniu. Na parterze znajduje się również łazienka i kotłownia.
Poddasze użytkowe z potencjałem
Poddasze domu oferuje trzy sypialnie, łazienkę oraz strych nad garażem. Strych można zaadaptować na funkcje mieszkalne, tworząc dodatkową sypialnię lub pokój gier.
Garaż i dodatkowe pomieszczenia
Garaż dobudowany do ściany bocznej budynku zapewnia bezpieczne miejsce parkingowe dla samochodu. Obok garaża znajduje się składzik, który można wykorzystać do przechowywania narzędzi lub innych rzeczy.
Możliwość rozbudowy
Projekt BW 36 Wariant 10 uwzględnia możliwość rozbudowy domu w przyszłości. Można to zrobić poprzez dodanie kolejnego segmentu garażowego lub powiększenie powierzchni domu o dodatkową część mieszkalną.
Energooszczędność i nowoczesne rozwiązania
Dom został zaprojektowany z myślą o energooszczędności. Ogrzewanie budynku może być realizowane z własnej kotłowni na paliwo stałe lub z wykorzystaniem instalacji gazowej. Projekt uwzględnia również możliwość instalacji systemów wspomagających ogrzewanie lub obniżających zużycie energii.
Atrakcyjna elewacja
Elewacja domu jest nowoczesna i minimalistyczna. Zastosowanie stonowanych kolorów i materiałów elewacyjnych nadaje domowi elegancji i ponadczasowego charakteru.
BW 36 Wariant 10 - idealny dom dla Twojej rodziny
Ten projekt to idealny wybór dla osób szukających komfortowego i funkcjonalnego domu dla rodziny. Przemyślany układ pomieszczeń, możliwość rozbudowy, energooszczędność i nowoczesne rozwiązania to tylko niektóre z jego zalet.
Opinia użytkownika na temat projektu BW-36 wariant 10
Piękny, kompaktowy i funkcjonalny - to idealne określenie naszego domu BW-36 wariant 10! Mieszkamy w nim już od roku i z całą pewnością możemy stwierdzić, że był to strzał w dziesiątkę.
Projekty domów lubianych i sprawdzonych.

























