Wydawałoby się projekt jak ich wiele, prosty dom z dachem dwuspadowym i prosta bryła budynku. Nic bardziej mylnego, projekt domu Werbana lux dosłownie jest projektem prostym, ale zapewniajacym użytkownikowi maksimum luksusu na etapie użytkownia domu.
Ten parterowy dom z poddaszem użytkowym zachwyca swoją elegancją i wygodą.
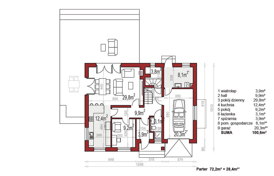
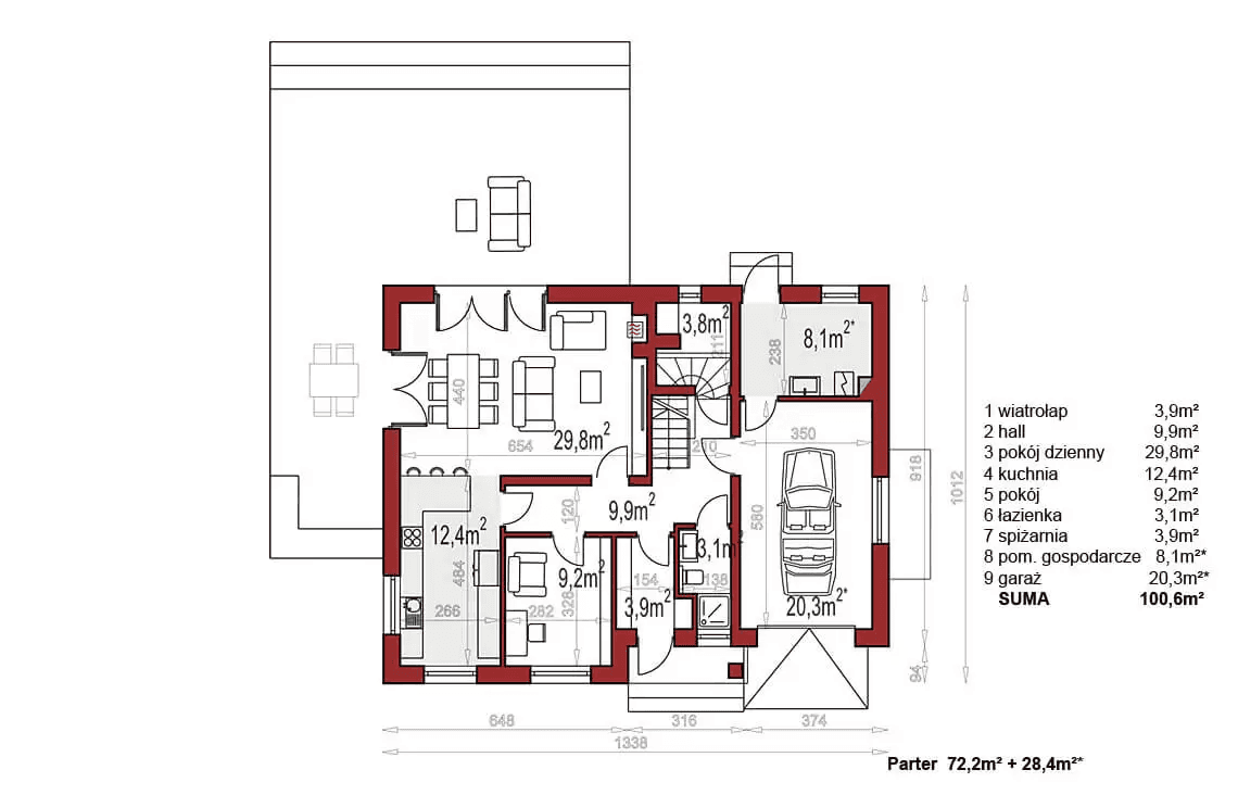
Główną częścią domu jest przestronny salon z jadalnią, który harmonijnie łączy się z przytulną kuchnią. Przy wejściu znajduje się również wszechstronny pokój, który może pełnić funkcję gabinetu, domowego biura lub sypialni dodatkowej.
Na parterze znajduje się także łazienka z prysznicem, ułatwiająca korzystanie z pokoju na tym poziomie, który może pełnić rolę sypialni. Dodatkowo, istnieje druga łazienka z prysznicem, co jest niezwykle przydatne, szczególnie gdy wszyscy domownicy chcą zadbać o higienę osobistą niemal jednocześnie. Wysoko umieszczone okno w kabinie prysznicowej zapewnia nie tylko naturalne światło, które dodaje uroku temu pomieszczeniu, ale również zapewnia prywatność i ochronę przed zachlapaniem.
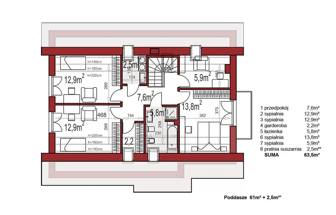
Na piętrze znajdują się trzy sypialnie, w tym jedna główna, większa. Dodatkowo, jest tam również niewielki pokój, który może pełnić rolę dodatkowej sypialni lub zostać połączony z główną sypialnią, tworząc przestronną garderobę lub łazienkę - idealny "master bedroom". Łazienka na piętrze jest wygodna i kompletnie wyposażona. Obok niej znajduje się praktyczna garderoba, a po przeciwnej stronie umieszczona została pralnia-suszarnia, które w pełni uzupełniają komfort użytkowania domu Werbana A Lux.
Gotowy projekt domu Werbana A Lux to doskonale zaprojektowane i funkcjonalne miejsce, które zapewnia komfortowe warunki dla wszystkich mieszkańców.
W projekcie, ba, w domu Werbena a lux, każdy domownik będzie czuł się idealnie.
Dom Werbana A Lux to doskonała propozycja dla tych, którzy pragną mieć swoje własne biuro, bibliotekę lub pomieszczenie dedykowane swoim pasjom
Projekty domów jednorodzinnych i bliźniaczych

























