Projekt Eco 30 to dom gotowy bez garażu, co pozwoli na elastyczne wykorzystanie przestrzeni na działce. Wysoka jakość materiałów oraz staranne wykonanie zapewnią trwałość i niezawodność budynku przez wiele lat. Projekt ten został stworzony z myślą o zapewnieniu jak najlepszej jakości życia dla jego mieszkańców.
Dom Eco 30 to doskonała propozycja dla rodzin z dziećmi, które cenią sobie swobodę i przestrzeń. Funkcjonalny układ pomieszczeń pozwala na wygodne użytkowanie każdej części domu. Na parterze znajduje się przestronny salon z jadalnią, gdzie cała rodzina będzie mogła spędzać czas razem. W pobliżu kuchni usytuowano spiżarnię, co ułatwi przechowywanie zapasów i żywności. Dodatkowy pokój na dole może pełnić funkcję gabinetu lub sypialni dla seniora, co czyni ten projekt szczególnie atrakcyjnym dla rodzin wielopokoleniowych.
Na piętrze znajdują się 2 pokoje z wyjściem na balkon oraz sypialnia z garderobą i balkonem francuskim, co daje wiele możliwości aranżacyjnych i umożliwia zapewnienie prywatności dla każdego z domowników.
Eco 30 to projekt energooszczędnego domu z poddaszem, który wyróżnia się nie tylko swoim minimalistycznym, ale i funkcjonalnym wyglądem. Projekt ten to doskonałe rozwiązanie dla osób, które cenią sobie komfortowe i ekonomiczne mieszkanie. Dom został zaprojektowany z myślą o oszczędzaniu energii, co przełoży się na niższe rachunki za ogrzewanie i chłodzenie.
Eco 30 to projekt idealny dla osób, które cenią sobie wysoką jakość życia, ekologię i oszczędność. Ten dom z poddaszem to doskonałe rozwiązanie dla rodzin, które szukają funkcjonalnego i energooszczędnego domu. Zaprojektowany z myślą o zapewnieniu jak najlepszych warunków dla mieszkańców, Eco 30 to idealny wybór dla wymagających inwestorów.
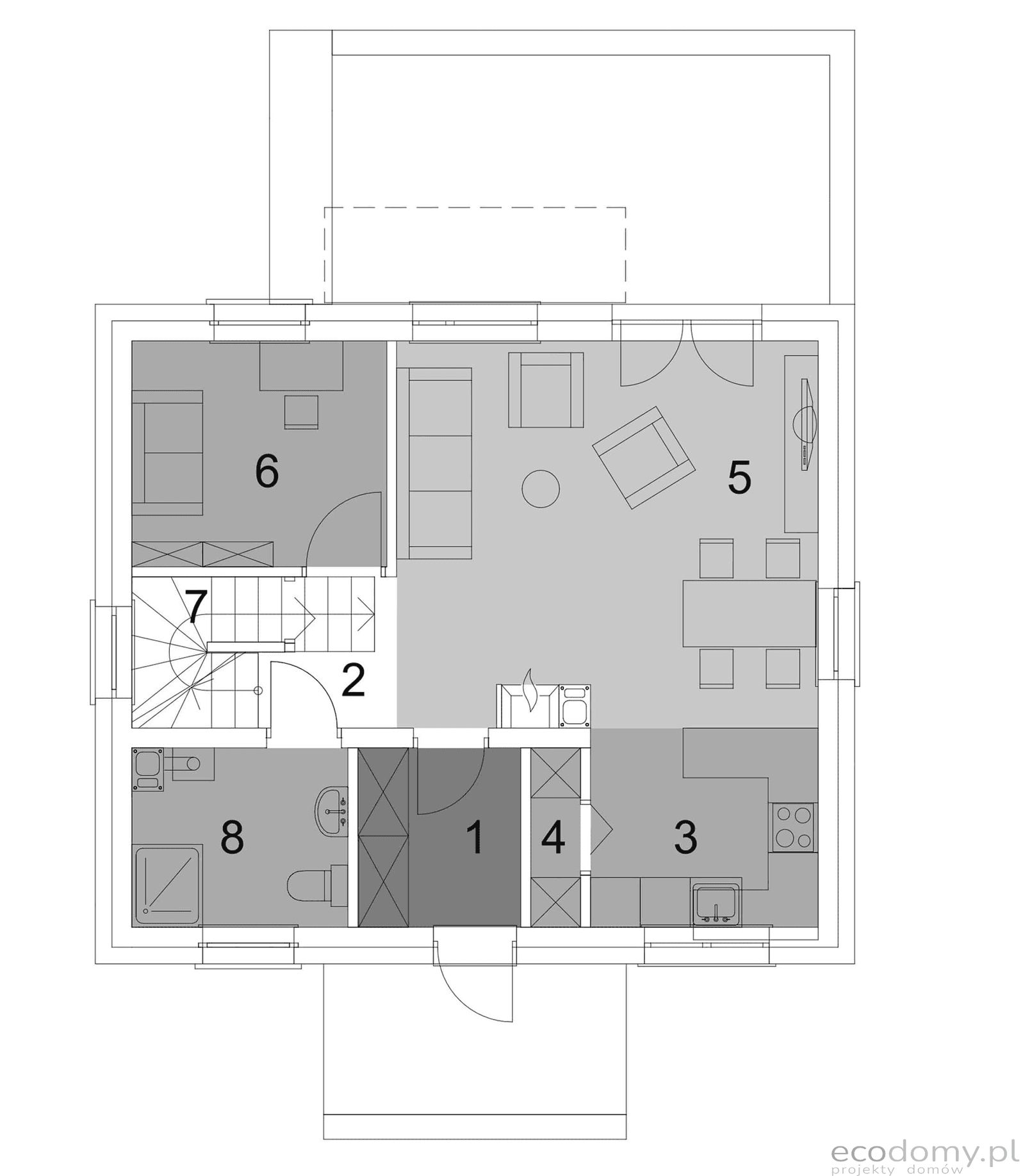
Opis parteru zestawienie powierzchni:
1. Wiatrołap: 4,15 m2
2. Korytarz: 5,61 m2
3. Kuchnia: 6,47 m2
4. Spiżarnia: 1,24 m2
5. Pokój dzienny + jadalnia: 21,85 m2
6. Gabinet: 8,23 m2
7. Schowek: 1,40 m2
8. Łazienka: 5,32 m2
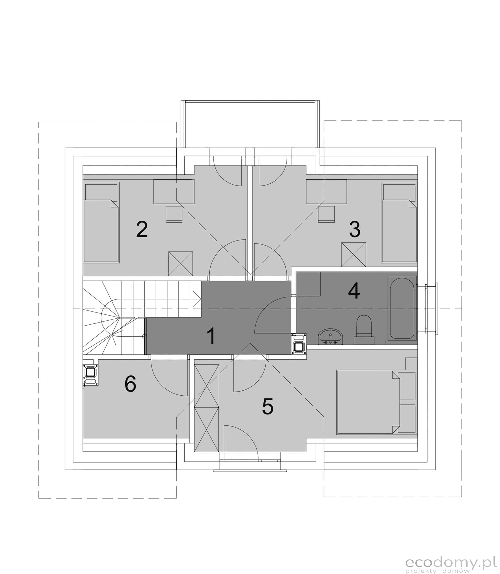
Opis poddasza zestawienie powierzchni:
1. Korytarz: 5,20 m2
2. Pokój: 8,67 m2
3. Pokój: 8,17 m2
4. Łazienka: 5,23 m2
5. Sypialnia: 10,90 m2
6. Garderoba: 3,69 m2
Kolekcja zawiera warianty domów w zabudowie bliźniaczej, szeregowej i jako projekty dwulokalowe. Polecamy zgrabne, funkcjonale projekty z potencjałem.
















