Projekt domu Eco 33 to idealne rozwiązanie dla osób, które poszukują domu parterowego o prostych i eleganckich kształtach, jednocześnie zapewniającego wysoki komfort użytkowania. Duża ilość przeszkleń w projekcie domu przyciąga wzrok, a jednocześnie zapewnia dużo naturalnego światła wewnątrz pomieszczeń. Dzięki obszernemu pomieszczeniu gospodarczemu, w projekcie domu Eco 33 przewidziano także miejsce na przechowywanie produktów spożywczych, co z pewnością doceni każda pani domu.
Wyjątkowy i lubiany projekt domu parterowego na wąskie działki z bardzo optymalnym układem pomieszczeń, tutaj każda powierzchnia jest wykorzystana prawidłowo. Kąt dachu zapewnia mozliwość wykorzystania poddasza na użytkowy strych lub poddasze.
Eco 33 to także projekt domu, który można łatwo dostosować do swoich potrzeb. W projekcie przewidziano możliwość adaptacji strychu, co pozwoli na zwiększenie przestrzeni mieszkalnej, jeśli zajdzie taka potrzeba. Dom posiada także garaż jednostanowiskowy.
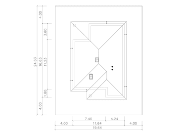
Eco 33 to doskonale przemyślany projekt domu parterowego z dachem wielospadowym o kącie nachylenia wynoszącym 30 stopni. Dom ten wyróżnia się elegancką, prostą bryłą, która zachwyca swoim wyglądem. Projekt został zaprojektowany z myślą o 3-4 osobowej rodzinie, poszukującej domu, który zapewni im komfort i funkcjonalność.
Główną zaletą projektu jest przestronny salon i jadalnia, połączone z otwartą kuchnią, co tworzy powierzchnię ponad 48 m2. Dzięki temu pomieszczeniu, cała rodzina może spędzać czas razem, a jednocześnie mieć swoją przestrzeń. Strefa nocna została oddzielona od dziennej korytarzem, który prowadzi do dwóch pokoi oraz ustawnej sypialni. Dzięki temu rozwiązaniu, każdy z domowników ma swoje prywatne miejsce do odpoczynku.
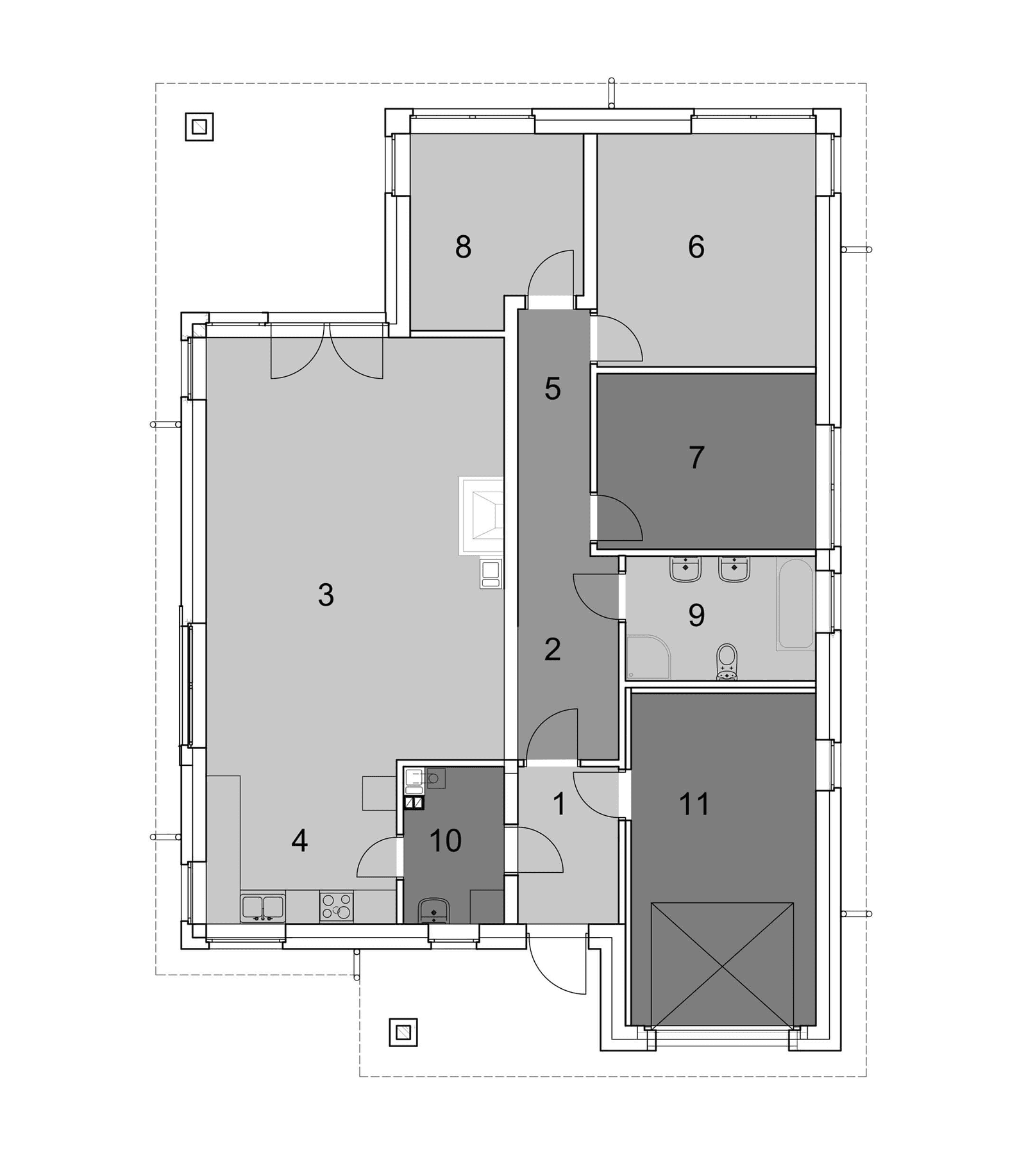
Prezentujemy opis powierzchni pomieszczeń na rzucie parteru Eco33:
1. Wiatrołap: 4,85 m2
2. Hol: 6,28 m2
3. Pokój dzienny + jadalnia: 39,27 m2
4. Kuchnia: 9,69 m2
5. Korytarz: 5,48 m2
6. Sypialnia: 15,69 m2
7. Pokój: 11,81 m2
8. Pokój: 9,62 m2
9. Łazienka: 7,27 m2
10. Kotłownia: 4,58 m2
11. Garaż: 19,34 m2
Kolekcja zawiera warianty domów w zabudowie bliźniaczej, szeregowej i jako projekty dwulokalowe. Polecamy zgrabne, funkcjonale projekty z potencjałem.





















