Kompaktowa bryła, prosty obrys, wymagający użytkownik, który chce oddzielić strefę nocną od dziennej na małej przestrzeni to naprawdę wyjątkowe atuty tego proejktu domu.
Eco 34 to gotowy projekt nowoczesnego i funkcjonalnego parterowego domu, stworzony specjalnie dla wymagającej wąskiej działki. Dzięki zastosowaniu przemyślanego układu pomieszczeń, projekt ten zapewnia przestrzeń i wygodę mieszkania dla 3-4 osobowej rodziny. Kopertowy dach oraz prosta bryła budynku tworzą ponadczasową elegancję, a duże przeszklenia w salonie i jadalni zapewniają dostęp do naturalnego światła.
Mimo dachu wielospadowego projekt domu Eco 34 zachowuje cechy domu taniego w budowie, z wagi na fakt, że dach jest czterospadowy, prosta konstrukcja zapewnia oszczędności w tej materii.
Strefa nocna oddzielona jest od dziennej korytarzem, który prowadzi do trzech ustawnych pokoi, z których jeden zlokalizowany jest od frontu domu, a pozostałe dwa od ogrodu. W projekcie przewidziano także przestronną łazienkę z wanną, oddzielną toaletę z kabiną prysznicową oraz pomieszczenie gospodarcze, które może pełnić funkcję pralni. Warto podkreślić, że projekt ten posiada także zadaszony taras, który zapewnia idealne warunki do odpoczynku na świeżym powietrzu
Jasny i przestronny salon połączony z jadalnią oraz otwartą kuchnią to serce domu, tworząc powierzchnię 40 m2. Dodatkowo, kuchnia posiada spiżarnię, z której drugie wejście prowadzi od wiatrołapu.
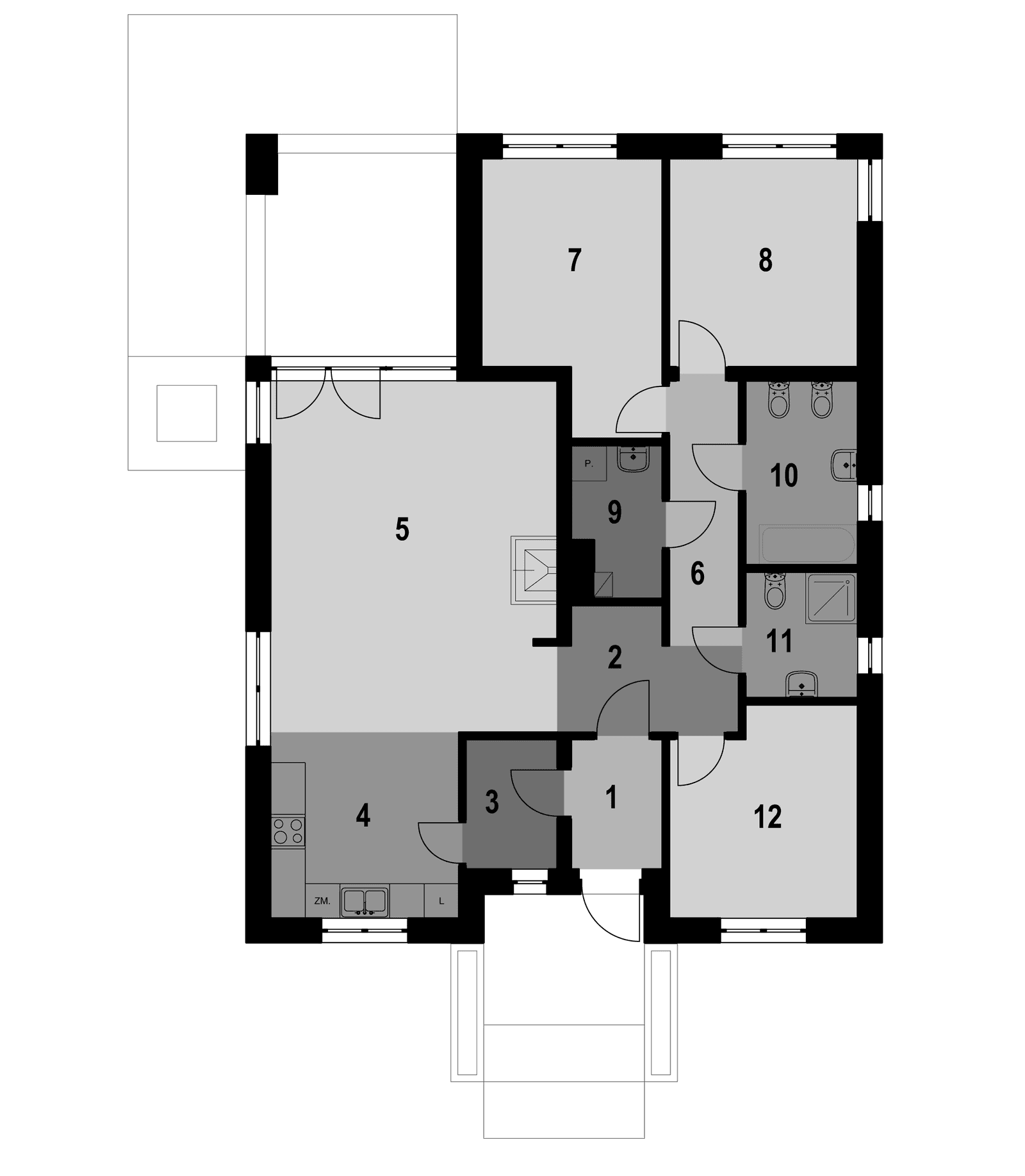
Spójrzmy na opis pomieszczeń w projekcie domu Eco 34:
1. Wiatrołap: 3,46 m2
2. Hol: 5,80 m2
3. Spiżarnia: 3,46 m2
4. Kuchnia: 10,42 m2
5. Pokój dzienny z jadalnią: 29,88 m2
6. Korytarz: 5,38 m2
7. Pokój: 13,06 m2
8. Pokój: 11,61 m2
9. Pom. gospodarcze: 3,69 m2
10. Łazienka: 6,07 m2
11. Łazienka: 4,13 m2
12. Pokój: 11,11 m2
Kolekcja zawiera warianty domów w zabudowie bliźniaczej, szeregowej i jako projekty dwulokalowe. Polecamy zgrabne, funkcjonale projekty z potencjałem.






















