Dom Eco 36 to projekt domu jednorodzinnego o wyjątkowo funkcjonalnej bryle, która idealnie wpisuje się w klasyczne, a zarazem nowoczesne trendy.
Projekt składa się z jednego poziomu, co zapewnia komfort użytkowania dla 4 osobowej rodziny. Strefa dzienna to duży, otwarty salon z jadalnią oraz kuchnią ze spiżarnią, które łącznie zajmują ponad 46 m² powierzchni. Pomieszczenia te są bardzo jasne i przestronne, co pozwala na swobodne aranżowanie wnętrza.
Korytarz prowadzący do części nocnej oddziela prywatną strefę domu od części dziennej. W tym miejscu znajdują się trzy sypialnie, w tym główna z dużym oknem, zapewniającym mnóstwo naturalnego światła. Sypialnia ta ma przyległą garderobę, a pozostałe dwa pokoje są zlokalizowane w pobliżu dwóch łazienek - jednej z wanną oraz drugiej, bardziej kompaktowej, z prysznicem.
W części zewnętrznej, projekt przewiduje zadaszony taras, który jest świetnym miejscem na relaks i odpoczynek. Całkowita powierzchnia użytkowa domu wynosi około 115 m², co jest wystarczającą przestrzenią dla 4 osobowej rodziny. Eco 36 to idealne rozwiązanie dla osób ceniących sobie funkcjonalność, nowoczesność i estetykę.
Projekt ma piękną oprawę, nowocześnie i ze smakiem. Drewniana okładzina w połączeniu z antracytowym dachem i dużymi przeszkleniami stanowią nie tylko wyjątkowe rozwiązanie estetyczne, ale również gwarantują dostateczną ilość światła naturalnego do wnętrza.
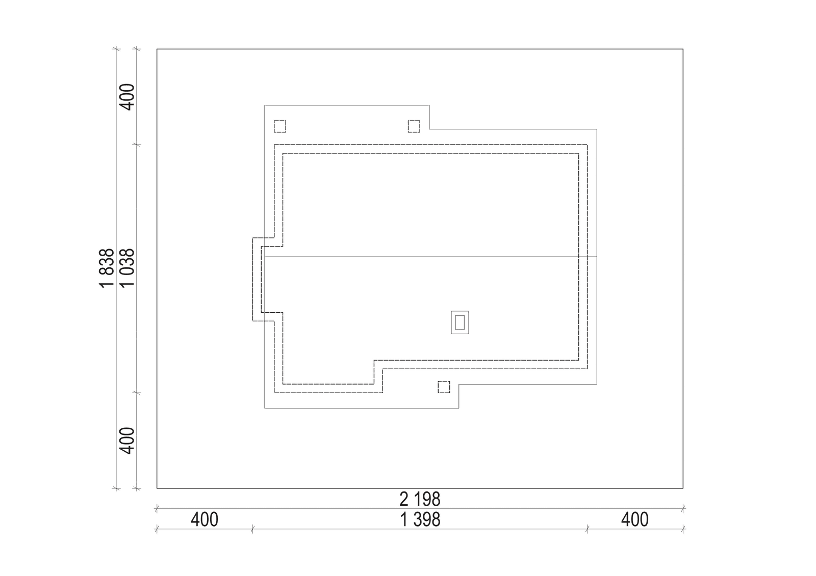
Rzut parteru:
1. Wiatrołap: 2,28 m2
2. Korytarz: 9,78 m2
3. Spiżarnia: 1,20 m2
4. Kuchnia: 8,84 m2
5. Pokój dzienny z jadalnią: 36,38 m2
6. Pokój: 13,50 m2
7. Garderoba: 1,87 m2
8. Pokój: 11,68 m2
9. Łazienka: 4,86 m2
10. Pokój: 8,72 m2
11. Łazienka: 2,66 m2
12. Kotłownia: 3,23 m2
Kolekcja zawiera warianty domów w zabudowie bliźniaczej, szeregowej i jako projekty dwulokalowe. Polecamy zgrabne, funkcjonale projekty z potencjałem.























