Ten piękny projekt domu Eco 37 z pewnością zadowoli każdego, kto poszukuje funkcjonalnego i eleganckiego domu z poddaszem i garażem.
Charakterystyczną cechą tego projektu jest duże wykorzystanie przeszkleń, które w połączeniu z drewnianą okładziną i dachem pokrytym blachą na rąbek bez okapów tworzą niezwykle stylowy i nowoczesny wygląd. Wnętrze domu składa się z przestronnego salonu z jadalnią oraz kuchni ze spiżarnią. Dodatkowo, na parterze znajduje się pokój z pięknym widokiem na ogród, który może służyć jako pokój dla seniora.
Jednostanowiskowy garaż wyposażony jest w praktyczne rozwiązanie w postaci dodatkowego wyjścia od strony ogrodu, co zapewnia łatwiejszy dostęp do domu.
Część nocna domu znajduje się na piętrze i składa się z jasnego korytarza prowadzącego do trzech sypialni. Dwie z nich są podobnej wielkości i wyposażone w duże okna, a trzecia to sypialnia główna z garderobą i dostępem do dużego tarasu nad garażem.
Gotowy projekt Eco 37 to projekt eleganckiego domu jednorodzinnego, zbudowanego z wykorzystaniem technologii tradycyjnej, której prosta bryła jest wzbogacona o nowoczesne akcenty. Ten piękny dom z poddaszem użytkowym został zaprojektowany z myślą o rodzinie składającej się z 4-5 osób, co czyni go idealnym miejscem do życia dla wielu rodzin.
Opis rzutu parteru w projekcie domu Eco 3:
1. Wiatrołap: 2,83 m2
2. Korytarz: 14,73 m2
3. Pokój dzienny: 26,35 m2
4. Kuchnia: 7,51 m2
5. Spiżarnia: 1,97 m2
6. Pokój: 9,96 m2
7. Łazienka: 3,48 m2
8. Kotłownia: 6,57 m2
9. Garaż: 19,52 m2
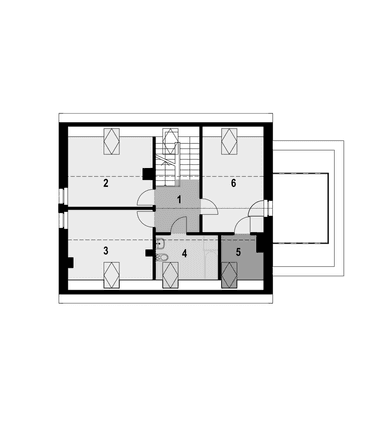
Opis rzutu poddasza w projekcie domu Eco 38:
1. Korytarz: 5,43 m2
2. Pokój: 10,90 m2
3. Pokój: 11,19 m2
4. Łazienka: 4,17 m2
5. Garderoba: 2,37 m2
6. Sypialnia: 12,11 m2
Kolekcja zawiera warianty domów w zabudowie bliźniaczej, szeregowej i jako projekty dwulokalowe. Polecamy zgrabne, funkcjonale projekty z potencjałem.
























