Lubiany i tani w budowie projekt domu jednoordiznnego Eco 43 to propozycja domu dla wszystkich szukających prostych rozwiązań i małego, ale funkcjonalnego projektu parterowego.
Eco 43 to dom parterowy z możliwością adaptacji poddasza, przeznaczony dla 3-4 osobowej rodziny. Jego charakterystyczną cechą jest starannie przemyślany układ funkcjonalny z wyraźnym podziałem na strefy. Strefę dzienną tworzy otwarta kuchnia połączona z jadalnią i przestronnym, jasnym salonem.
Duże okna w salonie zapewniają dużą ilość naturalnego światła oraz wspaniały widok na taras i ogród. Projekt obejmuje również trzy podobnej wielkości, doskonale doświetlone sypialnie, które tworzą strefę nocną domu.
Popularność tego projektu domu jest ogromna, projekt Eco 43 jest określany jako dom sprawdzony i lubiany, cieszy się uznaniem Inwestorów.
Dom parterowy o nazwie Eco 43 to doskonała propozycja dla zarówno prywatnych inwestorów, jak i deweloperów. Jego prosta i zwarta bryła, zwieńczona dwuspadowym dachem, zapewni ekonomiczny charakter inwestycji oraz krótki czas budowy. Taka konstrukcja nie tylko pozwoli zaoszczędzić na kosztach budowy i eksploatacji, ale również doskonale wpisze się w każdy krajobraz. Jasny tynk i drewniana okładzina idealnie komponują się z ciemną dachówką.
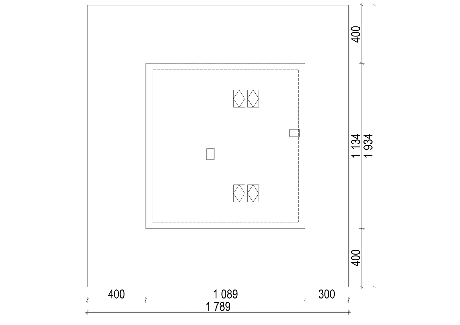
Parter:
1. Wiatrołap: 3,57 m2
2. Hol ze schodami: 10,98 m2
3. Kuchnia: 8,28 m2
4. Salon z jadalnią: 24,10 m2
5. Toaleta: 2,03 m2
6. Pom. gospodarcze: 2,16 m2
7. Pokój: 10,55 m2
8. Pokój: 10,28 m2
9. Łazienka: 5,50 m2
10. Pokój: 11,00 m2
Poddasze:
1. Poddasze do adaptacji: 42,27 m2
Kolekcja zawiera warianty domów w zabudowie bliźniaczej, szeregowej i jako projekty dwulokalowe. Polecamy zgrabne, funkcjonale projekty z potencjałem.




















