E-128

Specyfikacja i charakterstyka projektu

Cena brutto za produkt
6490zł

Kurs Budowy Domu (o wartości 479 zł) w prezencie!
Oferta ważna tylko do 30.01!

visualizations 2
Cena brutto za produkt
6490zł

Kurs Budowy Domu (o wartości 479 zł) w prezencie!
Oferta ważna tylko do 30.01!

Parametry podstawowe

Nazwa projektu
E-128
Rodzaj zabudowy
Jednorodzinny
Powierzchnia użytkowa
162.04m2
Darmowe rysunki
TAK
Darmowa wycena budowy
TAK
Masz pytania? - zadzwoń: ,[object Object]
Masz pytania? - zadzwoń: 791 258 345
Kup projekt - 6490.00 zł
Gwarancja najniższej ceny
Gwarancja najniższej ceny
Darmowa wysyłka
Darmowa wysyłka
Pakiet korzyści w zestawie
Pakiet korzyści w zestawie

Masz pytania? Skontaktuj się z doradcą!
Masz pytania? Skontaktuj się z doradcą!
 Napisz email

Parametry techniczne projektu

Styl
Nowoczesny
Powierzchnia zabudowy
172.72m2
Kubatura netto
586.47m3
Technologia konstrukcji
Murowana
Wysokość budynku
7.99m
Min. wymiary działki
22x24m
Kąt nachylenia dachu
35°
Rodzaj dachu
Wielospadowy
Powierzchnia dachu
280.00m2
Liczba pokoi
5
Rodz. garażu
Dwustanowiskowy
Liczba kondygnacji
2
Rodz. poddasza
Użytkowe
Energooszczędny
TAK
Rodz. ogrzewania
Paliwo stałe, Pompa ciepła
Wentylacja
Grawitacyjna
black week

Specjalna promocja

Kurs Budowy Domu
w prezencie!
ZOBACZ OFERTĘ
Prezent o wartości 479 zł brutto
kurs budowy domu w gratisie!

📂 Uzyskaj rysunki szczegółowe do projektu

Szczegółowy opis projektu

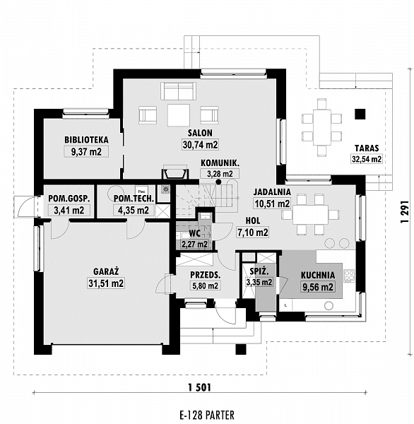
Projekt nowoczesnego domu z czterospadowym dachem. Dom E-128 to prosta bryła połączona z uniwersalnym układem funkcjonalnym. W części dziennej zaplanowano salon z jadalnią oraz otwartą kuchnię z jadalnią. W części sypialnej zaplanowano: trzy sypialnie (w tym jedną z łazienką), pomieszczenie rekreacyjne oraz pełnowartościową łazienkę z wanną i prysznicem.



Ściany zewnętrzneceramika + 18cm styropian
Stropywylewane żelbetowe
Dachy - pokryciedachówka cementowa
Dachy - ocieplenie 25-30cm wełna mineralna
Ocieplenie posadzki na gruncie20cm styropian
Oknadrewniane
Wykończenie cokołówklinkier lub kamień

Informacje szczegółowe

➡ Najczęściej wprowadzane zmiany, warianty i adaptację projektu

💰 Szacunkowy koszt realizacji budowy projektu

🚀 Wycena budowy projektu w technologii szkieletowej/modułowej

Zalety zakupu projektu na wybieramprojekt.pl

Nasze biuro posiada szeroki zakres usług związanych z adaptacją gotowych projektów do warunków konkretnej działki, doradztwem w zakresie kosztorysów i technologii oraz budową domu. Do zakupu każdego projektu dodajemy również obszerny pakiet korzyści.

Adaptacja projektu
Każdy projekt należy adaptować do warunków indywidualnych danej działki. Z nami załatwisz adaptacje zdalnie na terenie całej Polski lub bezpośrednio w zależności od lokalizacji. Posiadamy wieloletnie doświadczenie w pracy zdalnej z urzędami w całej Polsce.
Projekt wnętrza
Oferujemy kompleksowe usługi projektowania i aranżacji wnętrz, dostosowane do Twoich indywidualnych potrzeb i budżetu. Współpracujemy z Tobą na każdym etapie projektu, od konsultacji i opracowania koncepcji, po wybór materiałów i nadzór nad realizacją.
Projekt z budową
Budowa domu szkieletowego z nami to oszczędność i perspektywa ciepłego domu! Ciepły dom szkieletowy - zacznij ogrzewać dopiero w styczniu! Marzysz o domu, w którym zawsze jest ciepło i przytulnie? Nasze domy szkieletowe to gwarancja komfortu termicznego przez cały rok!

Pakiet korzyści w zestawie przy zakupie projektu

[object Object]
Dziennik Budowy
[object Object]
Odautorska zgoda na zmiany w projekcie
[object Object]
Dodatkowa zgoda na zmiany
[object Object],
    ,[object Object],
    ,[object Object]
Adaptacja do działki w cenie 3500 zł
[object Object]
Charakterystyka energetyczna
[object Object],
    ,[object Object],
10% Rabatu na pełen asortyment PSB MERKURY!
[object Object],
    ,[object Object],
    ,[object Object],
10 % Rabatu na materiały budowlane ciężkie
[object Object],
    ,[object Object],
    ,[object Object],
    ,[object Object],
20% Rabatu na aktualny kosztorys inwestorski
[object Object],
    ,[object Object],
    ,[object Object],
    ,[object Object],
Materiały budowlane, wykończeniowe PSB oraz projekty wnętrz - w jednym miejscu!

        ,[object Object],
        ,[object Object],
Projekt i realizacja kuchni z indywidualnym rabatem!

        ,[object Object],
Bezpłatna analiza Kredytu Budowa Domu

Uzyskaj informacje o korzystnych kredytach na budowę domu

Skorzystaj z bezpłatnej pomocy eksperta finansowego

💼 Zawartość gotowego projektu architektoniczno-budowlanego

Każdy PROJEKT GOTOWY to wysokiej jakości dokumentacja architektoniczno-techniczna sporządzona wedle wytycznych Prawa Budowlanego, pozwalajaca złożyć dokumentację w urzędzie do zgłoszenia budowy lub do pozwolenia na budowę. Wszystkie nasze projekty gotowe i projekty gotowe autorów, z którymi współpracujemy są zweryfikowane i posiadają zaświadczenie o zgodności projektu z PB. Dostępność i aktualizacje każdego projektu są indywidualnie potwierdzane.

 
Każdy gotowy projekt jest zgodny z Prawem Budowlanym i zawiera:
 

  • Projekt opisowo-architektoniczny
  • Projekt techniczny
  • Zgodę na modyfikację projektu i adaptację
  • Kopię uprawnień architektów i branżystów
  • Projekty domów posiadają charakterystykę energetyczną (brak w projektach garaży i gospodarczych)

 
Szczegółową zawartość projektu możesz sprawdzić na stronie:
Zawartość projektu gotowego

 
Każdy projekt gotowy domu jednorodzinnego możemy zanalizować pod kątem zgodności z działką i omówić zmiany planowane w projekcie. Z nami zyskujesz kompleksowo bezpieczeństwo zakupu projektu!

✍🏻 Standardowa zgoda na zmiany do projektu

Co możesz modyfikować?

 
Standardowa zgoda to szeroki zakres możliwości. Pamiętaj od nas UZYSKASZ INDYWIDUALNĄ DODTAKOWĄ ZGODĘ BEZPŁATNIE na Twoje życzenie. STANDARDOWO DOŁĄCZANA ZGODY NA ZMIANY obejmuje:
 

  • zmianę funkcji użytkowania pomieszczeń,
  • zmiany technologiczne i materiałowe - rodzaj stropu, materiały ścienne, izolacyjne i wykończeniowe, pokrycie dachowe,
  • dostosowanie posadowienia budynku do warunków geotechnicznych,
  • wykonanie podpiwniczenia budynku,
  • zmiany usytuowania ścian działowych,
  • zmiana wielkości, ilości i lokalizacji otworów drzwiowych i okiennych,
  • zmiana nachylenia kąta połaci dachowej do 5 stopni,
  • zmiany w wymiarach zewnętrznych budynku w zakresie 5%,
  • zmiana materiałów instalacyjnych i przebiegu instalacji wewnętrznych.
  • Warto uzyskać dodatkowa zgodę na zmiany* :
  • zmianę sposobu ogrzewania budynku,
  • zmianę usytuowania kominów,
  • likwidację/doprojektowanie balkonów, podcieni, lukarn,
  • zmianę usytuowania i kształtu tarasu,
  • podniesienie ścianki kolankowej,
  • zmianę wysokości budynku.

 
w/w zmiany pojawiają się bardzo często już na etapie wykonywania adaptacji, czy też realizacji budowy.


Potrzebujesz więcej informacji technicznych dotyczących projektu, by zamówić projekt domu, zapraszamy. Informację dotyczące warunków zakupu i zwrotów dostępne są na stronie Regulaminu, o szczegółach dotyczących czasu realizacji projektu, warunków zakupu i warunków wymian lub zwrotów poinformuje doradca po sprawdzeniu konkretnych warunków zakładanych przez konkretnego autora projektu.

Warunki zwrotów

W naszej pracowni macie Państwo możliwość:

- zwrotu projektu do 30 dni od dnia otrzymania projektu,
- jednorazowej wymiany projektu do 365 dni od dnia otrzymania projektu.

Zwracany lub wymieniany projekt powinnien zostać odesłany w stanie kompletnym (4 egz.) i niezmienionym. Pieniądze za zwracany projekt, zostaną przekazane Kupującemu w terminie do 7 dni roboczych, licząc od dnia otrzymania projektu, na wskazane przez Kupującego - konto bankowe. Po zgłoszeniu zwrotu towaru Kupujący zwraca zakupiony towar. Po otrzymaniu zwróconego towaru wystawiamy fakturę korygującą i przesyłamy do Kupującego, a ten podpisuje i odsyła kopię. Gwarantujemy zwrot kwoty równej cenie towaru, po otrzymaniu podpisanej przez Kupującego kopii faktury korygującej. W przypadku wymiany projektu, termin wysyłki ustalany jest indywidualnie. Do odsyłanych projektów prosimy dołączyć oryginał otrzymanej faktury VAT. Zwroty nie będą przyjmowane w przypadku, gdy projekt ma widoczne ślady kopiowania oraz gdy został zniszczony lub uszkodzony.

Koszty związane z wymianą projektu:

1. Wymiana projektu w terminie do 30 dni od dnia doręczenia jest bezpłatna.
2. Koszt wymiany w terminie od 31 - 60 dni od dnia doręczenia wynosi 369zł brutto.
3. Koszt wymiany w terminie od 61 - 90 dni od dnia doręczenia wynosi 738zł brutto.
4. Koszt wymiany w terminie od 91 - 365 dni od dnia doręczenia wynosi 30% obecnej wartości projektu.
W przypadku wymiany projektu na droższy, Kupujący pokrywa dodatkowo koszt różnicy w cenie.

Informacje ogólne dotyczące działania sklepu internetowego zawarte są na stronie Regulaminu

Opinie o nas w Google Reviews

avatar
star 1star 2star 3star 4star 5

Ocena: 5/5

Liczba opinii: 27

avatar

Daniel Dalecki
Ocena: 5/5

Z całego serca mogę polecić współpracę z firmą MD PROJEKT & KONSULTING SP. Z O. O.. Wybór projektu rozpocząłem we wrześniu ubiegłego roku zadając wiele pytań, prosząc o porady i wyjaśnienia. Pani Magda, zawsze profesjonalnie i rzetelnie starała wyjaśnić wszystkie niejasności i zawiłości moich pytań. Decyzja o zakupie zapadła i jak zwykle pojawiły się nowe pytania i wątpliwości. Zostały one wyjaśnione w rekordowym tępie, a moja dociekliwość zaspokojona rzeczowym i fachowym wyjawieniem odpowiedzi na nurtujące mnie tematy. Jeśli macie wątpliwości jaki projekt wybrać i czy spełni Wasze oczekiwania to polecam kontakt z Panią Magdą, która fachowo doradzi i pomoże w wyborze Waszego wymarzonego domu. Gorąco polecam i dziękuję za miłą obsługę i profesjonalne doradztwo.

avatar

Adrian Kanz
Ocena: 5/5

Bardzo profesjonalna, przemiła obsługa. Wracam do Pani Magdy przy każdej nowej inwestycji i za każdym razem dostaje, sprawne odpowiedzi na każde moje pytania, błyskawiczną realizacje zamówienia. Zdecydowanie firma nr 1 na najwyższym poziomie pod każdym możliwym względem Polecam!

avatar

Anna Z.
Ocena: 5/5

Bardzo duży wybór projektów i profesjonalne doradztwo. Szukałam projektu domu w stylu wiejskim, otrzymałam kilka różnych opcji do wyboru i telefonicznie mogłam się doradzić i przeanalizować z Magdą moje wątpliwości. Rozmowa przebiegała bez stresu, bez nachalności, z dużą dozą informacji. Bardzo mile mi się współpracowało i chętnie polecam wybieramprojekt.pl.

avatar

Marek Banaszewski
Ocena: 5/5

Professionelle ,fachowedoradctwo,fachowa odowiedz na kazde pytanie,jako klient czulem sie jak krol ,bo tak powinno byc,zyjemy z klieta,pani Zachuta,b,dobrze to robi ,polecam,i bende polecal,pozdrawiam wszystkich.czytajacych....

avatar

Wojtek Sawina
Ocena: 5/5

Rewelacyjna współpraca.Indywidualne podejście i poświęcenie uwagi na każdym etapie.Zawsze można liczyć na pomoc i wyjaśnienie wątpliwości.Fajne dopasowanie projektu do działki, przystępna cena adaptacji i innych opracowań.Najważniejsza zaleta Pani Magdy to pełen profesjonalizm i uczciwość.Nie ma niespodzianek w stylu dopłaćcie jeszcze za to czy tamto.

opinions

Skontaktuj się z nami

Magdalena Zahuta

Magdalena Zahuta,
CEO wybieramprojekt.pl

Dane kontaktowe

Telefon:
Doradztwo i sprzedaż: 791 258 345
Biznes i Marketing: 600 160 765

Adres email:
kontakt@wybieramprojekt.pl
adaptacja@wybieramprojekt.pl

Godziny pracy:
pn.-sb.: 9:00 - 18:00

Wizyty stacjonarne umawiamy indywidualnie na konkretny termin, ul Traugutta

Dane firmy

Pełna nazwa:
MD PROJEKT & KONSULTING SP. ZO.O.

Siedziba firmy
Klasztorna 35, 52-234 Wrocław

Numery rejestrowe:
KRS: 0000878772,
REGON: 387947490,
NIP: 8992891755

Konta bankowe:
Santander: 
11 1090 2226 0000 0001 4747 8663