Projekt domu uA14 to energooszczędny dom tradycyjny w nowym wydaniu dla czteroosobowej rodziny.
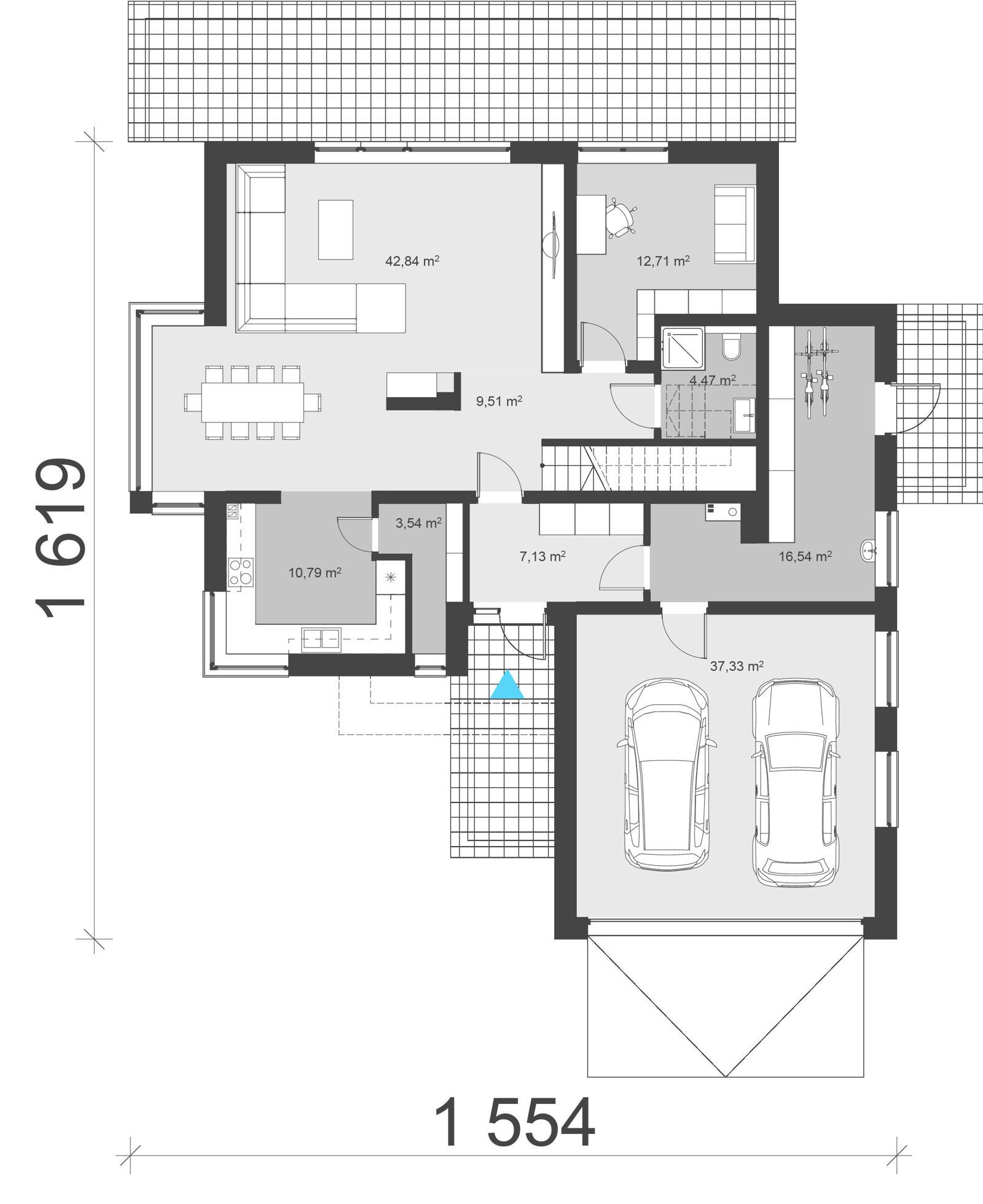
Jest to miejska willa, która dzięki bryle garażu zyskuje nowoczesny charakter. Duże przeszklenia otwierają wnętrze domu na ogród. Budynek łączy w sobie prostotę bryły przekrytej tradycyjnym dwuspadowym dachem, z nowoczesnymi detalami architektonicznymi i materiałami zastosowanymi na elewacjach. Prostokątną bryłę z wysuniętym garażem wieńczy symetryczny dach przekrywający poddasze użytkowe. Prosty kształt i przejrzysta konstrukcja budynku, pozwala na łatwą budowę i niski koszt realizacji. Wnętrze projektu uA14 podzielono na przestrzeń dzienną, z jadalnią, obszernym salonem i pokojem gościnnym. Na pierwszej kondygnacji znajduje się jeszcze garaż i duża kotłownia. Na poddaszu znajduje się łazienka, jedna duża sypialnia i dwie mniejsze.
Największa sypialnia posiada balkon dostępny dodatkowo z pomieszczenia garderoby. Projekt ten występuje w dwóch ddatkowych wariantach uA14v1 i uA14v2.
Technologia:
Fundamenty: bloczki betonowe, lany beton
Ściany: ceramika, gazobeton, silikaty
Dach: tradycyjna więźba dachowa, dachówka, blacha
Strop: żelbet
Ogrzewanie: gaz, kaloryfery
Wentylacja: grawitacyjna




















