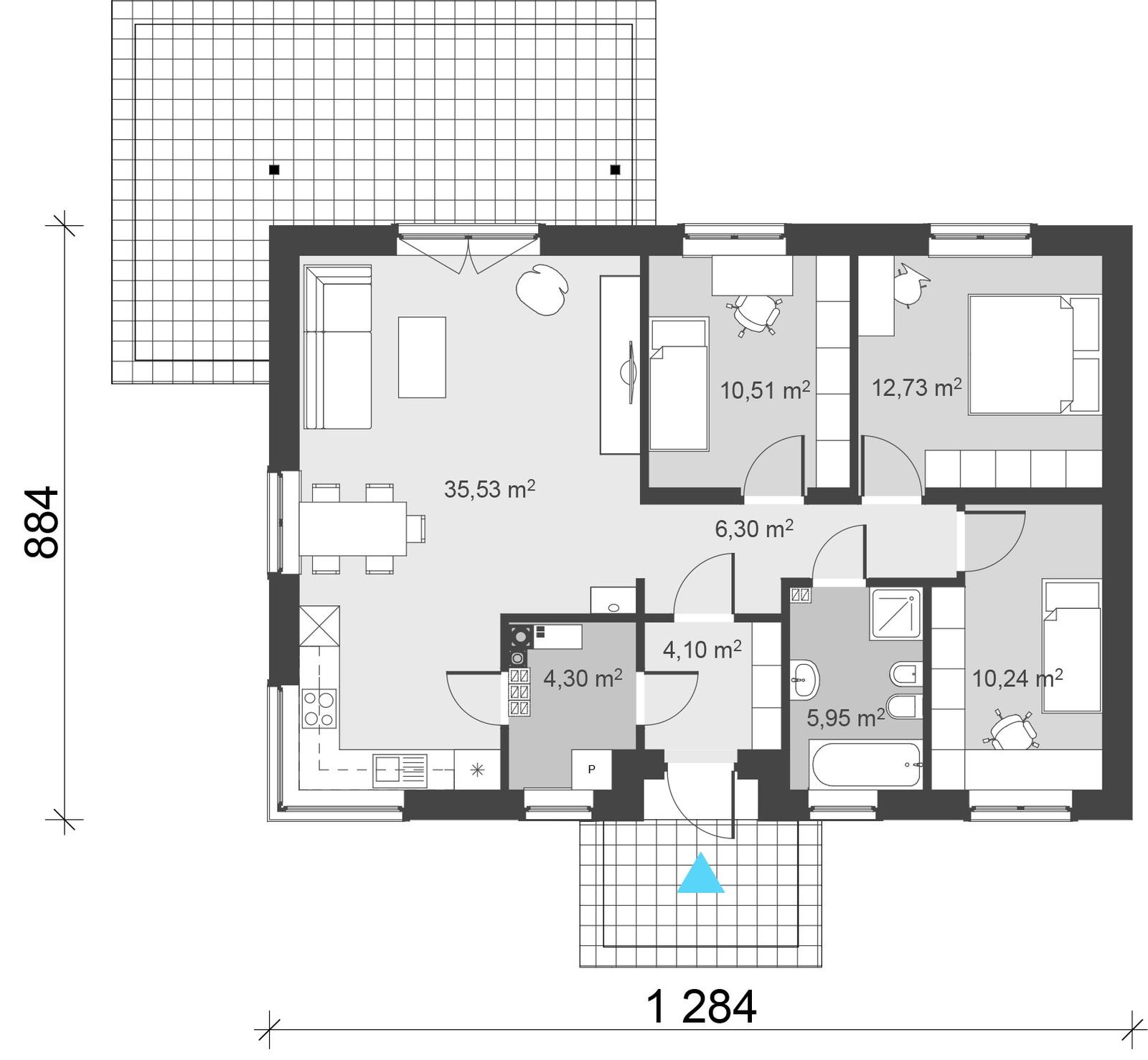
Projekt uA5 to tani w budowie i eksploatacji dom jednorodzinny z dwuspadowym dachem. Projekt uA5 charakteryzują kompaktowe wymiary oraz niewielka powierzchnia użytkowa 85 m2. Ten gotowy projekt domu będzie idealną propozycją dla rodziny 2+2. W układzie funkcjonalnym strefy dziennej znajdują się salon z jadalnią oraz otwarta kuchnia. Przy kuchni znajduje się także kotłownia, pełniąca również zadania spiżarni. Strefa nocna to trzy sypialnie oraz łazienka obsługująca cały dom. Projekt uA5 to nieduża propozycja prostej konstrukcji, gdzie umieszczenie całej funkcji na jednym poziomie umożliwia swobodne i komfortowe wykorzystanie przestrzeni domu. Projekt ten występuje również w techologii szkieletu drewnianego pod nazwą uA5v1.
Technologia:
Ściany: gazobeton, silikaty, ceramika
Dach: dachówka, blachodachówka
Strop: żelbet
Ogrzewanie: gaz, kaloryfery
Wentylacja: grawitacyjna



















