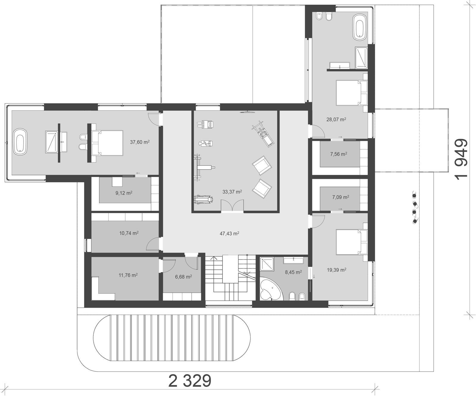
uA39 to projekt nowoczesnej i prestiżowej willi o dużej powierzchni użytkowej. Bryłę budynku cechuje okazały nawis oraz płaski dach, a także zadaszony taras. Rozległe przeszklenia oraz duże okna zapewniają przestrzeń oraz jasność pomieszczeń. Parter łaczy w sobie strefę dzienną i prywatną. Posiada ogromny salon otwarty na jadalnie i kuchnię które mają łącznie powierzchnię ponad 110 metrów kwadratowych. Atutem jest także możliwość przejścia do dwóch tarasów- mniejszego na tyłach domu oraz większego reprezentacyjnego ze sporą powierzchnią na przyjęcia przy basenie. Na tej samej kondygnacji znajdują się także dwa gabinety, pomieszczenie gospodarcze, osobne WC dla gości, pralnia, dwie garderoby oraz duża przeszklona sypialnia z własną łazienką i widokiem na taras. Na piętrze znajdują się także 3 kolejne sypialnie mające własne łazienki i garderoby. Dodatkową zaletą jest duża sauna umożliwiająca odprężenie się po całym dniu oraz siłownia. Oba te pomieszczenia znajdują się na piętrze. Całość tworzy luksusowy dom o nieprzeciętnej budowie. Projekt uA39 jest to idealna propozcyja dla najbadziej wymagających klientów, ceniących sobie wygodę i luksus.
Technologia:
Fundamenty: bloczek betonowy, lany beton
Ściany: gazobeton, silikaty, ceramika
Stropodach: żelbet
Ogrzewanie: pompa ciepła, podłogowe
Wentylacja: mechaniczna



















