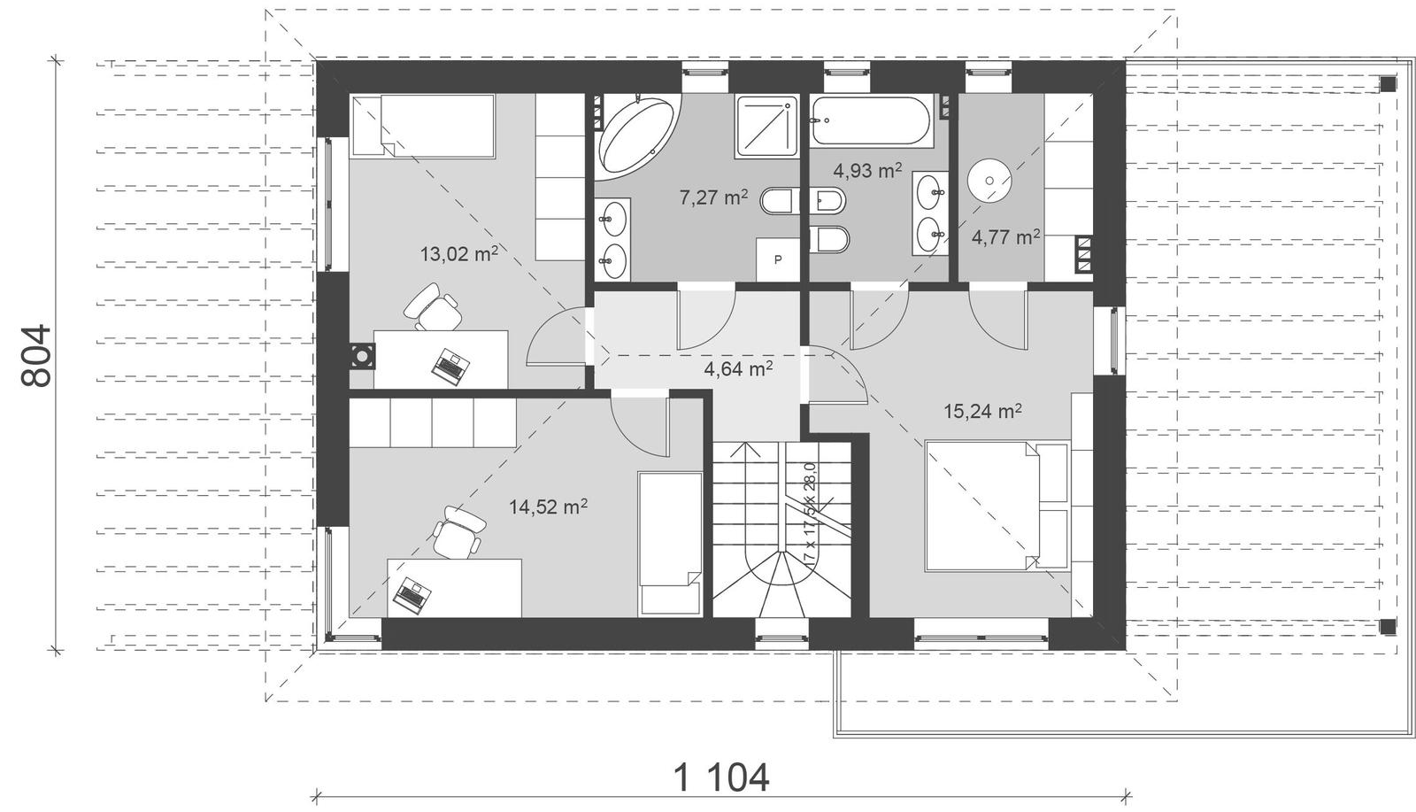
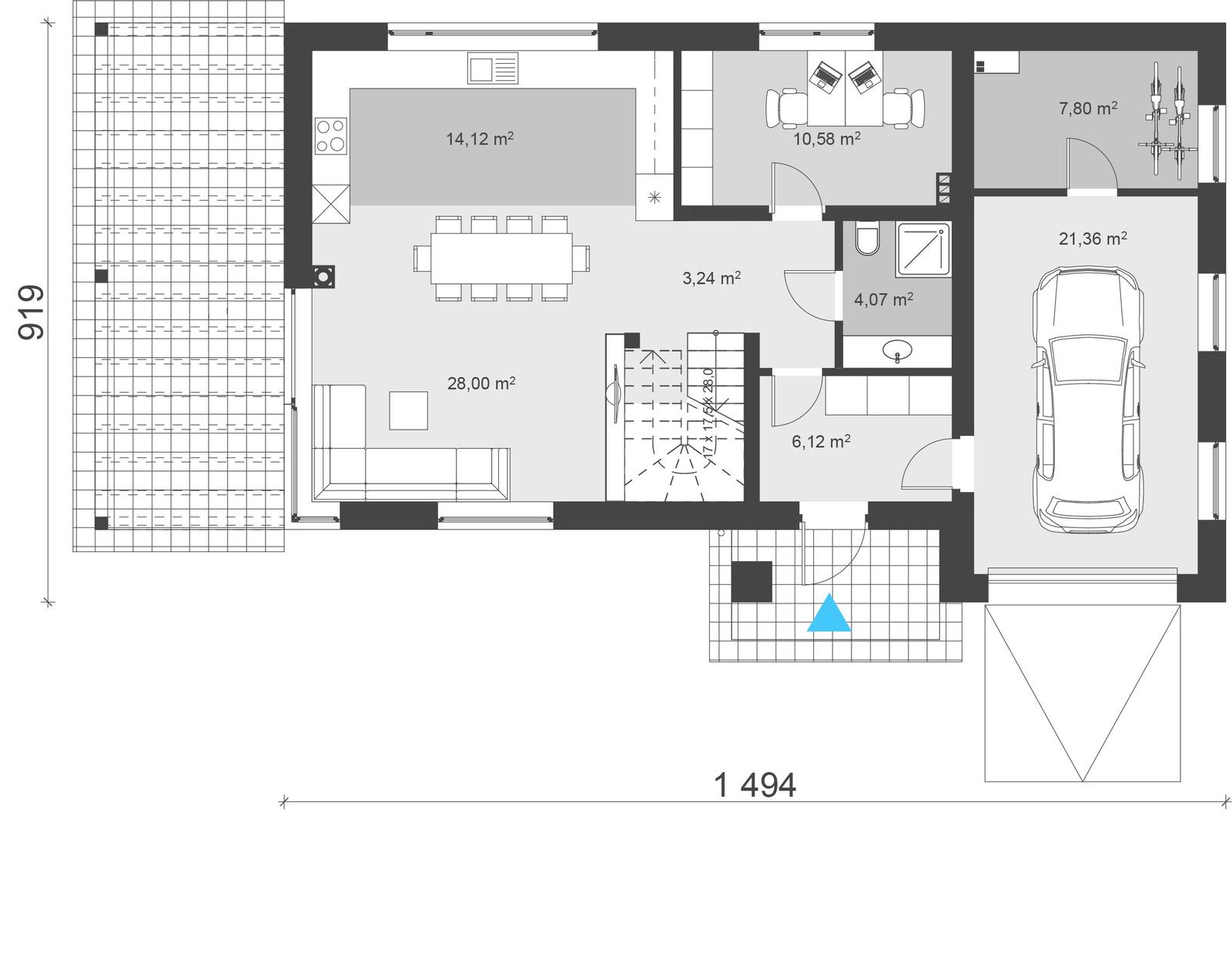
Dom uA2v2 to nowoczesny dom z reprezentacyjnym wejściem od frontu. Elewaca utrzymana jest w ciepłych kolorach. Atutem tego projektu jest duzy, zadaszony taras na piętrze. Układ domu jest przestrzenny i funkcjonalny, z wyraźnym podziałem na strefy: dzienną na parterze i nocną na piętrze. Strefę dzienną tworzy duża kuchnia oraz komfortowy salon z jadalnią. Dodatkowo strefa ta połączona jest przestronnym tarasem, który z pewnością bedzie ulubionym miejscem wypoczynku domowników w letnie dni. W strefie nocnej na piętrze są dwa pokoje dla dzieci, łazienka, a także sypialnia z własną garderobą, łazienką i tarasem. Projekt uA2v2 to połączenie ergonomicznego układu funkcjonalnego z geometryczną bryłą budynku. Idealnie sprawdzi się dla 4-5-osobowej rodziny.
Technologia:
Fundamenty: bloczek betonowy, lany beton
Ściany: gazobeton, silikaty, ceramika
Strop: żelbet
Dach: więźba dachowa, blacha
Ogrzewanie: gaz, podłogowe
Wentylacja: grawitacyjna




















