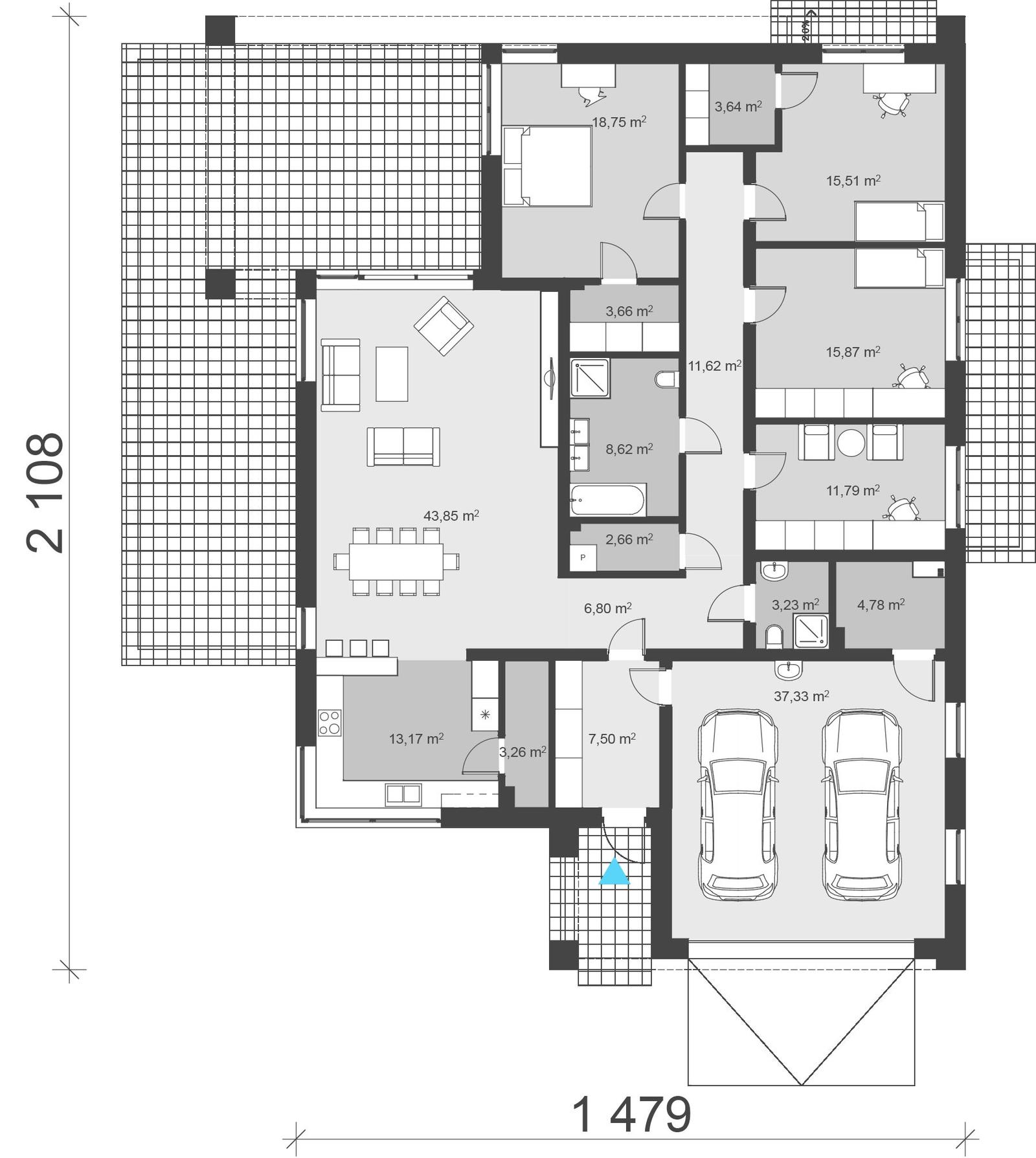
uA46v2 jest to ciekawa i funkcjonalna propozycja domu parterowego z wielospadowym dachem dla osób, które cenią sobie komfort użytkowania. Łączna powierzchnia tego projektu domu to niespełna 170 m2. Projekt ten cechuje niezwykle komfortowe wnętrze z wyraźnie wydzielonymi strefami. W strefie dziennej, ogólnodostępnej mieści się przestronny, jasny salon z jadalną o powierzchni 44 m2, półotwarta kuchnia z praktyczną spiżarnią, mała łazienka z prysznicem i pralnia. W strefie prywatnej znajdują się trzy sypialnie, w tym dwie z garderobami, duża łazienka oraz gabinet. uA46v2 to idealny projekt dla rodzin 2+2 lub 2+3.
Projekt należy do rodziny projektów uA46 i występuje w wielu wariantach: uA46, uA46v1, uA46v3, uA46v4, uA46v5, uA46v6, uA46v7 oraz uA46v8.
Technologia:
Fundamenty: bloczek betonowy, lany beton
Ściany: gazobeton, silikaty, ceramika
Strop: żelbet
Dach: więźba dachowa, blacha
Ogrzewanie: gaz, podłogowe
Wentylacja: mechaniczna

















