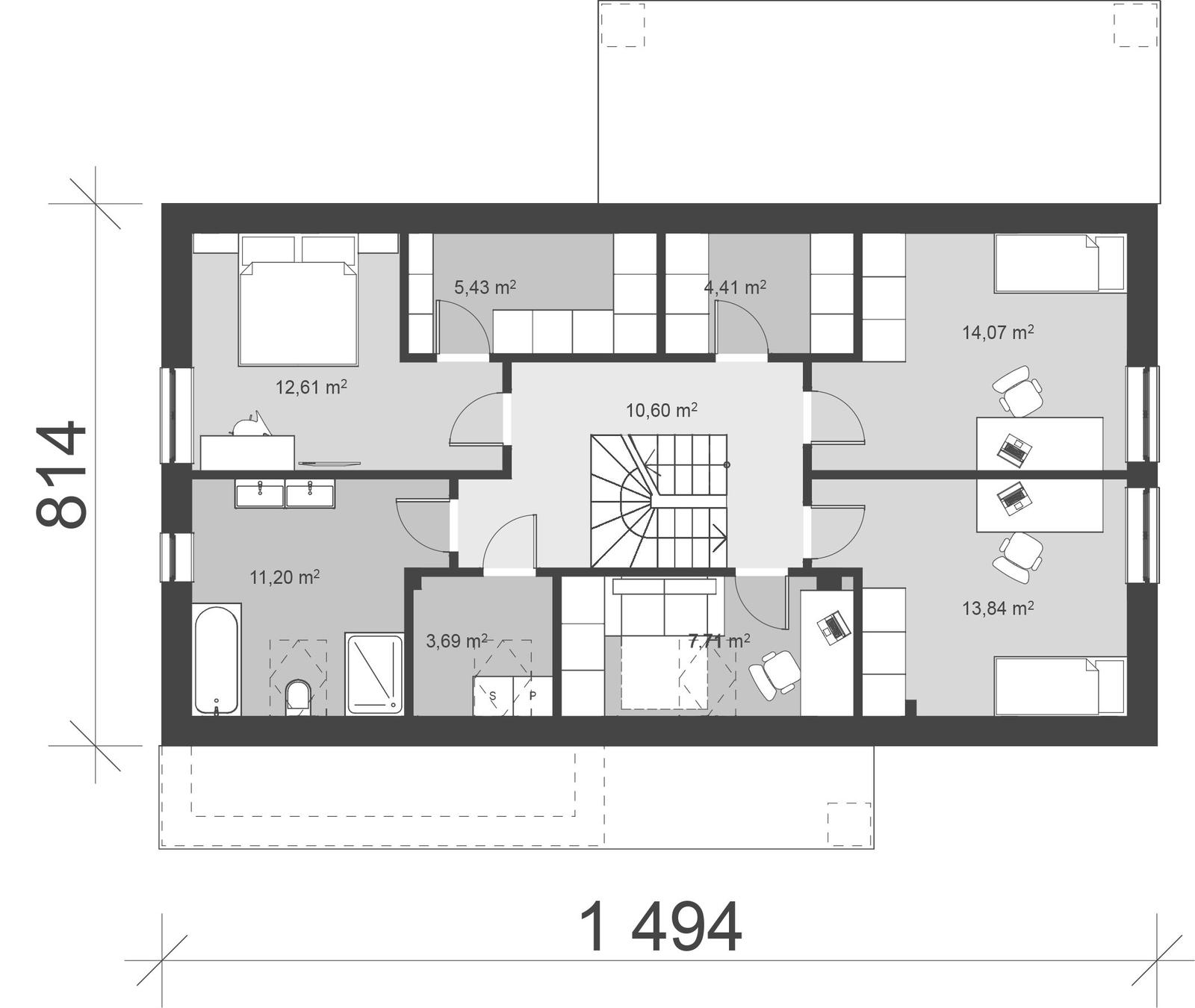
uA156 jest to tradycyjny projekt domu z dwuspadowym dachem o powierzchni użytkowej 138 m2. Zaprojektowane podcienie: frontowe, nadające reprezentacyjny charakter strefy wejściowej oraz ogrodowe, które daje poczucie intymności i pozwoli na chwilę relaksu po ciężkim dniu nadają temu projektowi nowoczesnego charakteru. W bryle budynku znajduje się dwustanowiskowy garaż z pomieszczeniem gospodarczym, połączony przejściem przez wiatrołap z domem. Na parterze w strefie dziennej zaplanowano salon z jadalnią z dużymi oknami i wyjściem na taras, kuchnię z praktyczną spiżarnią oraz niewielkich rozmiarów łazienkę z prysznicem. Na piętrze, czyli w strefie nocnej znajdują się trzy sypialnie w tym jedna główna z garderobą, dodatkowy pokój, który służyć może jako gabinet lub pokój gościnny, pralnię garderobę oraz dużą łazienkę ogólnodostępną w wanną i prysznicem. Projekt uA156 jest to ekonomiczny w budowie i wygodny w mieszkaniu dom dla rodziny 2+2, który swoją architekturą doskonale wpisze się w zabudowę miejską, jak i naturalne otoczenie pól i lasów. Projekt ten występuje również w wariancie 156v1.
Technologia:
Fundamenty: bloczek betonowy, lany beton
Ściany: gazobeton, silikaty, ceramika
Strop: żelbetowy
Dach: tradycyjna więźba, dachówka, blacha
Ogrzewanie: gaz, podłogowe
Wentylacja: mechaniczna








