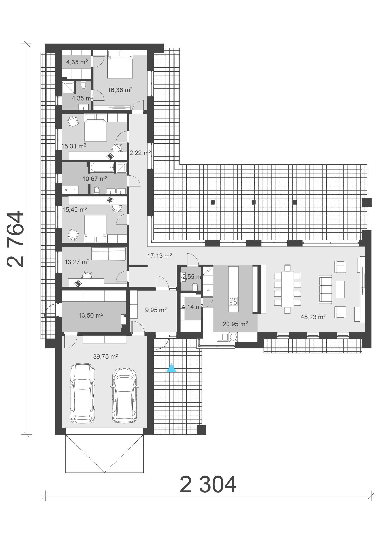
Projekt domu uA114 jest to ciekawa propozycja nowoczesnego domu parterowego zaprojektowanego na planie dwóch połączonych ze sobą prostokątów z wyraźnym podziałem na strefy nocną i dzienną. Interesujący dobór materiałów elewacyjnych oraz zastosowana kolorystyka nadają temu projektowi wyjątkowego charakteru. Każdy z prostopadłościanów przykryty został dachem dwuspadowym bez okapu. Na powierzchni użytkowej 191 m 2 zaplanowano wszystko co potrzebne to komfortowego mieszkania dla dużej rodziny. Do środka domu dostajemy się reprezentacyjnym wejściem z okazałą betonową pergolą. Po prawo od wiatrołapu znajduje się strefa dzienna, w skład której wchodzi duża kuchnia z praktyczną spiżarnią, okazały jasny salon z jadalnią, niewielkich rozmiarów toaleta oraz gabinet, który został oddzielony ścianką działową od prywatnej części domu. Po lewej stronie domu znajduje się strefa nocna, a w niej 3 sypialnie, w tym master bedroom z własną łazienką i garderobą oraz wspólna łazienka z wydzieloną pralnią. W całym domu zastosowano duża ilość przeszkleń, które otwierają dom na ogród, zapraszając zieleń do wnętrz. Zaproponowane przeszklenia optyczne powiększają i gwarantują poczucie przestrzeni we wnętrzach. W bryle domu znajduje się także garaż na dwa auta z pomieszczeniem gospodarczym. Projekt uA114 będzie idealnym rozwiązaniem dla inwestorów ceniących sobie nowoczesną architekturę w połączeniu z najwyższą funkcjonalnością układu pomieszczeń oraz przestrzeń we wnętrzach.
Technologia:
Fundamenty: bloczki betonowe, lany beton
Ściany: gazobeton, silikaty, ceramika
Strop: żelbetowy
Dach: tradycyjna więźba, dachówka, blacha
Ogrzewanie: gaz, kaloryfery
Wentylacja: grawitacyjna

















