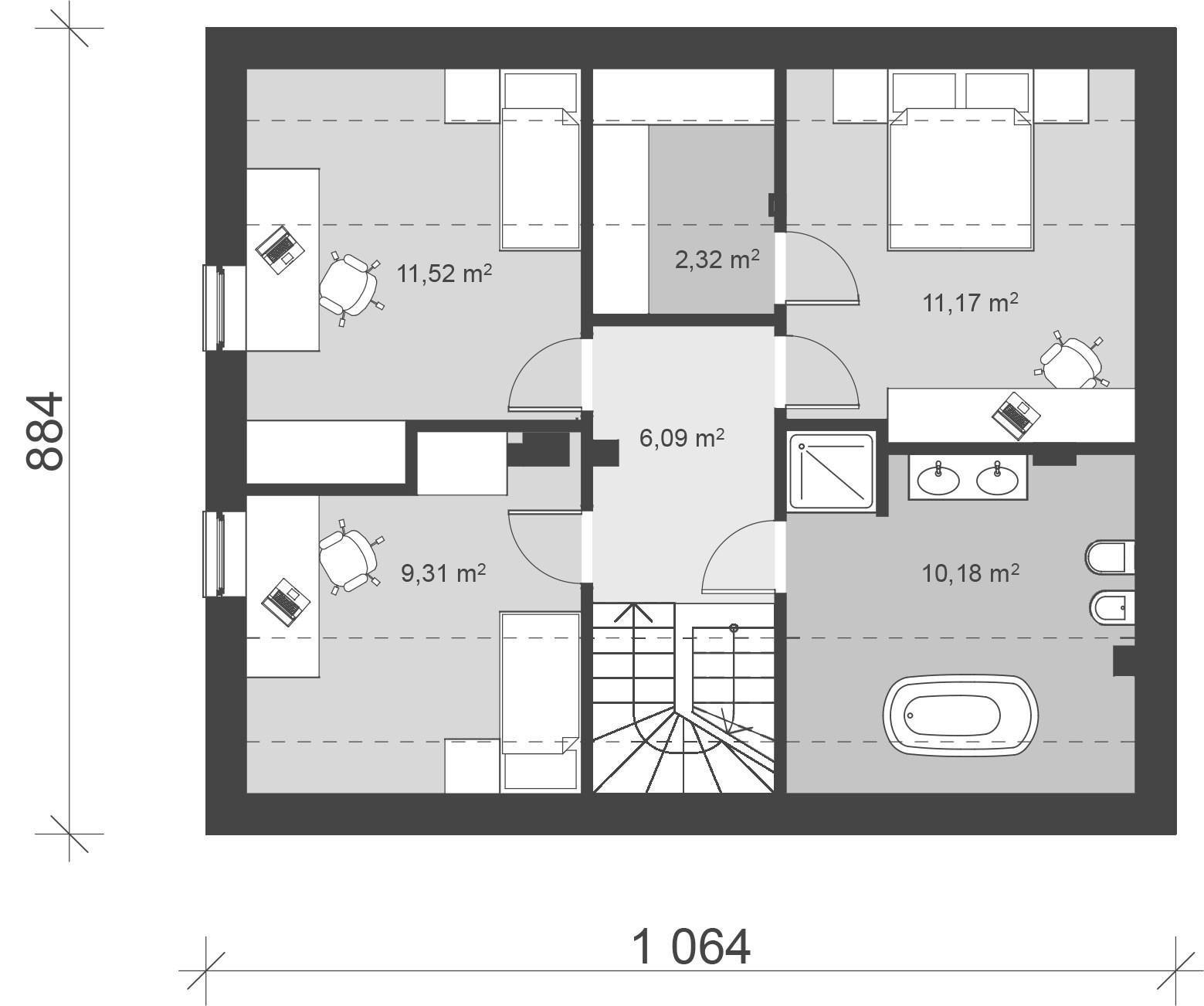
uA 56 jest to projekt na planie prostokąta, nakryty prostym dwuspadowym dachem. Zwartą, uniwersalną bryłę wzbogacono o dwie żelbetowe pergole: reprezentacyjnej frontowej, a także ogrodowej pełniącej funkcję przeciwsłoneczną. Pomieszczenia mieszkalne natomiast wyniesiono 90 cm ponad powierzchnię terenu, dzięki czemu możliwe było zastosowanie krótkiej rampy do garażu podziemnego. Wprowadzenie kondygnacji podziemnej miało na celu odseparowanie strefy gospodarczej od mieszkalnej, która skupiać będzie szereg uciążliwości z nią związanych. Przez wzgląd na małą powierzchnię zabudowy, klatkę schodową umieszczono centralnie na frontowej ścianie przez co uzyskano dużą otwartą przestrzeń strefy dziennej w która wpisana została również kuchnia. uA56 cechuje się optymalnym zagospodarowaniem przestrzeni, jest to projekt dostosowany do potrzeb rodziny 2+2.
Technologia:
Fundamenty: bloczek betonowy, lany beton
Ściany: gazobeton, silikaty, ceramika
Strop: żelbet
Dach: więźba, dachówka, blacha
Ogrzewanie: gaz, kaloryfery
Wentylacja: grawitacyjna




















