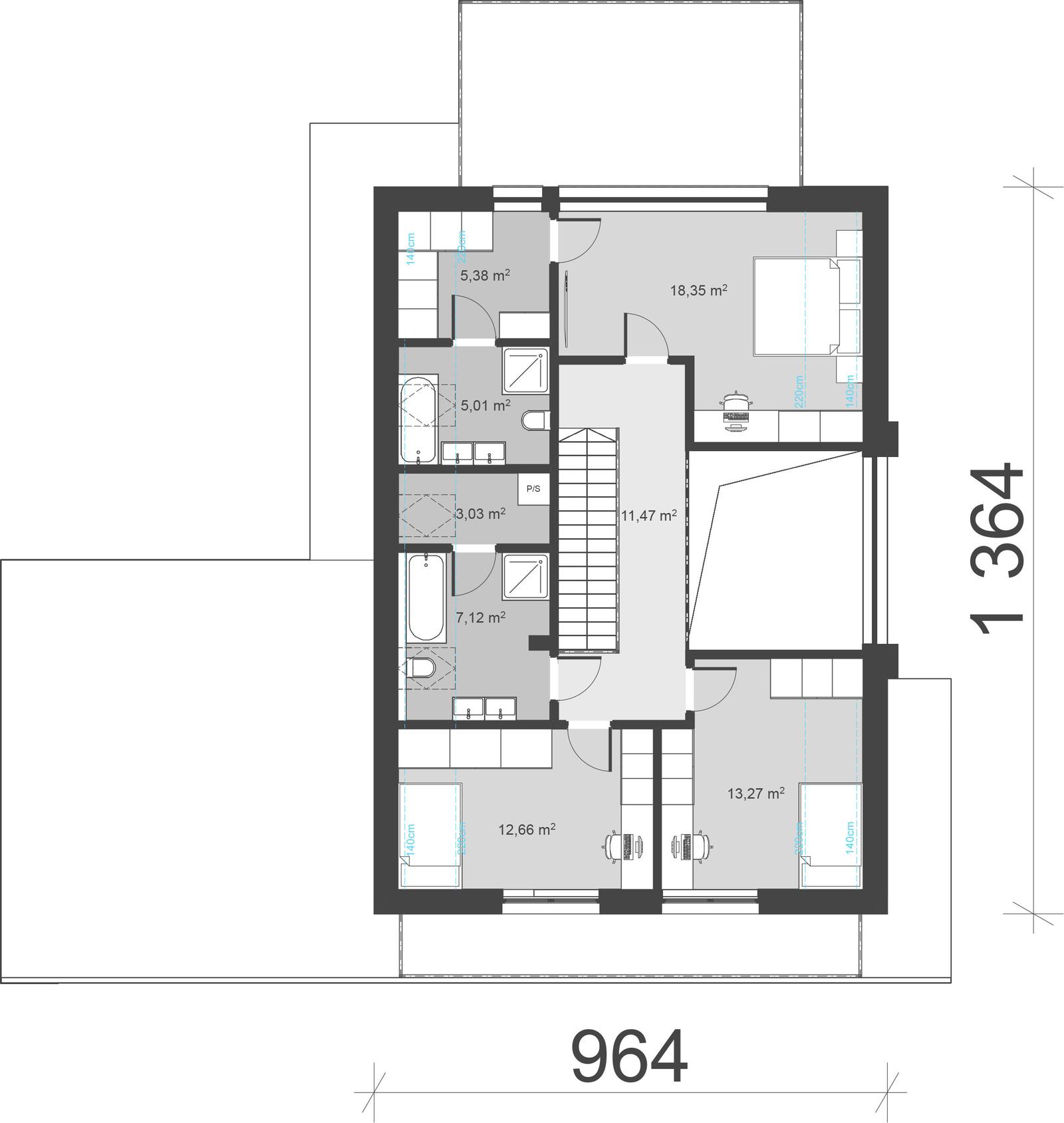
Projekt uA21 to bardzo przestronny i wygodny dom z poddaszem użytkowym z garażem dwustanowiskowym. Zaplanowany jako połączenie tradycji z nowoczesnością, którą ukazują klasyczny kształt bryły i nowoczesne elementy elewacyjne z ogromnym tarasem. Tradycyjny dwuspadowy dach przykrywa całą powierzchnię domu. Dodatkowo, dla przełamania okazałych połaci na jednej z nich zlokalizowano dużą lukarnę z okazałym przeszkleniem doświetlającym jedną z sypialni. Wnętrze domu zaplanowano w bardzo przejrzysty sposób. Strefa wejściowa to korytarz łączący dom z garażem z którego docieramy do obszernej kotłowni, do ogrodu i do holu wejściowego. W hallu zlokalizowano zagłębienie, do wykorzystania jako garderoba, a w dalszej jego części z lewej strony znajdują się schody na piętro i korytarz prowadzący do salonu i gabinetu oraz z prawej strony toaleta. Na końcu hallu znajduje się kuchnia z otwartą jadalnią. Na górnej kondygnacji, po lewej stronie schodów znajdują się łazienka i pralnia przy antresoli. Prawa strona to dwie sypialnie, a koniec korytarza to duża sypialnia z garderobą i łazienką, z których można dostać się na duży taras nad garażem i częścią domu.
Projekt uA21 jest idealnym rozwiązaniem dla najpopularniejszego modelu rodziny z dwójką dzieci lub większej.
Technologia:
Fundamenty: bloczki betonowe, lany beton
Ściany: gazobeton, silikaty, ceramika
Strop: żelbetowy
Dach: tradycyjna więźba, dachówka, blacha
Ogrzewanie: gaz, grzejniki
Wentylacja: grawitacyjna





















