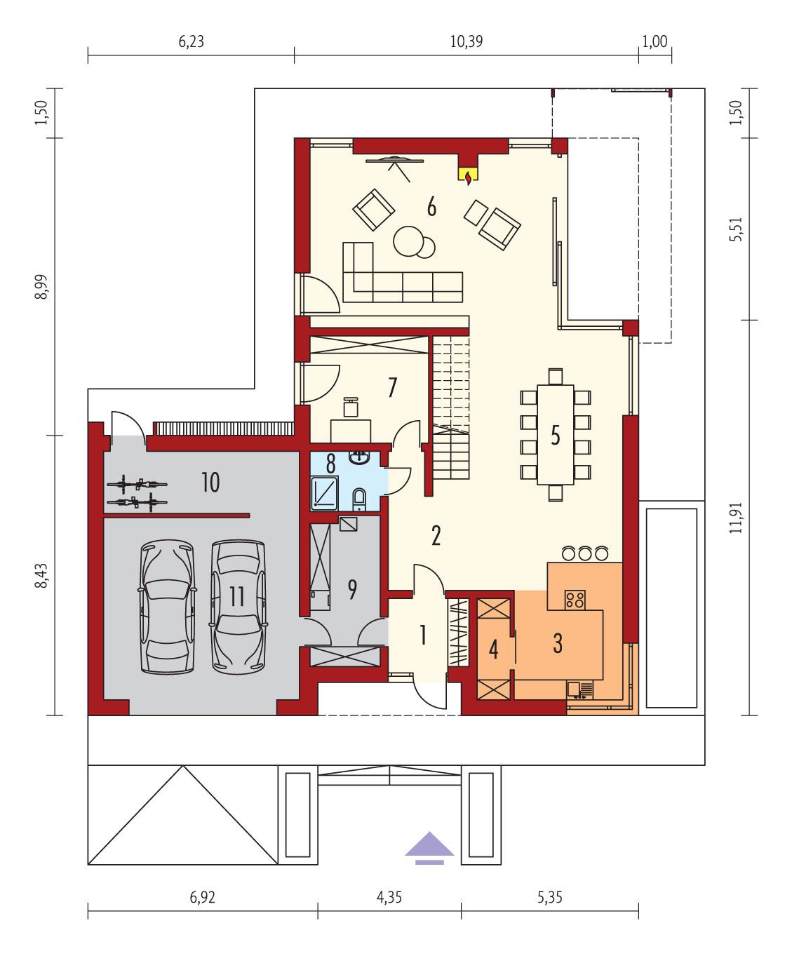
Charakterystyka: Dom parterowy z
poddaszem użytkowym, niepodpiwniczony, z garażem dwustanowiskowym
Przeznaczenie: Dom dla 4-6-osobowej
rodziny
Technologia i
konstrukcja:
Ściany zewnętrzne: murowane,
trójwarstwowe, pustaki ceramiczne 24
cm, ocieplenie 10 cm, warstwa licowa z cegły klinkierowej 11,5 cm firmy Röben
Ściany wewnętrzne: nośne i działowe
murowane, pustaki ceramiczne 24 cm i 12 cm
Strop i stropodach nad
garażem: międzypiętrowy
żelbetowy i gęstożebrowy Teriva
Dach: konstrukcja drewniana,
ocieplenie wełna mineralna ISOVER 30
cm, dachówka ceramiczna płaska Bergamo firmy Röben
Inne: schody wewnętrzne żelbetowe
Rozwiązania
instalacyjne:
Ogrzewanie: kocioł gazowy
kondensacyjny, rozprowadzenie ciepła: grzejniki
Wentylacja: grawitacyjna
OZE: kolektory słoneczne
Wykończenie:
Elewacje: cegły licowe
klinkierowe firmy Röben 11,5
cm, typ Darwin w kolorze czerwono-brązowym cieniowane, elementy
nadprożowe ceglane firmy Röben, okładzina drewniana
Stolarka: aluminiowo-drewniana
INNOVIEW firmy FAKRO
Okna połaciowe: rozwiązania
technologiczne i wyłaz dachowy firmy FAKRO
Otoczenie: kostka betonowa i
płyty tarasowe firmy Libet, system tarasowy ProDeck - deska kompozytowa Terra w
kolorze orzech, meble ogrodowe firmy B&B Italia
Wersje - zapytaj o dostępność:
- Teodor (wersja A) - bez garażu lub z garażem
jednostanowiskowym
- Teodor (wersja B) – taki sam układ funkcji,
inne wykończenie elewacji, różne wersje garaży
- Teodor (wersja C) – taki sam układ funkcji,
ściany dwuwarstwowe wykończone tynkiem, różne wersje garaży
- Teodor (wersja C) ENERGO PLUS – taki sam
układ funkcji, ściany dwuwarstwowe z okładziną kamienną, instalacje
energooszczędne: pompa ciepła z ogrzewaniem podłogowym, wentylacja mechaniczna
z rekuperacją, system solarny, różne wersje garaży
- odbicie lustrzane do każdej wersji
Istnieje
techniczna możliwość:
- podpiwniczenia budynku
- zbliźniaczenia
- wykonania budynku w technologii szkieletowej
Warianty działek dla wersji domu z garażem jednostanowiskowym i bez garażu:











