Charakterystyka: Dom parterowy z poddaszem
użytkowym, niepodpiwniczony, z garażem dwustanowiskowym
Przeznaczenie: Dom dla 3-5-osobowej rodziny
Technologia
i konstrukcja:
Ściany zewnętrzne: murowane, dwuwarstwowe, beton komórkowy Solbet 24 cm, ocieplenie
styropian Termo Organika 20 cm
Strop: międzypiętrowy gęstożebrowy Teriva
Dach: konstrukcja drewniana, ocieplenie wełna mineralna 30 cm,
dachówka ceramiczna płaska Bergamo firmy Röben
Inne: schody wewnętrzne drewniane
Rozwiązania
instalacyjne:
Ogrzewanie: kocioł
gazowy kondensacyjny, rozprowadzenie ciepła: grzejniki
Wentylacja: grawitacyjna
OZE: kolektory słoneczne
Wykończenie:
Elewacje: tynk
cienkowarstwowy mineralny w kolorze TO-PA001 z palety firmy Termo Organika,
okładzina z płyty HPL z naturalną okleiną drewnianą firmy Prodema, okładzina
komina: płytki klinkierowe
Stolarka: drewniana, PVC lub aluminiowa, rolety zewnętrzne w
systemie CleverBox firmy BeClever, drzwi wejściowe i brama garażowa
firmy Hörmann
Otoczenie: system tarasowy ProDeck - deska kompozytowa Terra w
kolorze złoty dąb
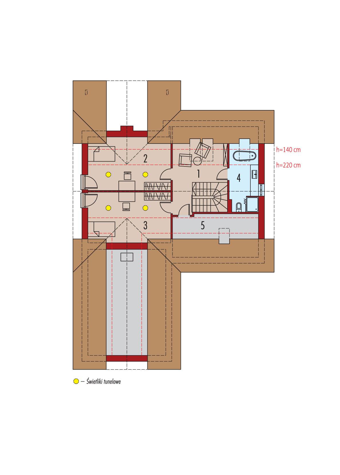
Okna połaciowe: rozwiązania technologiczne i wyłaz dachowy firmy
VELUX, świetlik tunelowy VELUX. Pobierz ekspercki poradnik VELUX i dowiedz się jak wybrać okna dachowe
Wersje domów w
serii Simon - zapytaj o dostępność:
- Simon – dom z poddaszem do adaptacji, 3 sypialnie, dach o kącie
nachylenia 30°
- Simon II – dom z poddaszem użytkowym, 3 sypialnie + gabinet, dach
o kącie nachylenia 35°
- Simon III – dom parterowy, 4 sypialnie, dach o kącie nachylenia
25°
- Simon IV – dom parterowy, 3 sypialnie, dach o kącie nachylenia
25°
- Simon (mały) – dom z poddaszem do adaptacji, mniejsza
powierzchnia użytkowa, 3 sypialnie, dach o kącie nachylenia 35°
- Simon III (wiązary) – system suchej zabudowy ścian
działowych Rigips, wiązary prefabrykowane, rozwiązania
materiałowo-technologiczne Grupy Saint-Gobain, układ funkcji jak w domu Simon
III G2, dom parterowy, 4 sypialnie, dach o kącie nachylenia 25°
- Simon IV (bliźniak) – dom parterowy w zabudowie bliźniaczej, 3
sypialnie, dach o kącie nachylenia 25°
- Simon 01 (dwulokalowy) – dom z dwoma mieszkaniami, z poddaszem do
adaptacji, dach o kącie nachylenia 30°
– wszystkie wersje o podobnym układzie funkcji oraz
z inną propozycją wykończenia elewacji
– wszystkie wersje z trzema wariantami garaży: bez garażu, z
garażem jedno- i dwustanowiskowym (wyjątek: dom dwulokalowy – tylko w wariancie
bez garażu)
– odbicie lustrzane do każdej wersji
Wszystkie wersje
domów możliwe w dwóch standardach/wariantach instalacyjnych:
- ENERGO: kocioł gazowy kondensacyjny, grzejniki, wentylacja
grawitacyjna, OZE: kolektory słoneczne
- ENERGO PLUS: pompa ciepła, ogrzewanie podłogowe, wentylacja
mechaniczna, OZE: kolektory słoneczne lub panele fotowoltaiczne
Istnieją techniczne
możliwości wykonania zmian:
- podpiwniczenia budynku
- zmiany kąta nachylenia dachu do 30° i zmiany funkcji poddasza na nieużytkowe
- wykonania budynku w technologii szkieletowej
- dokonania zmian funkcjonalnych wg indywidualnych wymagań




















