Ściany
zewnętrzne trójwarstwowe wykonano z energooszczędnych pustaków ceramicznych.
Charakterystyka: dom piętrowy,
niepodpiwniczony, z garażem dwustanowiskowym
Przeznaczenie: dom dla
3-4-osobowej rodziny
Technologia
i konstrukcja:
Fundamenty:
ławy
trójwarstwowe, bloczki betonowe 24 cm, ocieplenie styropian 10 cm, bloczki
betonowe 12 cm
Ściany
zewnętrzne: murowane, trójwarstwowe, pustaki ceramiczne 24
cm, ocieplenie wełna mineralna Super-Vent firmy Isover 10 cm, pustka wentylacyjna, warstwa licowa z cegły klinkierowej
11,5 cm firmy Röben
Ściany
wewnętrzne: murowane, pustaki ceramiczne 24 cm, ścianki
działowe pustaki ceramiczne 11,5 cm
Podłoga
na gruncie: płyta betonowa, ocieplenie styropian 15 cm
Strop:
strop
międzypiętrowy gęstożebrowy Teriva
Dach:
konstrukcja
drewniana, ocieplenie wełna mineralna 30 cm, dachówka ceramiczna MONZAplus
Maduro firmy Röben
Rozwiązania instalacyjne:
Ogrzewanie: kocioł gazowy, rozprowadzenie ciepła: grzejniki
Wentylacja: grawitacyjna
OZE: kolektory słoneczne
Wykończenie:
Elewacja:
cegły
licowe klinkierowe firmy Röben 11,5 cm, typ Ravello w kolorze piaskowobiałym i
żółtym cieniowanym, elementy nadprożowe i parapety ceglane firmy Röben
Stolarka:
drewniana,
PCV lub aluminiowa
Wersje w serii Rodrigo - zapytaj o dostępność:
- Rodrigo G2 Leca®DOM – dom w technologii Leca® KERAMZYT
- Rodrigo II – dom w technologii murowanej z betonu komórkowego i cegły
wapienno-piaskowej
- Rodrigo III - inne wykończenie elewacji
- Rodrigo IV – dom w technologii ścian trójwarstwowych z ceramiki
poryzowanej
- Rodrigo G2 Multi-Comfort - dom w standardzie Multi-Comfort Grupy
Saint-Gobain
- wszystkie wersje o podobnym układzie funkcji oraz z inną
propozycją wykończenia elewacji
- różne warianty garaży dla każdej wersji
- odbicie lustrzane do każdej wersji
Wszystkie wersje domów możliwe w dwóch standardach/wariantach
instalacyjnych:
- ENERGO: kocioł gazowy kondensacyjny, grzejniki, wentylacja
grawitacyjna, OZE: kolektory słoneczne
- ENERGO PLUS: pompa ciepła, ogrzewanie podłogowe, wentylacja
mechaniczna, OZE: kolektory słoneczne lub panele fotowoltaiczne
Istnieją techniczne możliwości wykonania
zmian:
- podpiwniczenia
budynku
- zbliźniaczenia
Atuty projektu okiem architekta:
- Doskonałe
parametry cieplne dzięki zastosowaniu ścian trójwarstwowych
- Delikatnie
rozrzeźbiona bryła z modną aparycją
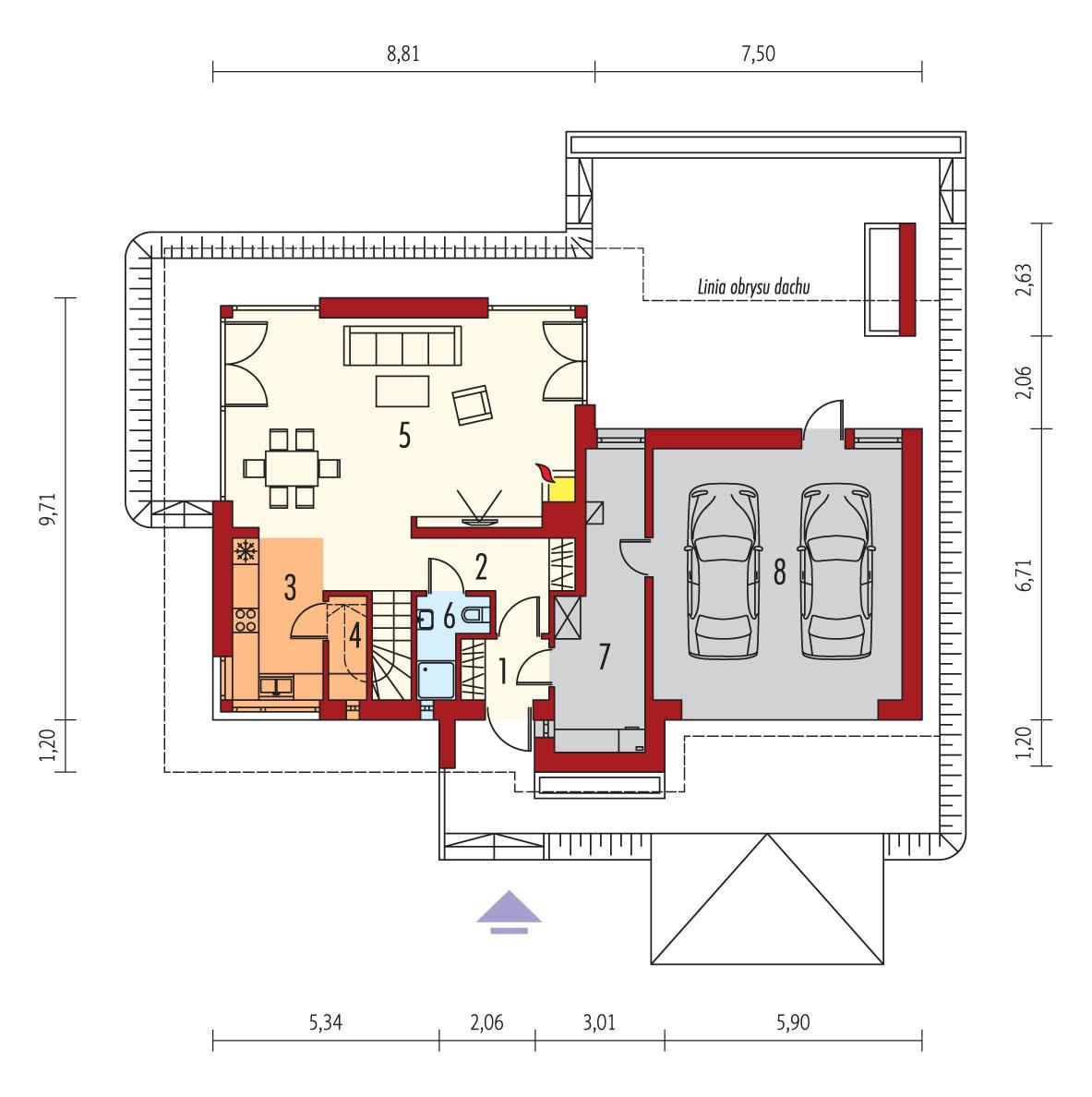
- Kuchnia otwarta
na jadalnię i salon z wydzieloną praktyczną spiżarnią
- Słoneczny i
reprezentacyjny salon z kominkiem
- Przestronny,
częściowo zadaszony taras umilający czas w ciepłe dni
- Duże i
reprezentacyjne przeszklenia w salonie z trzech stron świata
- Wygodna strefa
nocna zaplanowana na piętrze
- Zadaszenie nad
wejściem do budynku jako osłona przed wiatrem i śniegiem
- Duża kotłownia pozwala na zastosowanie dowolnego źródła ogrzewania
- Garaż
oddzielony termicznie od ogrzewanej części budynku



















