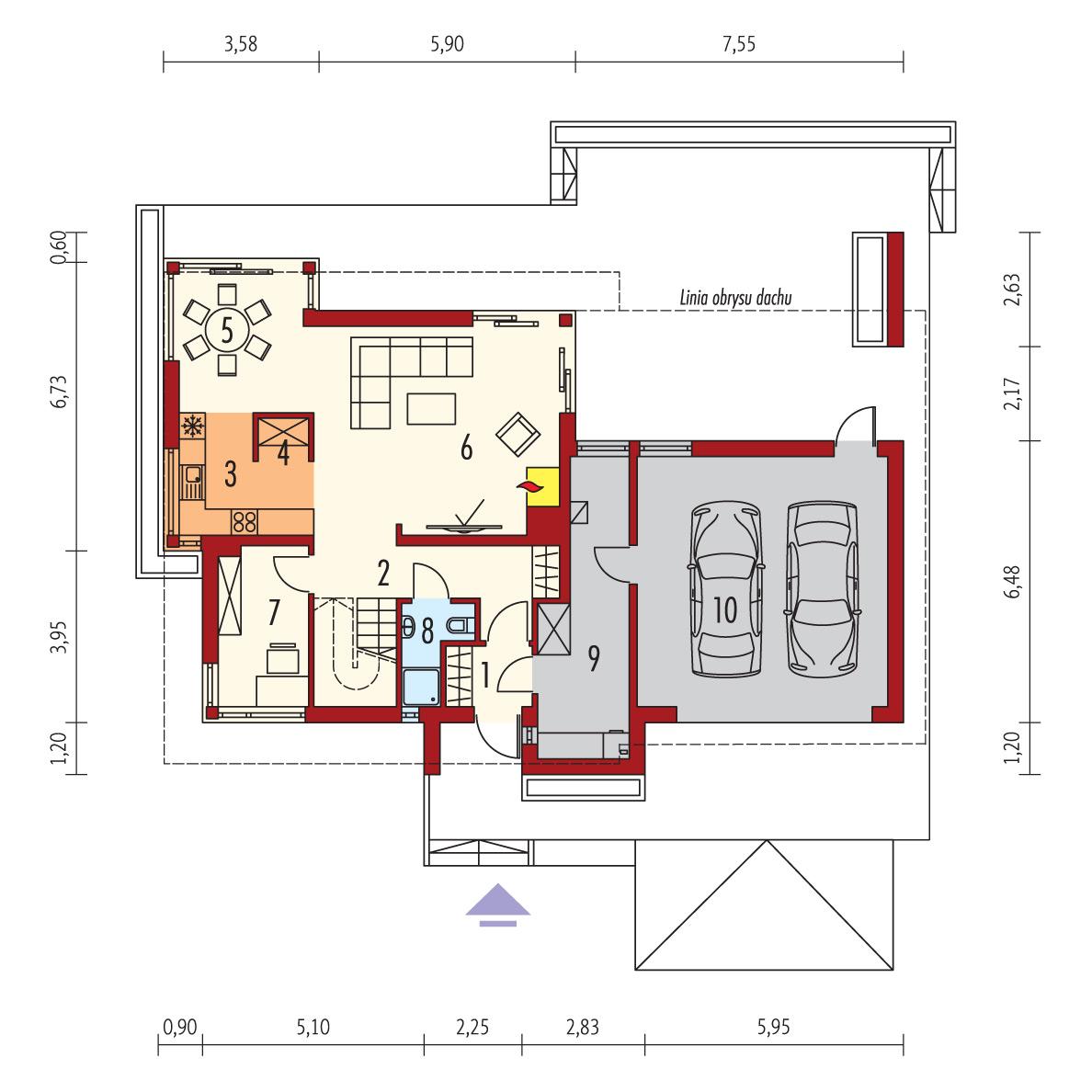
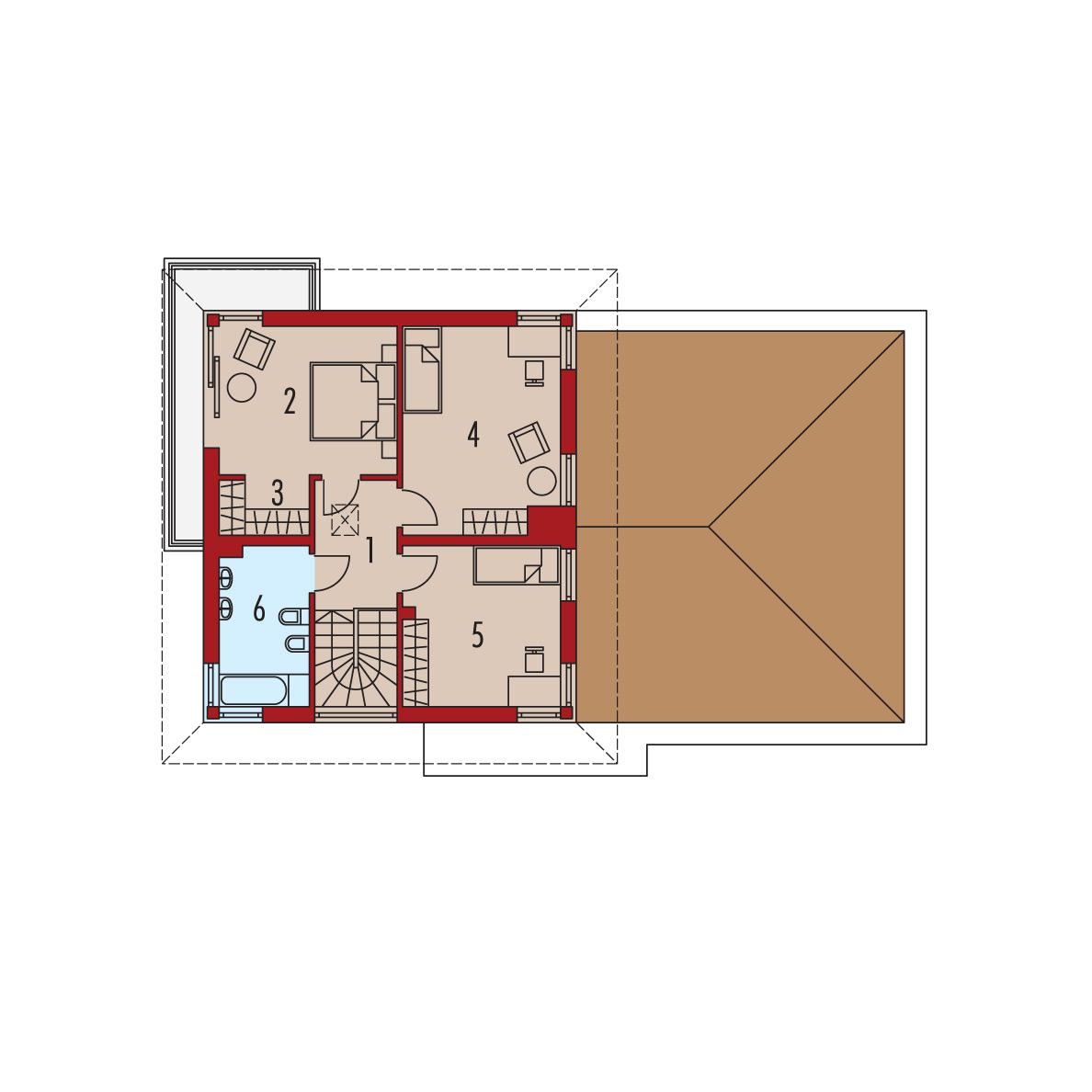
Charakterystyka: dom piętrowy, niepodpiwniczony, z garażem
dwustanowiskowym
Przeznaczenie: dom dla 3-5-osobowej rodziny
Technologia i konstrukcja:
Ściany zewnętrzne: murowane, dwuwarstwowe, beton komórkowy 24 cm,
ocieplenie wełna mineralna Fasoterm 35 firmy Isover 12 cm
Ściany wewnętrzne: murowane, cegła wapienno-piaskowa, ściany nośne 24
cm, ścianki działowe 12 cm
Strop: stropy gęstożebrowe Teriva, ocieplenie nad piętrem wełna
mineralna Super-Mata firmy Isover 30 cm
Dach: konstrukcja drewniana, dachówka ceramiczna firmy Röben, więźba
dachowa dostępna również w systemie prefabrykacji drewnianej
Rozwiązania instalacyjne:
Ogrzewanie:
kocioł gazowy
kondensacyjny firmy Viessmann, rozprowadzenie ciepła: grzejniki firmy Purmo
Wentylacja: grawitacyjna
OZE: kolektory słoneczne firmy Viessmann
Wykończenie:
Elewacje: tynk cienkowarstwowy mineralny, okładzina z płyty HPL z
naturalną okleiną drewnianą firmy Prodema
Stolarka: drewniana, PCV lub aluminiowa, drzwi zewnętrzne i brama
garażowa firmy Hörmann
Otoczenie: system tarasowy firmy ProDeck - deska kompozytowa Terra
w kolorze złoty dąb
Wersje w serii Rodrigo - zapytaj o dostępność:
- Rodrigo G2 Leca®DOM – dom w technologii Leca® KERAMZYT
- Rodrigo II – dom w technologii murowanej z betonu komórkowego i cegły
wapienno-piaskowej
- Rodrigo III - inne wykończenie elewacji
- Rodrigo IV – dom w technologii ścian trójwarstwowych z ceramiki
poryzowanej
- Rodrigo G2 Multi-Comfort - dom w standardzie Multi-Comfort Grupy
Saint-Gobain
- wszystkie wersje o podobnym układzie funkcji oraz z inną propozycją wykończenia elewacji
- różne warianty garaży dla każdej wersji
- odbicie lustrzane do każdej wersji
Wszystkie wersje domów możliwe w dwóch standardach/wariantach
instalacyjnych:
- ENERGO: kocioł gazowy kondensacyjny, grzejniki, wentylacja
grawitacyjna, OZE: kolektory słoneczne
- ENERGO PLUS: pompa ciepła, ogrzewanie podłogowe, wentylacja
mechaniczna, OZE: kolektory słoneczne lub panele fotowoltaiczne
Istnieją techniczne możliwości wykonania zmian:
- podpiwniczenia budynku
- wykonania budynku w technologii szkieletowej
- dokonania zmian funkcjonalnych wg indywidualnych wymagań




















