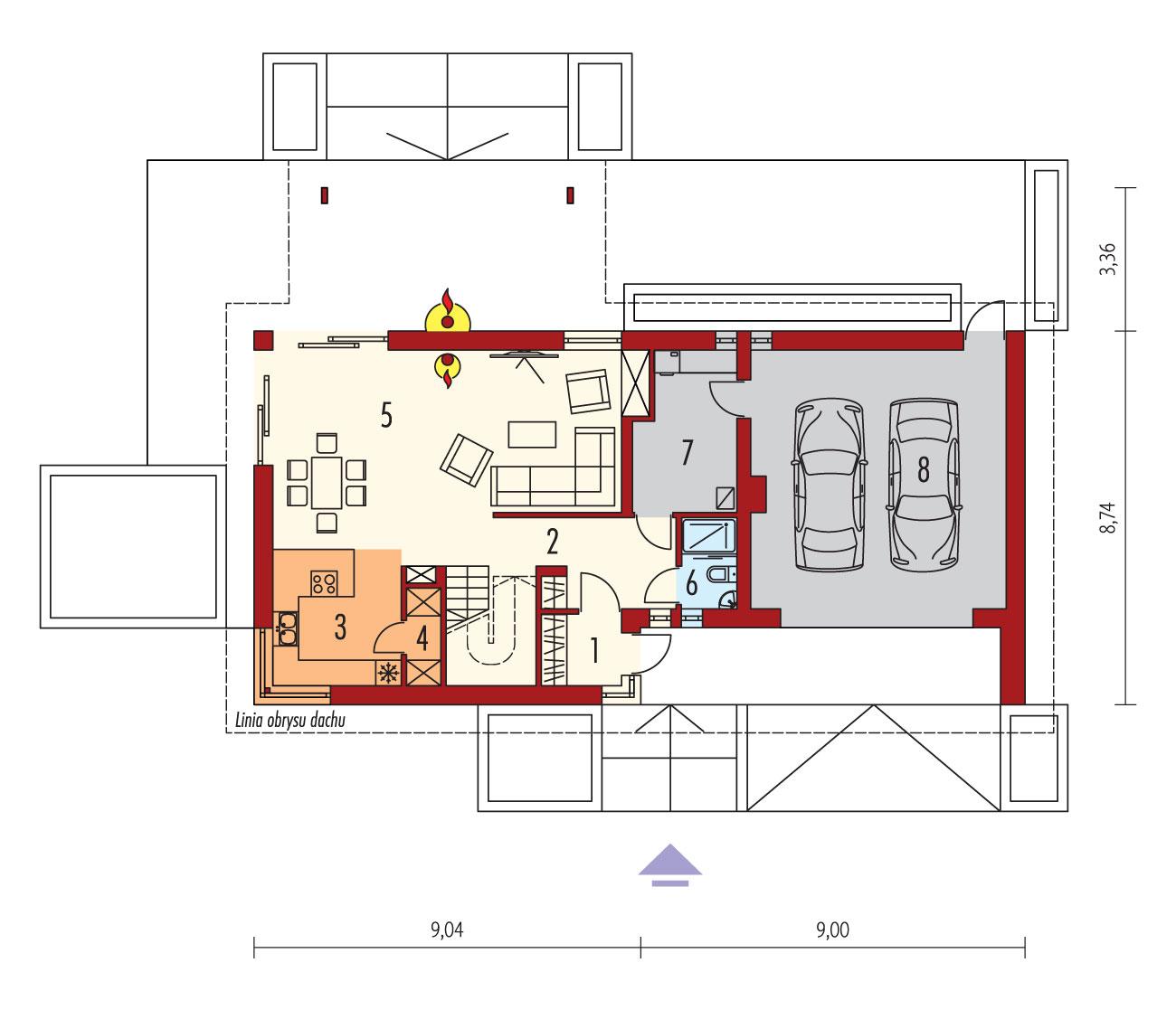
Charakterystyka: Dom parterowy z
poddaszem użytkowym, niepodpiwniczony, z garażem dwustanowiskowym
Przeznaczenie: Dom dla 3-5-osobowej rodziny
Technologia
i konstrukcja:
Ściany zewnętrzne: murowane, dwuwarstwowe, beton komórkowy firmy Solbet 24
cm, ocieplenie styropian Termo Organika 20 cm
Ściany wewnętrzne: nośne i działowe murowane, beton komórkowy firmy
Solbet 24 cm i 12 cm
Strop: międzypiętrowy gęstożebrowy Teriva
Dach: konstrukcja drewniana, ocieplenie wełna mineralna firmy
Isover 30 cm, dachówka ceramiczna płaska Bergamo firmy Röben
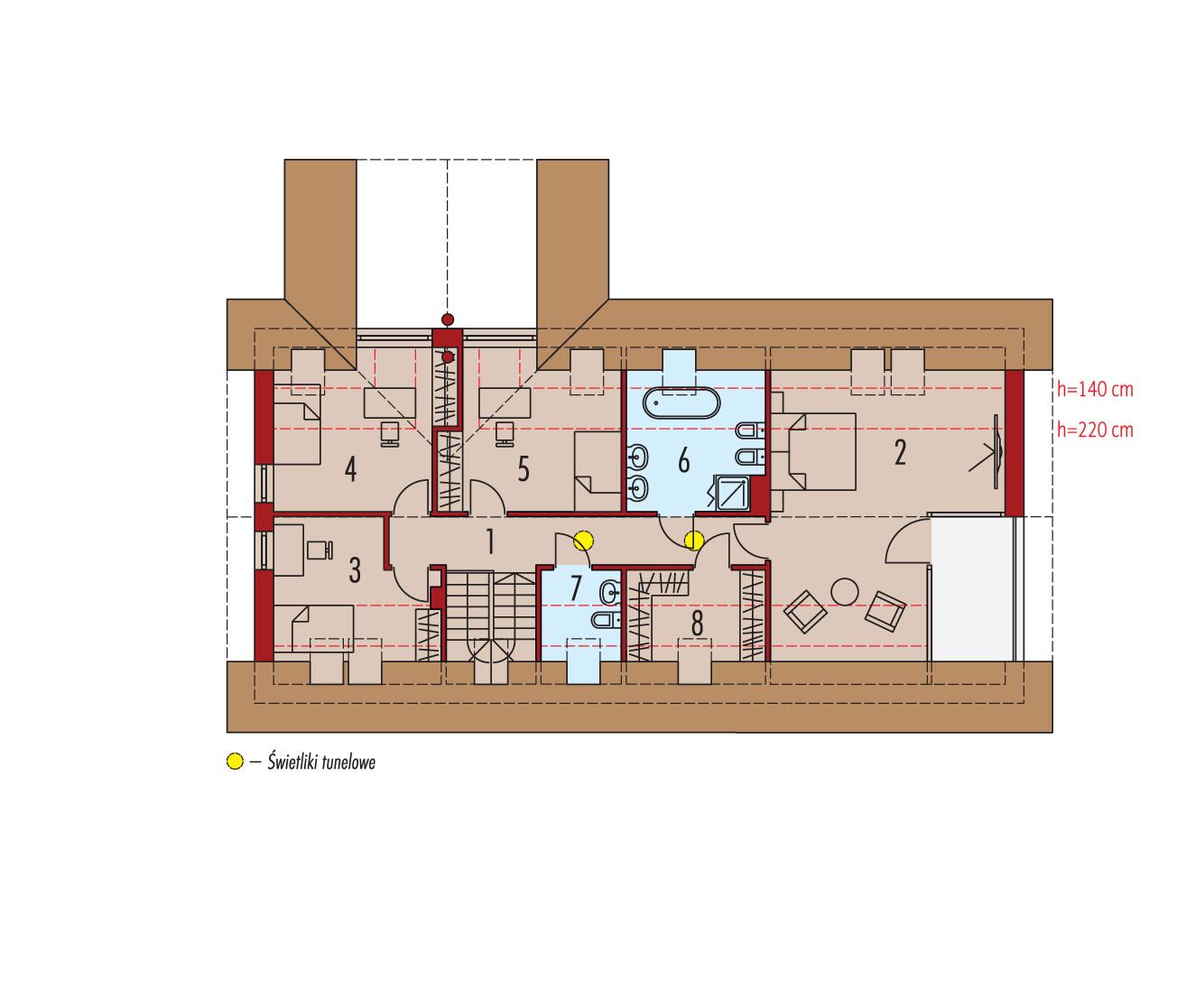
Schody: schody wewnętrzne drewniane
Inne: dom spełnia standardy Grupy Saint-Gobain; Marka Isover,
Rigips i Weber zapewniają najwyższą jakość wbudowanych produktów: okładziny
ścienne i sufitowe, paroizolacje, systemy podłogowe, zaprawy, kleje,
hydroizolacje
Rozwiązania instalacyjne:
Ogrzewanie: kocioł
gazowy kondensacyjny firmy Viessmann, rozprowadzenie ciepła: grzejniki firmy
Purmo
Wentylacja: grawitacyjna
OZE: kolektory słoneczne firmy Viessmann
Wykończenie:
Elewacje: płyty
ROCKPANEL, okładzina drewniana i kamienna
Stolarka: aluminiowa firmy Reynaers Aluminium lub
drewniana, drzwi wejściowe i brama
garażowa firmy Hörmann
Okna połaciowe: rozwiązania technologiczne firmy Fakro
Otoczenie: kostka betonowa i płyty tarasowe firmy Libet, system
tarasowy ProDeck - deska kompozytowa Terra w kolorze orzech
Wersje w serii Nikolas - zapytaj o dostępność:
- Nikolas – wersja
podstawowa, standardowe instalacje: ogrzewanie gazowe, wentylacja grawitacyjna,
system solarny
- Nikolas II ENERGO PLUS - podobny układ funkcjonalny, inne wymiary
budynku, energooszczędne instalacje: pompa ciepła i ogrzewanie podłogowe,
wentylacja mechaniczna z rekuperacją, system solarny
- Nikolas II ENERGO PLUS reco - energooszczędne instalacje firmy
Vaillant: pompa ciepła, wentylacja mechaniczna z rekuperacją oraz system fotowoltaiczny,
ogrzewanie podłogowe firmy Purmo
- wszystkie wersje o podobnym układzie funkcji oraz z inną propozycją
wykończenia elewacji
- wszystkie wersje z trzema wariantami garaży: bez garażu, z garażem
jedno- i dwustanowiskowym
- odbicie lustrzane do każdej wersji
Wszystkie
wersje domów możliwe w dwóch standardach/wariantach instalacyjnych:
- ENERGO: kocioł gazowy kondensacyjny, grzejniki, wentylacja
grawitacyjna, OZE: kolektory słoneczne
- ENERGO PLUS: pompa ciepła, ogrzewanie podłogowe, wentylacja
mechaniczna, OZE: kolektory słoneczne lub panele fotowoltaiczne
Istnieje
techniczna możliwość:
- podpiwniczenia budynku
- wykonania budynku w technologii szkieletowej




















