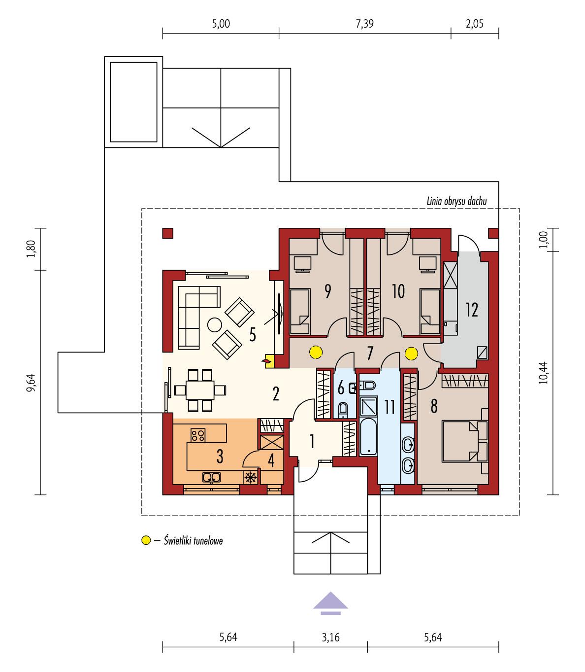
Charakterystyka: Dom parterowy, niepodpiwniczony
Przeznaczenie: Dom dla 2-4-osobowej rodziny
Technologia i konstrukcja:
Ściany zewnętrzne: murowane, dwuwarstwowe, beton komórkowy firmy Solbet 24
cm, ocieplenie styropian Termo Organika 20 cm
Ściany wewnętrzne: nośne i działowe murowane, beton komórkowy firmy
Solbet 24 cm i 12 cm
Strop: gęstożebrowy Teriva, ocieplenie wełna mineralna Isover 30 cm
Dach: konstrukcja drewniana, dachówka ceramiczna firmy Röben, więźba
dachowa dostępna również w systemie prefabrykacji drewnianej
Rozwiązania
instalacyjne:
Ogrzewanie: kocioł gazowy
kondensacyjny firmy Viessmann, rozprowadzenie ciepła: grzejniki firmy Purmo
Wentylacja: grawitacyjna
OZE: kolektory słoneczne firmy Viessmann
Dodatkowo: stacja uzdatniania wody firmy Viessmann
Wykończenie:
Elewacje: tynk
cienkowarstwowy mineralny w kolorze białym TO-PA001 i szarym TO-GY011 z palety
firmy Termo Organika, okładzina drewniana
Stolarka: drewniana, PVC lub aluminiowa, rolety zewnętrzne w systemie
CleverBox firmy BeClever, drzwi wejściowe firmy Hörmann
Okna połaciowe: wyłaz dachowy i świetlik
dachowy firmy VELUX. Pobierz ekspercki poradnik VELUX i dowiedz się jak wybrać okna dachowe
Wersje domów w serii Mini 4 - zapytaj o dostępność:
- Mini 4 –
wersja podstawowa, 3 sypialnie, dach czterospadowy
- Mini 4 (wiązary) – układ funkcji taki sam jak w wersji podstawowej,
system suchej zabudowy ścian działowych Rigips, wiązary prefabrykowane,
rozwiązania materiałowo-technologiczne Grupy Saint-Gobain
- Mini 4 w. II – układ funkcji podobny do wersji podstawowej (inny układ
otworów okiennych i drzwiowych), 3 sypialnie, zadaszony taras ogrodowy, dach
dwuspadowy z okapami
- Mini 4 w. III – układ funkcji podobny do wersji podstawowej (inny
układ otworów okiennych i drzwiowych),4 sypialnie, zadaszony
taras ogrodowy, dach dwuspadowy bez okapów
- Mini 4 MODERN – układ funkcji podobny do wersji podstawowej (zmiany w
strefie wejściowej, kuchni, kotłowni, inny układ otworów okiennych i
drzwiowych), 3 sypialnie, dach płaski
- Mini 4 PLUS – instalacje energooszczędne firmy Viessmann: pompa
ciepła, wentylacja mechaniczna z rekuperacją, system fotowoltaiczny oraz
ogrzewanie podłogowe firmy Purmo
- Mini 4 PLUS reco – instalacje energooszczędne firmy Vaillant:
pompa ciepła, wentylacja mechaniczna z rekuperacją, system fotowoltaiczny oraz
ogrzewanie podłogowe firmy Purmo
- wszystkie
wersje o podobnym układzie funkcji oraz z inną propozycją wykończenia elewacji
- wszystkie wersje z trzema wariantami garaży: bez garażu, z garażem jedno- i
dwustanowiskowym
- odbicie lustrzane do każdej wersji
Wszystkie
wersje domów możliwe
w dwóch standardach/wariantach instalacyjnych:
- ENERGO: kocioł gazowy kondensacyjny, grzejniki, wentylacja
grawitacyjna, OZE: kolektory słoneczne
- ENERGO PLUS: pompa ciepła, ogrzewanie podłogowe, wentylacja
mechaniczna, OZE: system fotowoltaiczny
Istnieje
techniczna możliwość:
- podpiwniczenia budynku
- zmiany kąta nachylenia dachu do 30º oraz adaptacji poddasza na strych
- wykonania budynku w technologii szkieletowej



















