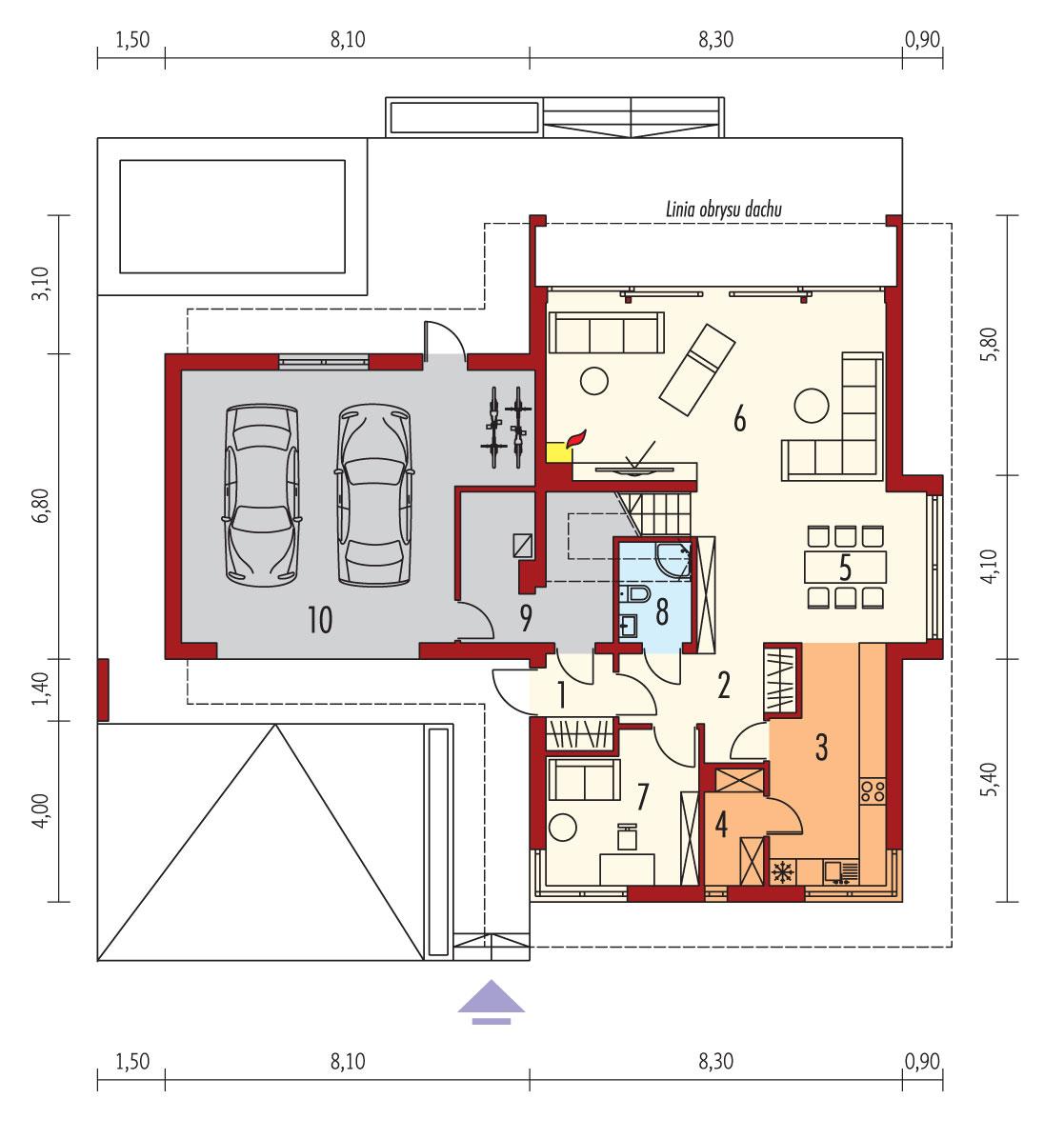
Charakterystyka: Dom piętrowy, niepodpiwniczony,
z garażem dwustanowiskowym
Przeznaczenie:
Dom dla 4-5 osobowej rodziny
Technologia i konstrukcja:
Ściany zewnętrzne: murowane, trójwarstwowe z pustaków ceramicznych
Strop: gęstożebrowy
Dach: konstrukcja drewniana, dachówka ceramiczna Röben. Więźba dachowa
dostępna również w systemie prefabrykacji drewnianej.
Rozwiązania instalacyjne:
Ogrzewanie: kocioł gazowy, rozprowadzenie ciepła: grzejniki
Wentylacja: grawitacyjna
Wykończenie:
Elewacje: warstwa licowa elewacji z
cegły klinkierowej firmy Röben, w dwóch kolorach. Cokoły, elementy nadprożowe i
parapety z cegły klinkierowej Röben
Stolarka: drewniana lub PCV
Inne: elementy tarasów i chodników z
cegły klinkierowe i kostki brukowej Röben
Wersje - zapytaj o dostępność:
- Lorenzo G1 – z garażem jednostanowiskowym
- Lorenzo – bez garażu
- Odbicia lustrzane do wszystkich wersji
Istnieje techniczna możliwość:
- podpiwniczenia budynku
- zbliźniaczenia
- wykonania domu dwulokalowego



















