Charakterystyka:
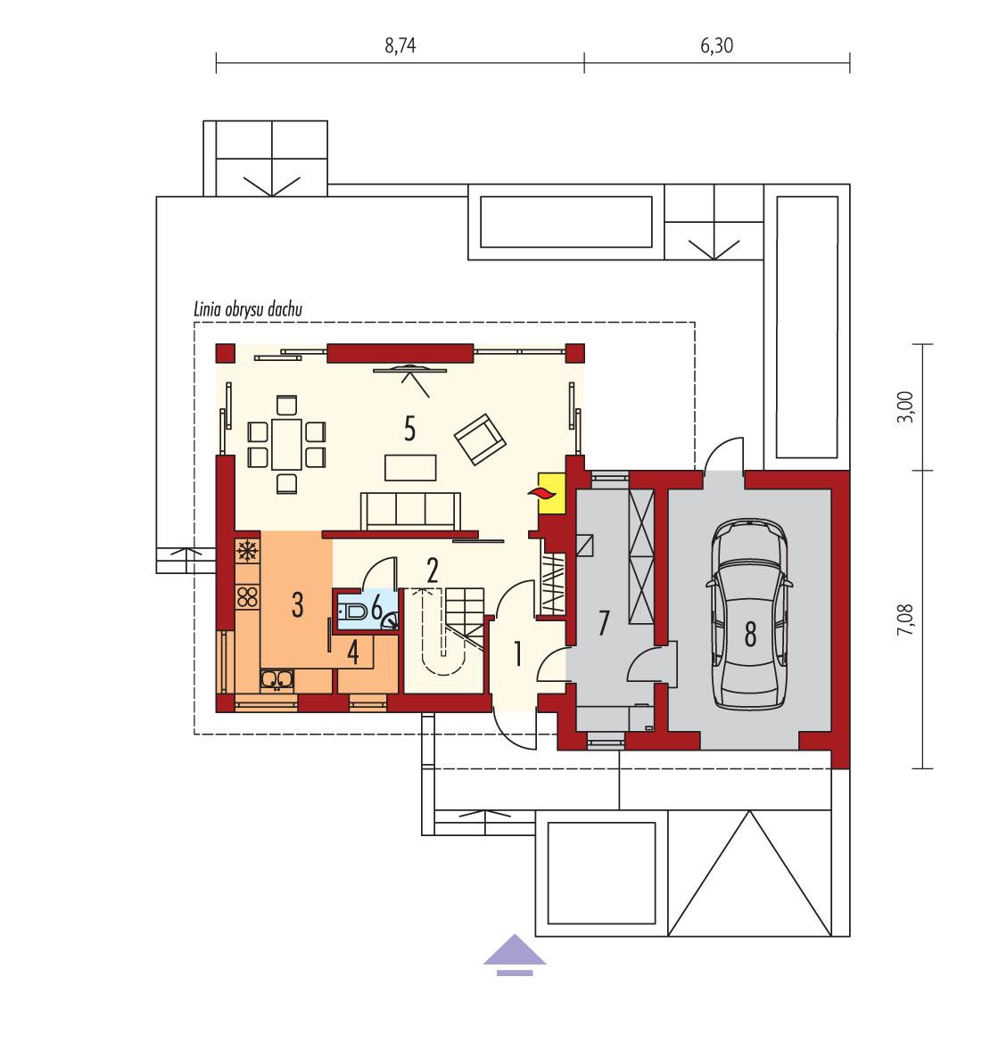
Dom parterowy, niepodpiwniczony, z garażem jednostanowiskowym
Przeznaczenie: Dom dla 3-4-osobowej rodziny
Technologia
i konstrukcja:
Fundamenty: ławy, bloczki betonowe 24 cm, ocieplenie styropian 15 cm
Ściany
zewnętrzne: murowane, dwuwarstwowe, beton komórkowy firmy
Solbet 24 cm, ocieplenie 20
cm
Podłoga na gruncie: płyta betonowa, ocieplenie styropian 15 cm
Strop i stropodach nad garażem: strop międzypiętrowy gęstożebrowy
Teriva, stropodach pełny: ocieplenie styropian 30 cm
Dach: konstrukcja drewniana, ocieplenie wełna mineralna 30 cm, dachówka płaska lub
inna o podobnych parametrach
Inne: schody wewnętrzne drewniane
Instalacje:
Ogrzewanie: kocioł gazowy, rozprowadzenie ciepła: grzejniki
Wentylacja: grawitacyjna
OZE: kolektory słoneczne
Wykończenie:
Elewacje: tynk cienkowarstwowy mineralny, okładzina z płyty HPL z
naturalną okleiną drewnianą firmy Prodema i okładzina klinkierowa
Stolarka:
drewniana, PCV lub aluminiowa
Inne: żaluzja ozdobna drewniana
Okna połaciowe: rozwiązania technologiczne firmy VELUX, wyłaz dachowy
VELUX
Pobierz ekspercki poradnik VELUX i dowiedz się jak wybrać okna dachowe
Wersje w serii Lars - zapytaj o dostępność:
- Lars (wersja A) – wersja podstawowa
- Lars (wersja B) – inne wykończenie elewacji, dach bez okapów
- Lars (wersja B) ENERGO PLUS reco – instalacje energooszczędne firmy
Vaillant: pompa ciepła, wentylacja mechaniczna z rekuperacją, system fotowoltaiczny
oraz ogrzewanie podłogowe firmy Purmo
- wszystkie
wersje o takim samym układzie funkcji oraz z inną propozycją
wykończenia elewacji
- wszystkie wersje z dwoma wariantami garaży: z garażem jedno- i
dwustanowiskowym
- odbicie lustrzane do każdej wersji
Wszystkie wersje domów możliwe w dwóch standardach/wariantach
instalacyjnych:
- ENERGO: kocioł gazowy kondensacyjny, grzejniki, wentylacja
grawitacyjna, OZE: kolektory słoneczne
- ENERGO PLUS: pompa ciepła, ogrzewanie podłogowe, wentylacja mechaniczna,
OZE: kolektory słoneczne lub panele fotowoltaiczne
Istnieją techniczne możliwości wykonania
zmian:
-
podpiwniczenia budynku
- wykonania budynku w technologii szkieletowej
- zbliźniaczenia lub wykonania domu dwulokalowego
- dokonania zmian funkcjonalnych wg indywidualnych wymagań




















