Charakterystyka: Dom parterowy,
niepodpiwniczony, z garażem dwustanowiskowym
Przeznaczenie: Dom dla 3-5-osobowej
rodziny
Technologia i
konstrukcja:
Ściany zewnętrzne: murowane,
dwuwarstwowe, beton komórkowy firmy Solbet 24 cm, ocieplenie wełna mineralna Isover
20 cm
Ściany wewnętrzne: nośne i działowe
murowane, beton komórkowy firmy Solbet 24 cm i 12 cm
Strop: gęstożebrowy Teriva, ocieplenie wełna mineralna Isover 30 cm
Dach: konstrukcja drewniana,
dachówka ceramiczna płaska Bergamo firmy Röben, więźba dachowa dostępna również
w systemie prefabrykacji drewnianej
Rozwiązania instalacyjne:
Ogrzewanie: kocioł gazowy
kondensacyjny firmy Viessmann, rozprowadzenie ciepła: grzejniki firmy Purmo
Wentylacja: grawitacyjna
OZE: kolektory słoneczne
Wykończenie:
Elewacje: tynk cienkowarstwowy
mineralny w kolorze białym TO-PA001 z palety firmy Termo Organika, okładzina
drewniana, panele ROCKPANEL STONES w kolorze szarym
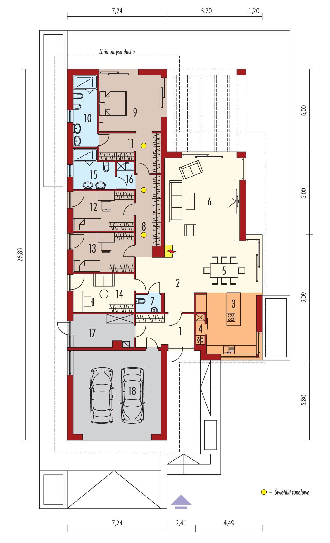
Stolarka: aluminiowo-drewniana, świetliki tunelowe Velux Pobierz ekspercki poradnik VELUX i dowiedz się jak wybrać okna dachowe, drzwi wejściowe i brama garażowa firmy Hörmann
Otoczenie: kostka betonowa i płyty tarasowe firmy Libet, system tarasowy ProDeck - deska kompozytowa Terra w kolorze orzech
Wersje - zapytaj o dostępność:
- Karen - bez garażu lub z garażem jednostanowiskowym
-
Karen ENERGO PLUS - wersja z instalacjami energooszczędnymi: pompa
ciepła, ogrzewanie podłogowe, wentylacja mechaniczna, panele
fotowoltaiczne, różne wersje garaży
- odbicie lustrzane do każdej wersji
Istnieje
techniczna możliwość:
- podpiwniczenia budynku
- wykonania budynku w technologii szkieletowej
Warianty działek dla wersji domu z garażem jednostanowiskowym i bez garażu:



















