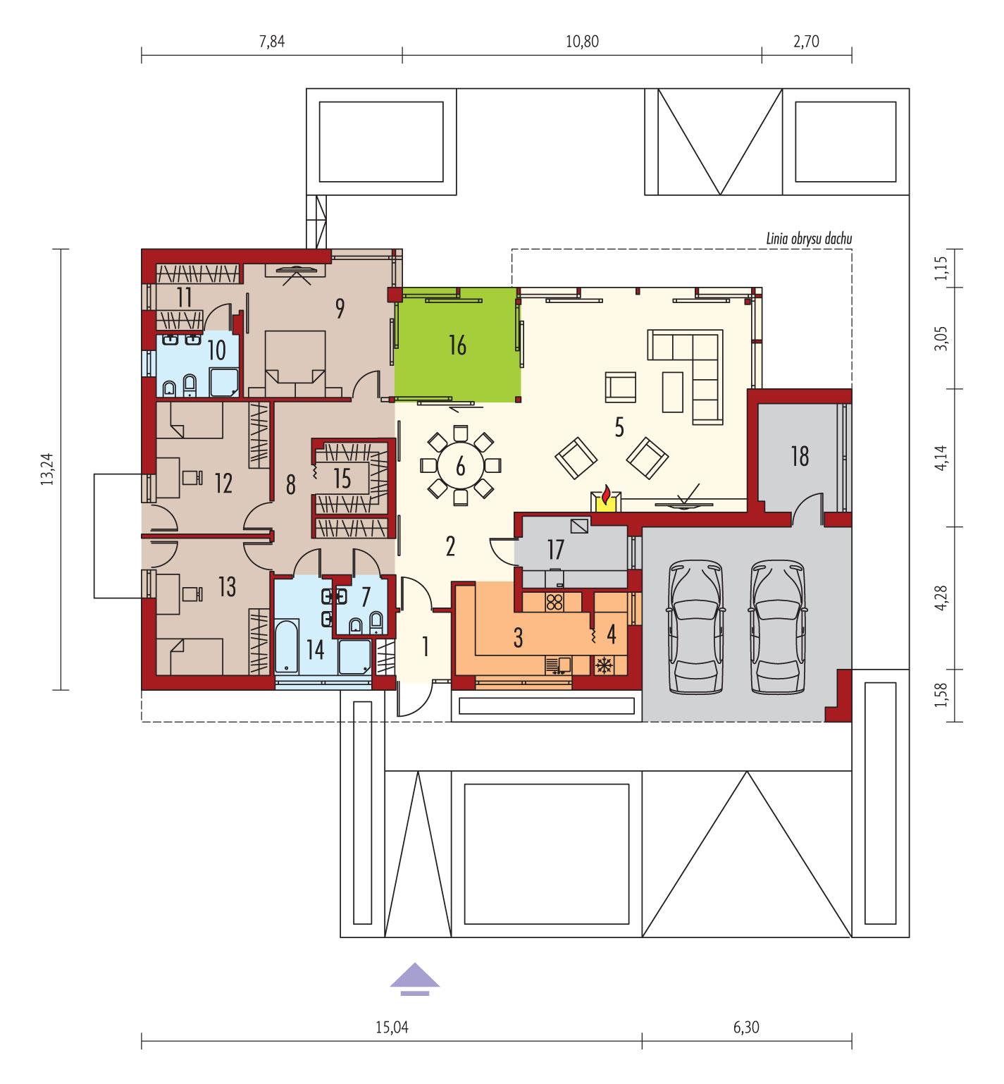
W budynku zastosowano wentylację grawitacyjną oraz węzeł grzewczy oparty o kocioł gazowy.
Charakterystyka: dom parterowy, niepodpiwniczony, z wnęką samochodową
dwustanowiskową
Przeznaczenie: Dom dla 3-4-osobowej rodziny
Technologia i
konstrukcja:
Ściany zewnętrzne: murowane,
dwuwarstwowe, beton komórkowy 24 cm, ocieplenie styropian Termo Organika 20 cm
Ściany wewnętrzne: nośne i działowe
murowane, cegła wapienno-piaskowa 24 cm i 12 cm
Stropodach: strop gęstożebrowy
Teriva, ocieplenie wełna mineralna 30-48 cm
Rozwiązania instalacyjne:
Ogrzewanie: kocioł gazowy
kondensacyjny firmy Viessmann, rozprowadzenie ciepła: grzejniki firmy Purmo
Wentylacja: grawitacyjna
OZE: kolektory słoneczne firmy Viessmann
Wykończenie:
Elewacje: tynk cienkowarstwowy
mineralny w kolorze białym TO-PA 001 z palety firmy Termo Organika, okładzina
kamienna w kolorze białym
Stolarka: drewniana, PVC lub
aluminiowa, drzwi tarasowe podnoszono-przesuwne typu HS
aluminiowo-drewniane Innowiev firmy Fakro, drzwi wejściowe firmy Hörmann
Otoczenie: kostka betonowa i
płyty tarasowe firmy Libet, system tarasowy ProDeck - deska kompozytowa Terra w
kolorze orzech
Wersje - zapytaj o dostępność:
- EX 6 (z wiatą) ENERGO PLUS – dom z instalacjami energooszczędnymi:
pompą ciepła, wentylacją mechaniczną, systemem solarnym i ogrzewaniem
podłogowym
- Odbicie lustrzane do każdej wersji
Istnieją techniczne możliwości wykonania
zmian:
-
podpiwniczenia budynku
- wykonania budynku w technologii szkieletowej
- dokonania zmian funkcjonalnych wg indywidualnych wymagań



















