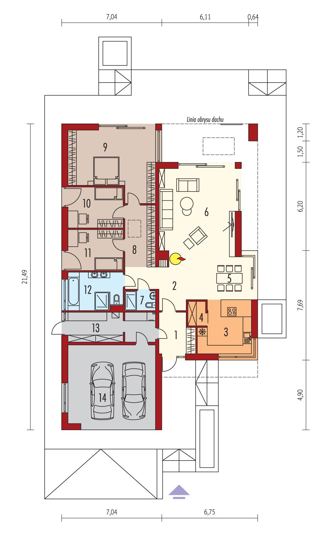
Charakterystyka: dom parterowy, niepodpiwniczony, z garażem
dwustanowiskowym
Przeznaczenie: dom dla 2-4-osobowej rodziny
Technologia i konstrukcja:
Ściany zewnętrzne: murowane, dwuwarstwowe, beton komórkowy firmy H+H 24 cm,
ocieplenie styropian Termo Organika 20 cm
Ściany wewnętrzne: nośne i działowe murowane, beton komórkowy firmy H+H
24 cm i 12 cm
Strop: żelbetowy prefabrykowany Filigran, ocieplenie wełna mineralna 30
cm
Dach: stropodach płaski, dach zielony
Rozwiązania instalacyjne:
Ogrzewanie: kocioł gazowy kondensacyjny firmy Viessmann, rozprowadzenie
ciepła: grzejniki
Wentylacja: grawitacyjna
OZE: kolektory słoneczne
Wykończenie:
Elewacje: tynk cienkowarstwowy mineralny w kolorze białym TO-PA001 z palety
firmy Termo Organika, okładzina drewniana i kamienna
Stolarka: aluminiowa firmy Reynaers Aluminium, okna do dachów płaskich firmy FAKRO,
żaluzje przeciwsłoneczne
Otoczenie: kostka betonowa i płyty tarasowe firmy Libet, system tarasowy
ProDeck - deska kompozytowa Terra w kolorze orzech
Wersje - zapytaj o dostępność:
- EX 21 SOFT – bez garażu
- EX 21 ENERGO PLUS – taki sam układ funkcjonalny, instalacje energooszczędne:
pompa ciepła, ogrzewanie podłogowe, wentylacja mechaniczna, system solarny, bez
garażu i za garażem dwustanowiskowym
- odbicie lustrzane do każdej wersji
Istnieją
techniczne możliwości wykonania zmian:
- podpiwniczenia budynku
- wykonania budynku w technologii szkieletowej
- dokonania zmian funkcjonalnych wg indywidualnych wymagań



















