Charakterystyka: dom
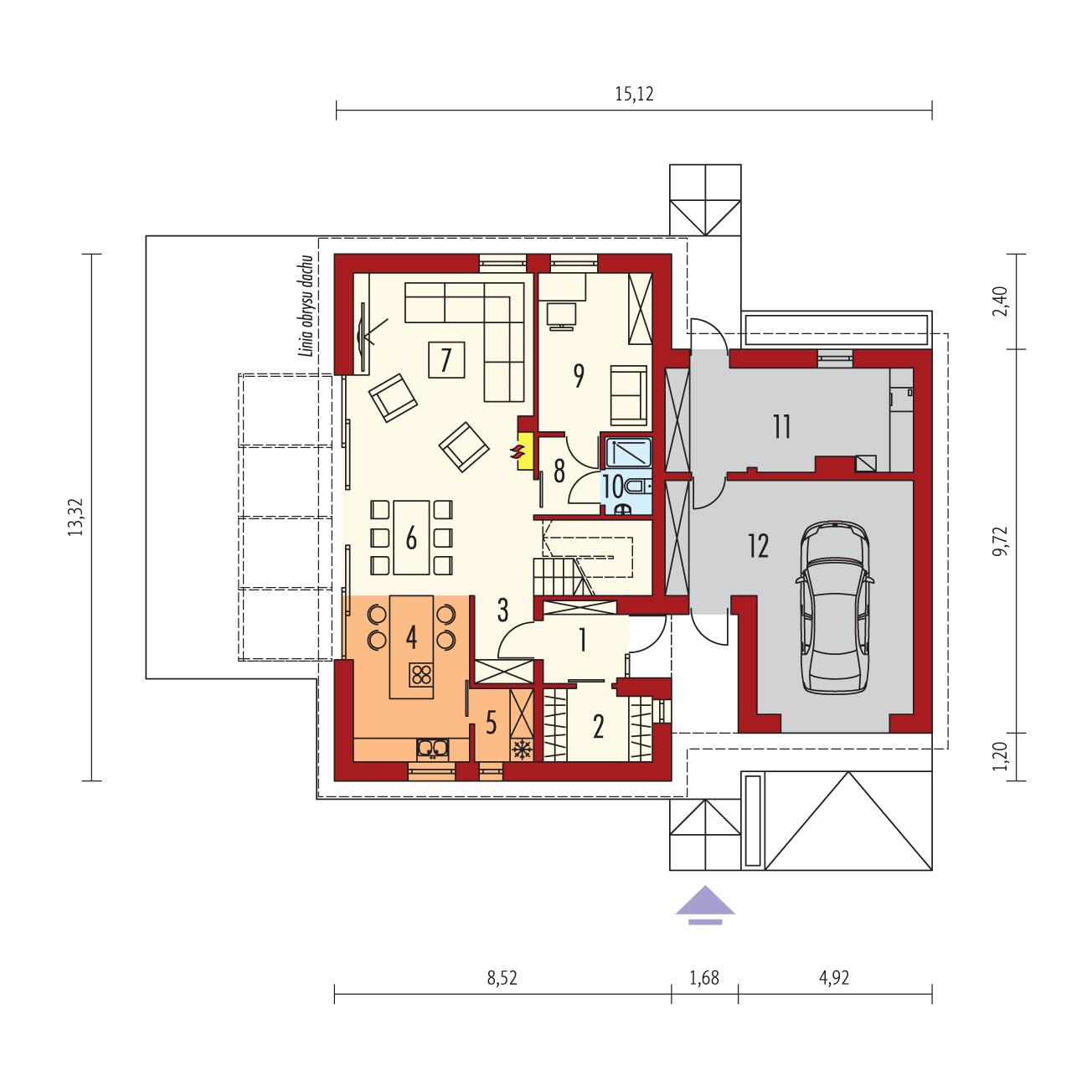
parterowy z poddaszem użytkowym, niepodpiwniczony, z garażem jednostanowiskowym
Przeznaczenie: dom dla 3-5-osobowej rodziny
Technologia i
konstrukcja:
Ściany zewnętrzne: murowane, dwuwarstwowe, beton komórkowy firmy
Solbet 24 cm, ocieplenie
styropian Termo Organika 18/22 cm
Ściany wewnętrzne: nośne i działowe murowane, beton komórkowy firmy
Solbet 24cm i 12cm
Strop i stropodach nad garażem: strop międzypiętrowy gęstożebrowy
Teriva
Dach: konstrukcja drewniana, ocieplenie wełna mineralna Isover 30
cm, dachówka ceramiczna płaska Bergamo
firmy Röben
Schody: schody
wewnętrzne drewniane
Inne: pergola stalowa
lub drewniana z roletami, dom spełnia standardy Grupy Saint-Gobain: marka
Isover, Rigips i Weber zapewniają najwyższą jakość wbudowanych produktów:
okładziny ścienne i sufitowe, paroizolacje, systemy podłogowe, zaprawy, kleje,
hydroizolacje
Rozwiązania
instalacyjne energooszczędne:
Ogrzewanie: kocioł gazowy
kondensacyjny firmy Viessmann, rozprowadzenie ciepła: grzejniki firmy Purmo
Wentylacja: mechaniczna
nawiewno-wywiewna z rekuperacją firmy Viessmann
OZE: kolektory
słoneczne firmy Viessmann
Wykończenie:
Elewacja: tynk cienkowarstwowy
mineralny Terom Organika, okładzina z desek włóknocementowych Cedral, okładzina
z płytek kamiennych
Stolarka: drewniana, PCV lub aluminiowa, okna tarasowe typu HS, rolety
zewnętrzne QuadBox firmy BeClever
Okna połaciowe: rozwiązania
technologiczne firmy Velux
Wersje w serii EX 16 - zapytaj o dostępność:
- EX 16 ENERGO PLUS reco – wersja podstawowa, instalacje energooszczędne firmy Vaillant: pompa ciepła, wentylacja mechaniczna z rekuperacją, system fotowoltaiczny oraz ogrzewanie podłogowe firmy Purmo
- EX 16 SOFT – wersja ze standardowymi instalacjami: kocioł gazowy, wentylacja grawitacyjna; kolektory słoneczne
- EX 16 G1 MULTI-COMFORT – wersja z instalacjami: kocioł gazowy kondensacyjny, wentylacja mechaniczna z rekuperacją, kolektory słoneczne; rozwiązania technologiczno-materiałowe Grupy Saint-Gobain: Isover, Weber, Rigips; garaż jednostanowiskowy, inne wykończenie elewacji
- EX 16 II G1 – podobny układ funkcjonalny, inne wykończenie elewacji, wersja z instalacjami: kocioł gazowy kondensacyjny, wentylacja mechaniczna z rekuperacją, kolektory słoneczne
- odbicie lustrzane do każdej wersji
Wszystkie
wersje domów możliwe w dwóch standardach/wariantach instalacyjnych:
- ENERGO: kocioł gazowy kondensacyjny, grzejniki, wentylacja
grawitacyjna, OZE: kolektory słoneczne
- ENERGO PLUS: pompa ciepła, ogrzewanie podłogowe, wentylacja
mechaniczna, OZE: panele fotowoltaiczne
Istnieją
techniczne możliwości wykonania zmian:
- podpiwniczenia budynku
- wykonania budynku w technologii szkieletowej
- dokonania zmian funkcjonalnych wg indywidualnych wymagań



















