Charakterystyka: Dom parterowy z
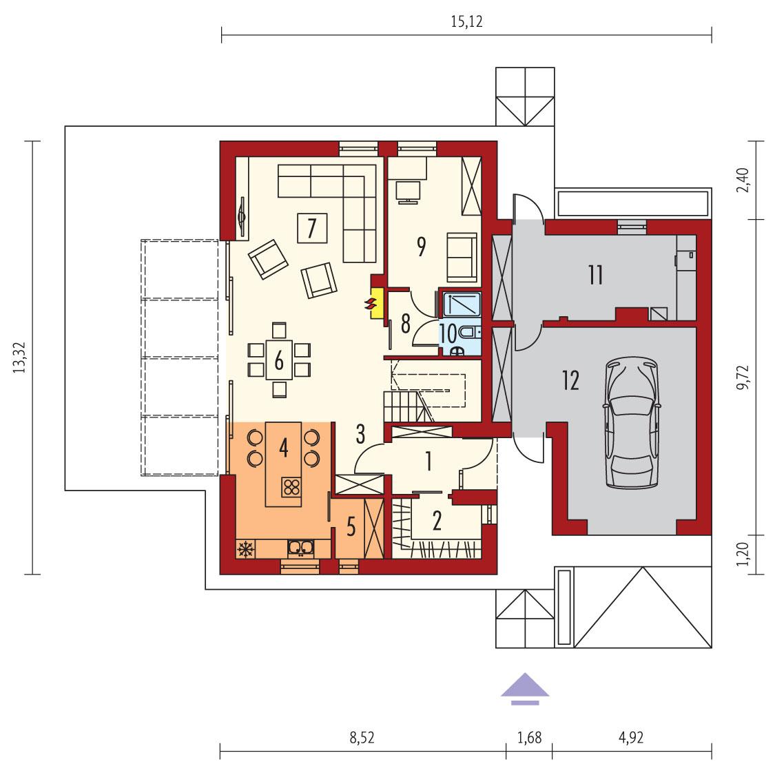
poddaszem użytkowym, niepodpiwniczony, z garażem jednostanowiskowym
Przeznaczenie: Dom dla 3-5-osobowej
rodziny
Technologia i
konstrukcja:
Ściany zewnętrzne: murowane,
dwuwarstwowe, beton komórkowy firmy Solbet 24 cm, ocieplenie wełna mineralna
typ Fasoterm 35 i Super-Vent firmy Isover gr. 20 cm
Ściany wewnętrzne: nośne i działowe
murowane, beton komórkowy firmy Solbet 24 cm i 12 cm
Strop: międzypiętrowy gęstożebrowy
Teriva
Dach: konstrukcja drewniana,
ocieplenie wełna mineralna Isover 30
cm, blacha na rąbek stojący w kolorze grafitowym
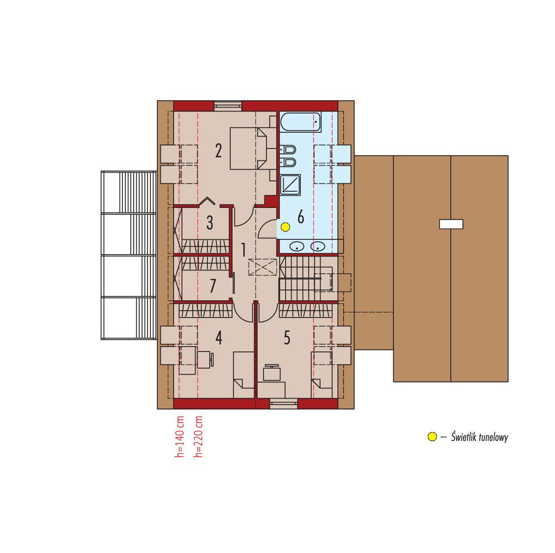
Schody: schody wewnętrzne drewniane
Inne: pergola stalowa lub drewniana z roletami, dom spełnia standardy Grupy Saint-Gobain; Marka Isover, Rigips i Weber zapewniają najwyższą jakość wbudowanych produktów: systemy ociepleń, okładziny ścienne i sufitowe, paroizolacje, systemy podłogowe, zaprawy, kleje, hydroizolacje
Rozwiązania instalacyjne energooszczędne:
Ogrzewanie: kocioł gazowy
kondensacyjny firmy Viessmann, rozprowadzenie ciepła: grzejniki firmy Purmo
Wentylacja: wentylacja
mechaniczna nawiewno-wywiewna z odzyskiem ciepła firmy Viessmann
OZE: kolektory słoneczne
firmy Viessmann
Dodatkowo: stacja uzdatniania wody firmy Viessmann
Wykończenie:
Elewacje: tynk cienkowarstwowy
mineralny w kolorze grafitowym Weber, okładzina - system elewacji wentylowanej:
deski włóknocementowe Cedral w kolorze beżowo-żółtym np. C11 lub kremowo-białym
np. C07, okładzina z blachy stalowej w kolorze pokrycia dachu
Stolarka: drewniana, PVC lub
aluminiowa, drzwi tarasowe podnoszono-przesuwne typu HS aluminiowo-drewniane, rolety
zewnętrzne w systemie QuadBox firmy BeClever, drzwi wejściowe firmy Hörmann
Okna połaciowe: rozwiązania
technologiczne i wyłaz dachowy firmy Velux
Otoczenie: kostka betonowa i
płyty tarasowe firmy Libet, system tarasowy ProDeck - deska kompozytowa Terra w
kolorze orzech
Dostępne wersje w serii EX 16:
- EX 16 ENERGO PLUS reco – wersja podstawowa, instalacje energooszczędne
firmy Vaillant: pompa ciepła, wentylacja mechaniczna z rekuperacją, system
fotowoltaiczny oraz ogrzewanie podłogowe firmy Purmo
- EX 16 SOFT – wersja ze standardowymi instalacjami: kocioł gazowy,
wentylacja grawitacyjna
- EX 16 G1 Multi-Comfort – wersja ze standardowymi instalacjami: kocioł
gazowy kondensacyjny, wentylacja grawitacyjna, rozwiązania
technologiczno-materiałowe Grupy Saint-Gobain: Isover, Weber, Rigips, garaż
jednostanowiskowy, inne wykończenie elewacji
- EX 16 II ENERGO PLUS – podobny układ funkcjonalny, inne wykończenie
elewacji, energooszczędne instalacje: pompa ciepła, ogrzewanie podłogowe,
wentylacja mechaniczna z rekuperacją, panele fotowoltaiczne
- odbicie lustrzane do każdej wersji
Wszystkie
wersje domów dostępne w dwóch standardach/wariantach instalacyjnych:
- ENERGO: kocioł gazowy kondensacyjny, grzejniki, wentylacja
grawitacyjna, OZE: kolektory słoneczne
- ENERGO PLUS: pompa ciepła, ogrzewanie podłogowe, wentylacja
mechaniczna, OZE: panele fotowoltaiczne
Istnieją techniczne możliwości wykonania
zmian:
- podpiwniczenia
budynku
- wykonania budynku w technologii szkieletowej
- dokonania zmian funkcjonalnych wg indywidualnych wymagań



















