Projekty z serii EX soft wyposażono w standardowy zestaw instalacji: wentylację grawitacyjną i kocioł gazowy.
Charakterystyka: dom
parterowy z poddaszem użytkowym, niepodpiwniczony
Przeznaczenie: dom
dla 4-5-osobowej rodziny
Technologia i wykończenie:
Fundamenty: ławy,
bloczki betonowe 24 cm,
ocieplenie styropian 15 cm
Ściany zewnętrzne: murowane,
dwuwarstwowe, beton komórkowy Solbet 24
cm, ocieplenie 20 cm
Ściany wewnętrzne: murowane,
cegła wapienno-piaskowa, ściany nośne Solbet 24 cm, ścianki działowe Solbet 12 cm
Podłoga na gruncie: płyta
betonowa, ocieplenie styropian 15
cm
Strop i stropodach nad garażem: strop
międzypiętrowy gęstożebrowy Teriva
Dach: konstrukcja
drewniana, ocieplenie wełna mineralna 30 cm, blacha na rąbek stojący Classic firmy Ruukki
Rozwiązania instalacyjne:
Ogrzewanie: kocioł gazowy, rozprowadzenie ciepła: grzejniki
Wentylacja: grawitacyjna
Wykończenie:
Elewacja: tynk
cienkowarstwowy mineralny i okładzina drewniana
Stolarka: drewniana lub aluminiowa, ślusarka - fasada aluminiowa
Okna połaciowe: rozwiązania
technologiczne firmy FAKRO
Inne: zewnętrzne drewniane
żaluzje przesuwne
Otoczenie: system tarasowy ProDeck - deska kompozytowa Terra w kolorze złoty dąb
Dostępne wersje:
-
Odbicie lustrzane
Istnieje możliwość:
-
podpiwniczenia budynku
Atuty projektu okiem
architekta:
-
Zwarta bryła sprzyjająca energooszczędności
-
Bardzo dobre parametry cieplne
-
Efektowna, nowoczesna kompozycja
elewacji
-
Modne, wielkoformatowe przeszklenia od strony ogrodu oraz w jadalni z widokiem
na ogródek
-
Kuchnia z praktyczną spiżarnią
-
Reprezentacyjny salon z kominkiem oferujący wiele możliwości aranżacji
-
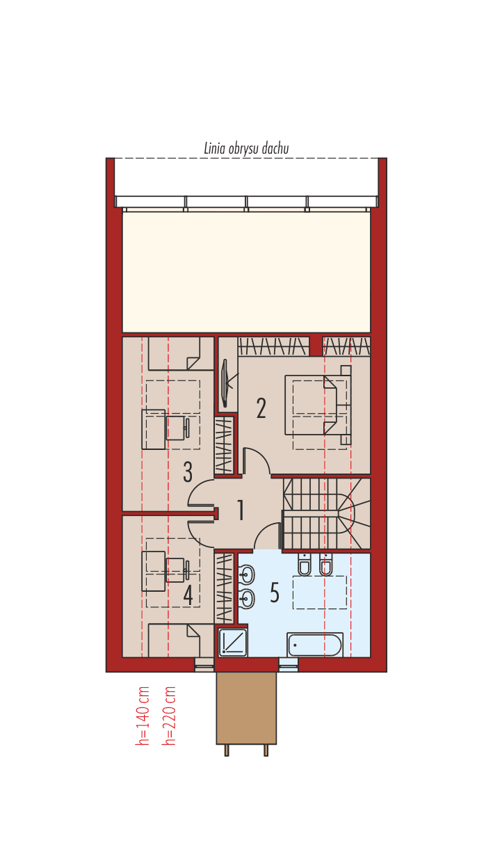
Wygodna strefa nocna zaplanowana na poddaszu
-
Funkcjonalne szafy wnękowe
-
Żaluzje zewnętrzne przesuwne jako osłona przed przegrzewaniem w upalne dni
-
Duże pomieszczenie techniczne pozwala na zastosowanie dowolnego źródła
ogrzewania



















