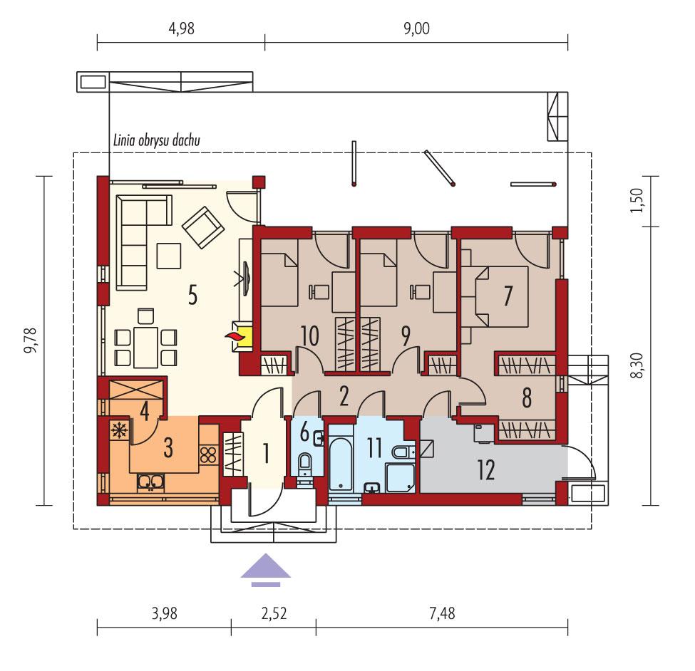
Charakterystyka: Dom parterowy, niepodpiwniczony
Przeznaczenie: Dom dla 3-4 osobowej rodziny
Technologia i konstrukcja:
Ściany zewnętrzne: murowane, beton komórkowy 24 cm, ocieplenie wełna
mineralna 12 cm
Strop: gęstożebrowy Teriva
Dach: konstrukcja drewniana, ocieplenie wełna mineralna, dachówka ceramiczna
firmy Röben, więźba dachowa dostępna również w systemie prefabrykacji
drewnianej
Rozwiązania instalacyjne:
Ogrzewanie: kocioł gazowy kondensacyjny firmy Viessmann, rozprowadzenie
ciepła: grzejniki
Wentylacja: grawitacyjna
OZE: kolektory słoneczne
Wykończenie:
Elewacje: tynk mineralny, okładzina drewniana, kamienna lub klinkierowa
Stolarka: drewniana, PCV lub aluminiowa, drzwi wejściowe
firmy Hörmann, rolety zewnętrzne naokienne w systemie CleverBox firmy
BeClever
Wersje - zapytaj o dostępność:
- Eryk G1 - podobny układ funkcjonalny, z garażem jednostanowiskowym
- Eryk (z wiatą) - taki sam układ funkcjonalny, z wiatą samochodową
- Eryk II - podobny układ funkcjonalny, różne wersje garaży
- Eryk III - system suchej zabudowy ścian działowych Rigips, wiązary
prefabrykowane, taki sam układ funkcjonalny, standard ociepleń ENERGO, bez
garażu i z garażem jednostanowiskowym
- Eryk IV ECONOMIC - podobny układ funkcjonalny, standard ociepleń
ENERGO, bez garażu i z garażem jednostanowiskowym
- Eryk MULTI-COMFORT - dom z rozwiązaniami materiałowo-technologicznymi
Grupy Saint-Gobain, podobny układ funkcjonalny, bez garażu i z garażem
jednostanowiskowym
- Eryk ENERGO PLUS - instalacje energooszczędne: pompa ciepła,
ogrzewanie podłogowe, wentylacja mechaniczna z rekuperacją, system solarny,
taki sam układ funkcjonalny, standard ociepleń ENERGO, bez garażu i z garażem
jednostanowiskowym
Wersje z dachem o kącie nachylenia 30°:
- Eryk (30 stopni), Eryk z wiatą (30 stopni)
- Eryk G1 (30 stopni), Eryk G1 MULTI-COMFORT (30 stopni)
- Eryk II G1 (30 stopni)
- każda wersja z inną propozycją wykończenia elewacji
- odbicie lustrzane do każdej wersji
Istnieje techniczna możliwość:
- podpiwniczenia
- wykonania budynku w technologii szkieletowej
- wykonania zmian wg wymagań indywidualnych Inwestora


















