Charakterystyka: Dom parterowy z
poddaszem użytkowym, niepodpiwniczony, z garażem dwustanowiskowym
Przeznaczenie: Dom dla 4-5-osobowej
rodziny
Technologia i konstrukcja:
Ściany zewnętrzne: murowane, dwuwarstwowe, izolacja wełna mineralna
grubości 20 cm
Strop: gęstożebrowy
Dach: konstrukcja drewniana, izolacja
wełna mineralna 30 cm, dachówka płaska lub inna o podobnych parametrach
Rozwiązania instalacyjne:
Ogrzewanie: kocioł gazowy, rozprowadzenie ciepła: grzejniki
Wentylacja: grawitacyjna
Wykończenie:
Elewacje: tynk cienkowarstwowy
mineralny w kolorze TO-OR001 z palety firmy Termo Organika i okładzina drewniana
Stolarka okienna: drewniana, PCV
lub aluminiowa
Wersje w serii Benjamin - zapytaj o dostępność:
– Benjamin G1 ENERGO – wersja podstawowa, standardowe instalacje
– Benjamin G1 Reco – taki sam układ funkcji jak w wersji podstawowej, instalacje
energooszczędne: pompa ciepła, wentylacja mechaniczna i panele fotowoltaiczne
firmy Vaillant
–
Benjamin II G2 ENERGO – taki sam układ funkcji jak w wersji podstawowej, garaż
2-stanowiskowy, inne wykończenie elewacji, standardowe instalacje
– odbicie lustrzane do każdej wersji
Wszystkie
wersje domów możliwe w dwóch standardach/wariantach instalacyjnych:
– ENERGO: kocioł gazowy kondensacyjny, grzejniki, wentylacja
grawitacyjna, OZE: kolektory słoneczne
– ENERGO PLUS: pompa ciepła, ogrzewanie podłogowe, wentylacja
mechaniczna, OZE: panele fotowoltaiczne
Istnieją techniczne możliwości wykonania
zmian:
– podpiwniczenia
budynku
– wykonania budynku w technologii szkieletowej
– dokonania zmian funkcjonalnych wg indywidualnych wymagań
Atuty projektu okiem architekta:
- Bryła sprzyjająca
energooszczędności, zminimalizowane ryzyko występowania mostków termicznych
- Okna o niskim współczynniku
przenikania ciepła
- Efektowna kompozycja elewacji
- Zastosowanie oryginalnych
rozwiązań materiałowych
- Ciekawie zaprojektowane detale
- Dobre parametry cieplne
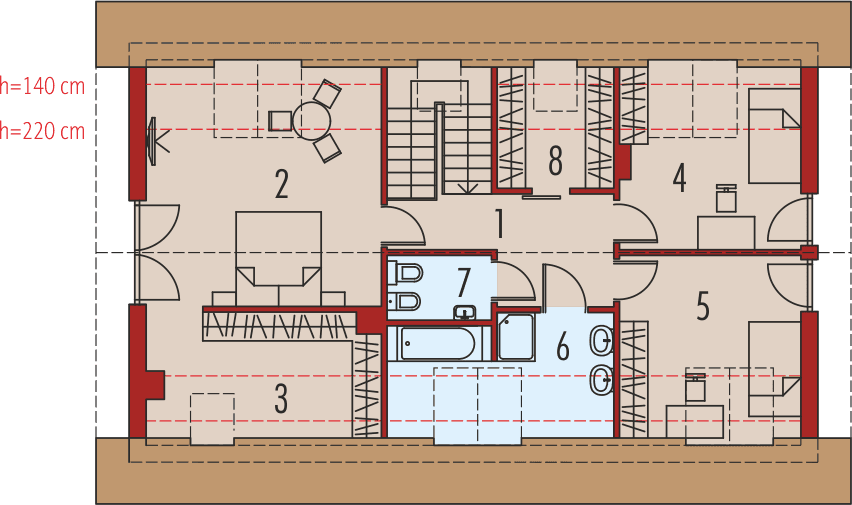
- Funkcjonalne i ergonomiczne wnętrze
- Wygodny salon z kominkiem
- Komfortowa sypialnia z garderobą na poddaszu
- Duży salon łazienkowy na poddaszu
- Duże pomieszczenie kotłowni, które pozwala na zastosowanie dowolnego źródła
ogrzewania



















