Charakterystyka: Dom parterowy z poddaszem użytkowym, podpiwniczony,
z garażem jednostanowiskowym
Przeznaczenie:
Dom dla 3-4 osobowej rodziny
Technologia i konstrukcja:
Ściany zewnętrzne: murowane,
Strop: gęstożebrowy
Dach: konstrukcja drewniana, dachówka płaska lub inna o podobnych
parametrach
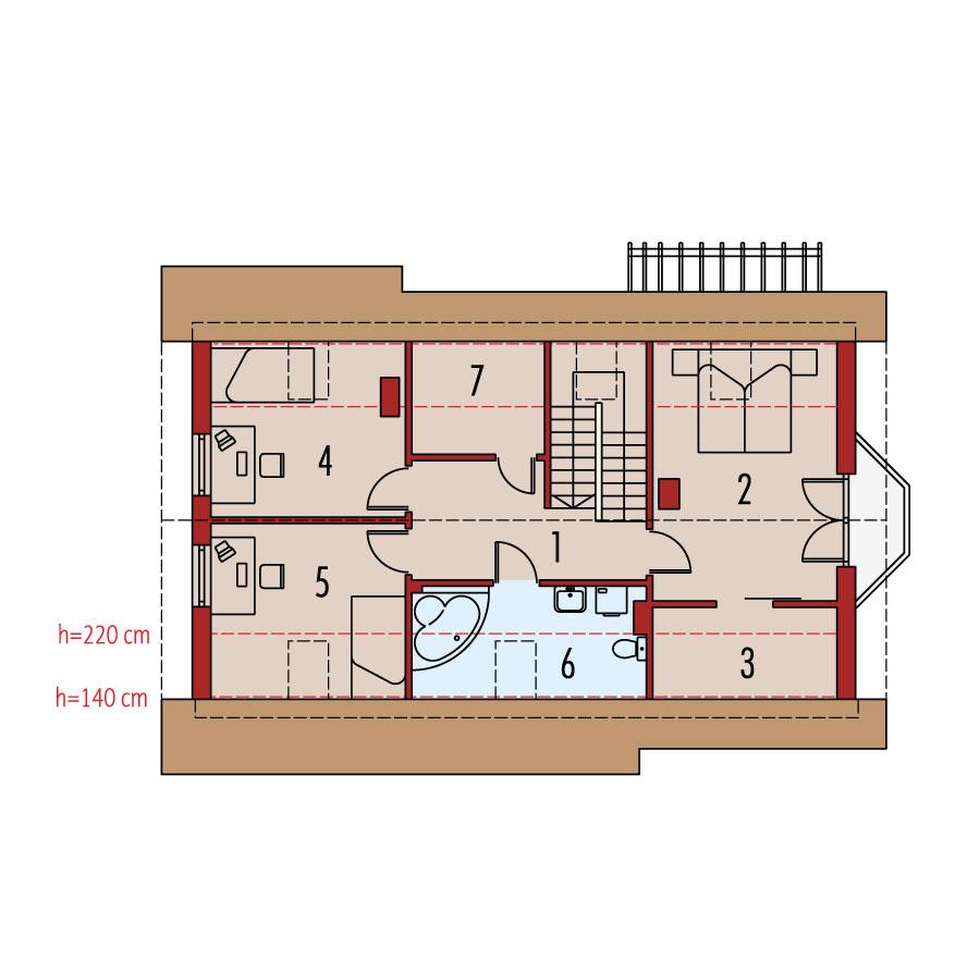
Inne: schody wewnętrzne: do podpiwniczenia – żelbetowe, na poddasze –
drewniane.
Rozwiązania instalacyjne:
Ogrzewanie: kocioł gazowy, rozprowadzenie ciepła: grzejniki
Wentylacja: grawitacyjna
Wykończenie:
Elewacje: tynk mineralny i cegła
klinkierowa
Stolarka: drewniana lub PCV. Rolety zewnętrzne w systemie
CleverBox firmy BeClever.
Wersje - zapytaj o dostępność:
- Ben G1 – wersja projektu bez piwnicy
- Ben II G1 – wersja większa projektu
- Ben II G1 (z piwnicą) – większa wersja
projektu z piwnicą



















