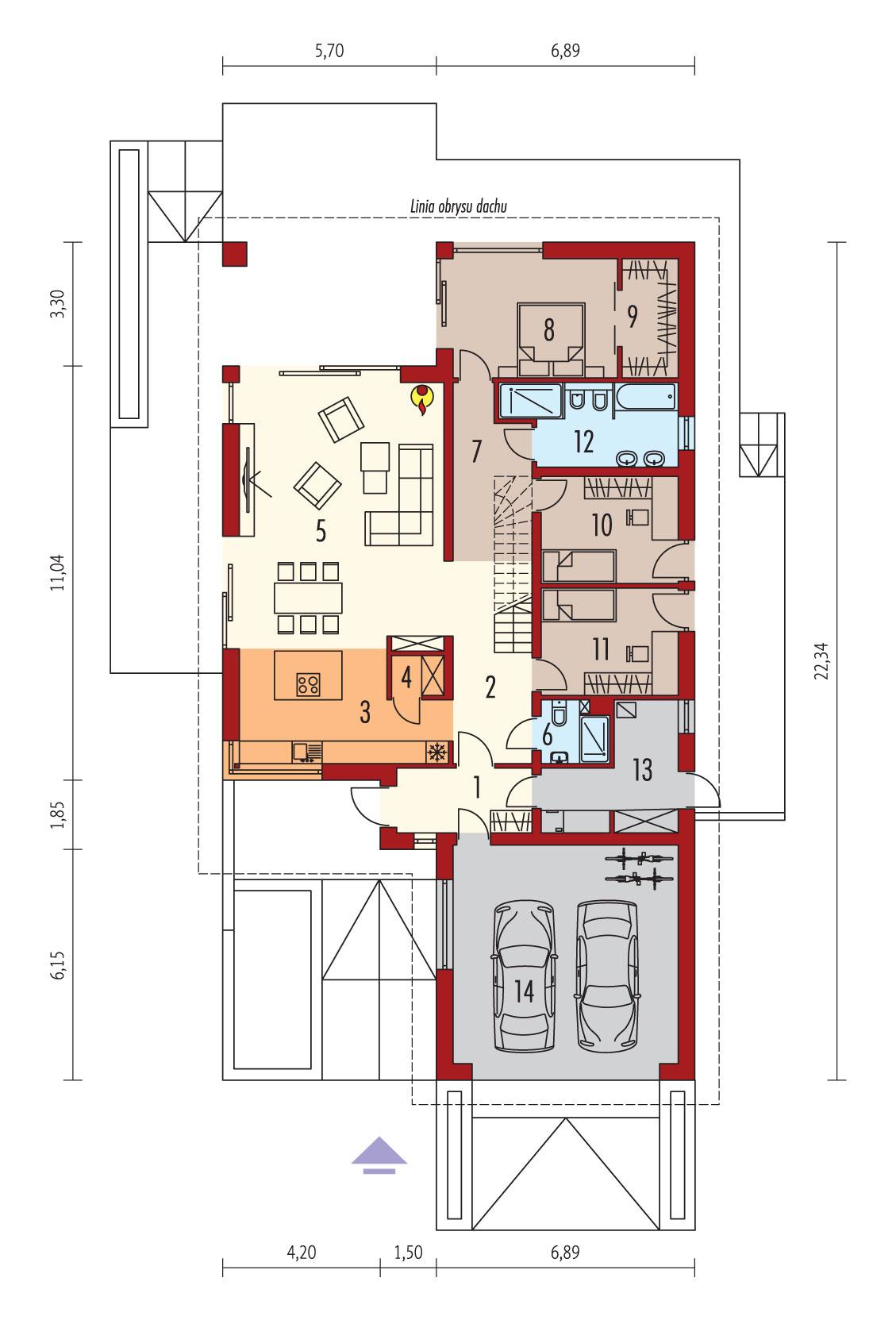
Charakterystyka: Dom parterowy z
poddaszem do późniejszej adaptacji na cele mieszkalne, niepodpiwniczony, z garażem
dwustanowiskowym
Przeznaczenie: Dom dla 3-4-osobowej
rodziny
Technologia i
konstrukcja:
Ściany zewnętrzne: murowane,
dwuwarstwowe, beton komórkowy firmy H+H 24 cm, ocieplenie styropian Termo
Organika 20 cm
Ściany wewnętrzne: nośne i działowe
murowane, beton komórkowy firmy H+H 24 cm i 12 cm
Strop: gęstożebrowy Teriva,
ocieplenie wełna mineralna Isover 30 cm
Dach: konstrukcja drewniana,
dachówka ceramiczna płaska Bergamo firmy Röben, więźba dachowa dostępna również w prefabrykacji drewnianej w systemie płytki kolczastej Mitek
Rozwiązania
instalacyjne:
Ogrzewanie: kocioł gazowy
kondensacyjny firmy Viessmann, rozprowadzenie ciepła: grzejniki firmy Purmo
Wentylacja: grawitacyjna
OZE: kolektory słoneczne
Wykończenie:
Elewacje: tynk cienkowarstwowy
mineralny w kolorze białym TO-PA001 oraz szarym TO-GY011 z palety firmy Termo
Organika, okładzina drewniana, panele elewacyjne w kolorze szarym
Stolarka: aluminiowa firmy Reynaers Aluminium lub
drewniana, żaluzje przeciwsłoneczne firmy BeClever, drzwi wejściowe i brama garażowa firmy Hörmann
Otoczenie: kostka betonowa i
płyty tarasowe firmy Libet, system tarasowy ProDeck - deska kompozytowa Terra w
kolorze orzech
Wersje - zapytaj o dostępność:
- Alison IV, Alison IV G1 – inne warianty garaży
- Alison – dom parterowy, podobna powierzchnia użytkowa, 3 sypialnie,
dach o kącie nachylenia 25°
- Alison II – inna strefa wejściowa, zadaszone wejście, dom parterowy,
mniejsza powierzchnia użytkowa, 3 sypialnie, dach o kącie nachylenia 25°
- Alison III – dom parterowy, większa powierzchnia użytkowa, 4
sypialnie, dach o kącie nachylenia 25°
- Alison V – dom z poddaszem użytkowym, większa powierzchnia użytkowa, 4
sypialnie + gabinet, dach o kącie nachylenia 30°
- wszystkie wersje o podobnym układzie funkcji oraz z inną propozycją
wykończenia elewacji
- wszystkie wersje z trzema wariantami garaży: bez garażu, z garażem
jedno- i dwustanowiskowym
- odbicie lustrzane do każdej wersji
Wszystkie
wersje domów możliwe w dwóch standardach/wariantach instalacyjnych:
- ENERGO: piec gazowy kondensacyjny, grzejniki, wentylacja grawitacyjna
- ENERGO PLUS: pompa ciepła, ogrzewanie podłogowe, wentylacja
mechaniczna, dodatkowo system solarny lub panele fotowoltaiczne
Istnieją
techniczne możliwości wykonania zmian:
-
podpiwniczenia budynku
- zmiany kąta nachylenia dachu do 35° i adaptacji poddasza na cele mieszkalne
- wykonania budynku w technologii szkieletowej
- dokonania zmian funkcjonalnych wg indywidualnych wymagań
Warianty działek dla wersji domu z garażem jednostanowiskowym i bez garażu:




















