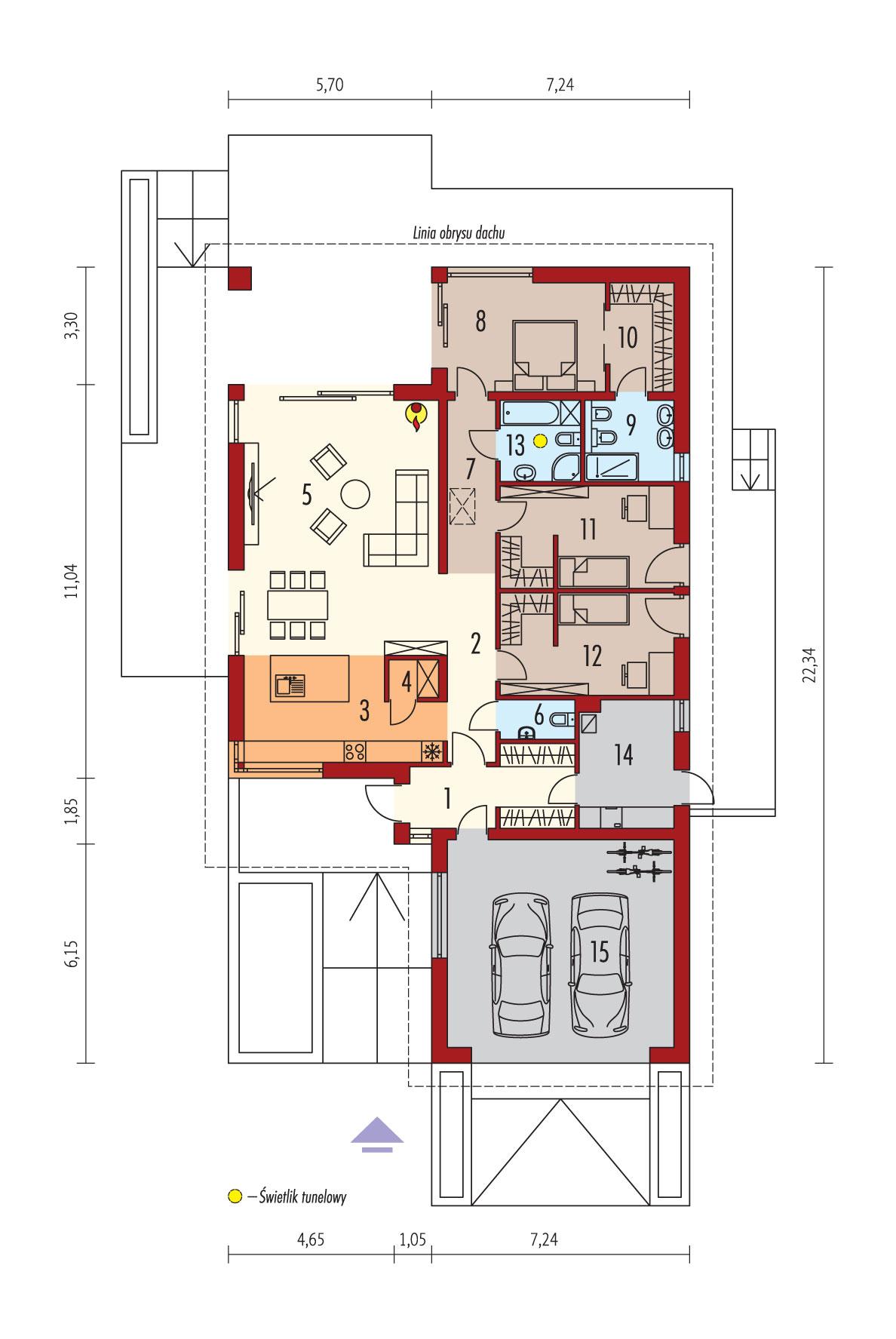
Charakterystyka: Dom parterowy, niepodpiwniczony,
z garażem dwustanowiskowym
Przeznaczenie: Dom dla 3-4-osobowej
rodziny
Technologia i konstrukcja:
Ściany zewnętrzne: murowane,
dwuwarstwowe, beton komórkowy firmy H+H 24 cm, ocieplenie styropian Termo
Organika 20 cm
Ściany wewnętrzne: nośne i działowe
murowane, beton komórkowy firmy H+H 24 cm i 12 cm
Strop: gęstożebrowy Teriva, ocieplenie
wełna mineralna Isover 30 cm
Dach: konstrukcja drewniana,
dachówka ceramiczna płaska Bergamo firmy Röben, więźba dachowa dostępna również w prefabrykacji drewnianej w systemie płytki kolczastej Mitek
Rozwiązania
instalacyjne:
Ogrzewanie: kocioł gazowy
kondensacyjny firmy Viessmann, rozprowadzenie ciepła: grzejniki firmy Purmo
Wentylacja: grawitacyjna
OZE: kolektory słoneczne
Wykończenie:
Elewacje: tynk cienkowarstwowy mineralny w kolorze białym TO-PA001 z palety firmy Termo Organika, okładzina klinkierowa typ CALAIS firmy Röben oraz okładzina drewniana
Stolarka: aluminiowa firmy Reynaers Aluminium lub
drewniana, żaluzje przeciwsłoneczne firmy BeClever, drzwi wejściowe i brama garażowa firmy Hörman
Okna połaciowe: świetlik dachowy firmy
VELUX
Otoczenie: kostka betonowa i
płyty tarasowe firmy Libet, system tarasowy ProDeck - deska kompozytowa Terra w
kolorze orzech
Wersje - zapytaj o dostępność:
- Alison – inne warianty garaży
- Alison II – inna strefa wejściowa, zadaszone wejście, dom parterowy,
mniejsza powierzchnia użytkowa, 3 sypialnie, dach o kącie nachylenia 25°
- Alison III – dom parterowy, większa powierzchnia użytkowa, 4
sypialnie, dach o kącie nachylenia 25°
- Alison IV – dom z poddaszem do adaptacji, podobna powierzchnia
użytkowa, 3 sypialnie, dach o kącie nachylenia 30°
- Alison V – dom z poddaszem użytkowym, większa powierzchnia użytkowa, 4
sypialnie + gabinet, dach o kącie nachylenia 30°
- wszystkie wersje o podobnym układzie funkcji oraz z inną propozycją
wykończenia elewacji
- wszystkie wersje z trzema wariantami garaży: bez garażu, z garażem
jedno- i dwustanowiskowym
- odbicie lustrzane do każdej wersji
Wszystkie wersje
domów możliwe w dwóch standardach/wariantach instalacyjnych:
- ENERGO: piec gazowy kondensacyjny, grzejniki, wentylacja grawitacyjna
- ENERGO PLUS: pompa ciepła, ogrzewanie podłogowe, wentylacja
mechaniczna, dodatkowo system solarny lub panele fotowoltaiczne
Istnieją techniczne możliwości wykonania zmian:
- podpiwniczenia budynku
- zmiany kąta nachylenia dachu do 30° lub 35° i adaptacji poddasza na cele
mieszkalne
- wykonania budynku w technologii szkieletowej
- dokonania zmian funkcjonalnych wg indywidualnych wymagań
Warianty działek dla wersji domu z garażem jednostanowiskowym i bez garażu:



















