Amber 4 - oryginalny i energooszczędny dom dla rodziny
Amber 4 to projekt domu, który wyróżnia się oryginalną architekturą i energooszczędnością. Dom jest wykonany z drewna, które nadaje mu niepowtarzalny charakter. Dzięki wykorzystaniu nowoczesnych materiałów i instalacji, koszty eksploatacji domu są niskie.
Architektura budynku
Dom Amber 4 to projekt parterowy z poddaszem użytkowym. Bryła budynku jest prosta i funkcjonalna. Elewacja wykonana jest z drewna, które nadaje jej ciepły i naturalny wygląd. Drewno jest również materiałem trwałym i odpornym na uszkodzenia.
Drewniana elewacja została skomponowana z szarymi i grafitowymi wstawkami, słupami, glifami i ramami okien. Taka kolorystyka i kompozycja materiałów tworzy niepowtarzalny styl.
Od frontu dodatkowo zastosowano kontrastową białą płytę nad garażem i podestem wejściowym, a od strony ogrodu - białą konstrukcję zadaszenia tarasu.
Funkcjonalność domu
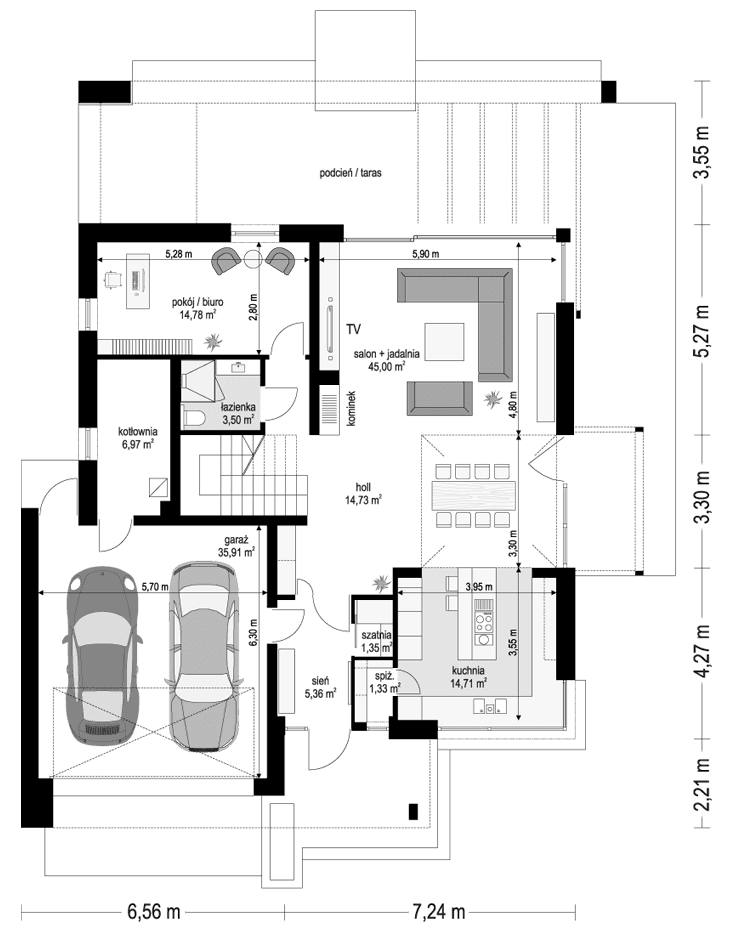
Wnętrze domu Amber 4 jest równie przemyślane, co jego architektura.
Na parterze znajduje się przestronna przestrzeń dzienna, w skład której wchodzi salon z jadalnią i otwartą kuchnią. Salon jest połączony z jadalnią szerokim przeszkleniem, dzięki czemu wnętrze jest doskonale doświetlone. Kuchnia jest otwarta na salon, dzięki czemu domownicy mogą spędzać czas razem, nawet podczas przygotowywania posiłków.
Na parterze znajduje się również dodatkowy pokój, który może być wykorzystany jako gabinet, pokój dla gości lub sypialnia dla dziecka.
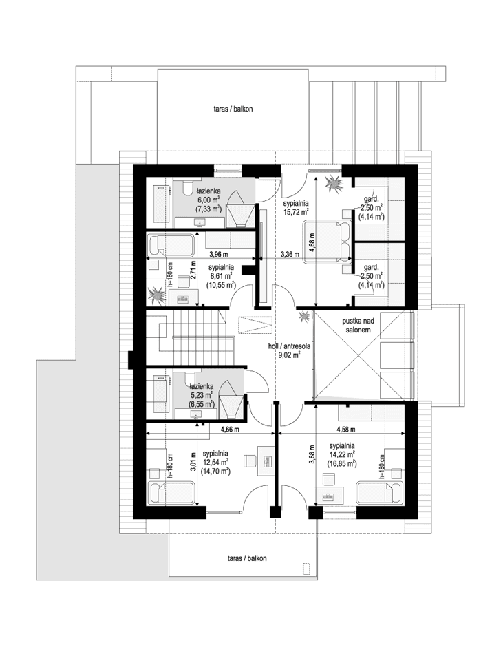
Na poddaszu znajdują się cztery sypialnie i dwie łazienki. Sypialnia rodziców jest oddzielnym apartamentem z własną łazienką i garderobą. Pozostałe trzy sypialnie są przestronne i wygodne.
Energooszczędność
Dom Amber 4 został zaprojektowany z wykorzystaniem nowoczesnych materiałów i instalacji, dzięki czemu koszty jego eksploatacji są niskie.
Dom jest ocieplony nowoczesnymi materiałami, które zapewniają wysoką izolacyjność termiczną. Dach został pokryty energooszczędną dachówką, która ogranicza straty ciepła.
W domu zastosowano również nowoczesne instalacje, takie jak instalacja fotowoltaiczna, która zapewnia domowi energię elektryczną.
Możliwości aranżacyjne
Dom Amber 4 jest projektem otwartym, który daje wiele możliwości aranżacyjnych.
Salon z jadalnią można połączyć w jeden duży salon lub wygospodarować oddzielny pokój dla gości.
Pokój na parterze można wykorzystać jako gabinet, pokój dla gości lub sypialnię dla dziecka.
Sypialnie na poddaszu można zaaranżować w dowolny sposób, w zależności od potrzeb domowników.
Dom Amber 4 to doskonała propozycja dla rodzin, które cenią sobie oryginalność, funkcjonalność i oszczędność.
Dom jest wykonany z trwałych i naturalnych materiałów, dzięki czemu będzie służył przez wiele lat.
Przestronna przestrzeń dzienna zapewnia komfort i wygodę dla wszystkich domowników.
Cztery sypialnie i dwie łazienki zapewniają każdemu członkowi rodziny wystarczającą ilość prywatności.
Energooszczędność domu pozwala zaoszczędzić pieniądze na rachunkach za energię.





















