Amber - Dom, w którym sny stają się rzeczywistością
Dom to nie tylko miejsce, gdzie mieszkamy. To miejsce, gdzie tworzymy swoje wspomnienia, gdzie budujemy relacje z bliskimi, gdzie czujemy się bezpieczni i kochani. Amber to dom stworzony z myślą o tych wszystkich wartościach.
Opinia użytkownika o projekcie domu Amber:
"Szukaliśmy domu na wąską działkę i długo nie mogliśmy znaleźć niczego, co by nam się podobało. Aż trafiliśmy na Amber i od razu wiedzieliśmy, że to jest to! Dom jest genialny! Jest komfortowy, przestronny i ma piękny design. Open space na parterze jest idealny do wspólnego spędzania czasu, a duże przeszklenia zapewniają mnóstwo naturalnego światła.
Poddasze jest super wygodne. Wysoka ścianka kolankowa sprawia, że pokoje są przestronne i funkcjonalne. Łatwo w nich ustawić meble.
Jesteśmy zachwyceni domem Amber! To prawdziwa perła. Nie sądziliśmy, że na naszej wąskiej działce uda nam się wybudować tak wspaniały dom. Gratulujemy autorowi projektu!"
Dom, który cieszy oko! I dobrze się w nim mieszka
Amber to dom marzeń dla rodziny 4-6 osobowej. To dom, w którym każdy znajdzie swoje miejsce do odpoczynku i zabawy. To dom, w którym rodzą się piękne wspomnienia, które pozostaną z Tobą na zawsze.
Piękna architektura Ambera zachwyca od pierwszego wejrzenia. Nowoczesna stylistyka połączona z tradycyjnymi elementami tworzy harmonijną całość, która emanuje ciepłem i przytulnością. Dwuspadowy dach i kontrastujące kolory elewacji nadają domowi dynamiczny charakter.
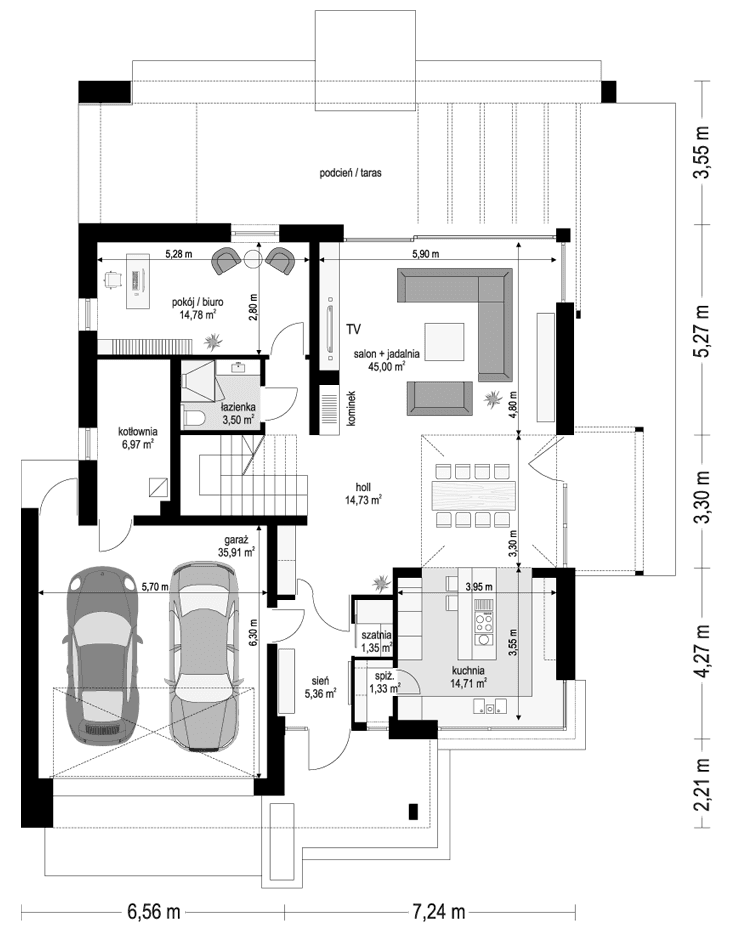
- Wnętrze domu to prawdziwa oaza spokoju i komfortu. Przestronny salon z jadalnią i antresolą to idealne miejsce do wspólnego spędzania czasu. Duże przeszklenia zapewniają naturalne światło i piękny widok na ogród. Kuchnia z wyspą i spiżarnią to raj dla każdego miłośnika gotowania. Na parterze znajduje się również dodatkowy pokój z łazienką oraz garaż z kotłownią.
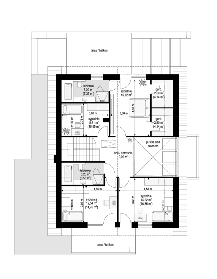
- Poddasze to strefa nocna, gdzie znajdują się cztery sypialnie z dwiema łazienkami. Wysokie ścianki kolankowe sprawiają, że pokoje są przestronne i funkcjonalne. Oddzielny apartament rodziców z własną łazienką i garderobami zapewnia komfort i prywatność.
Unikatowe cechy Ambera:
- Piękna architektura łącząca nowoczesność z tradycją
- Idealne dopasowanie do wąskiej działki
- Przestronne i funkcjonalne wnętrze
- Duże przeszklenia zapewniające naturalne światło
- Wysokie ścianki kolankowe na poddaszu
- Oddzielny apartament rodziców
- Energooszczędne rozwiązania
Amber - więcej niż zwykły dom.
Odkryj magię Ambera i poczuj się jak w domu.















