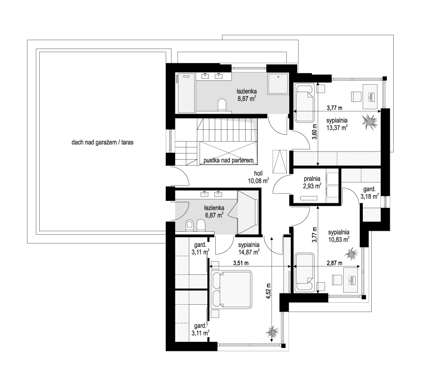
Projekt domu Qubik 2 jest to projekt domu jednorodzinnego o piętrowej prostopadłościennej bryle, przykrytej czterospadowym dachem z gzymsami. Dom przeznaczony jest dla 4- 5-osobowej rodziny - posiada trzy sypialnie z garderobami i łazienkami, oraz salon i dodatkowy pokój na parterze. Do piętrowej bryły części mieszkalnej dobudowany jest dwustanowiskowy parterowy garaż z tarasem na dachu dostępnym z piętra. Qubik 2 ma nowoczesną architekturę. Bryła budynku to połączenie kilku przenikających się mniejszych brył. Elewacje domu zdobią duże przeszklenia pokoi i dodająca elegancji i wyjątkowości okładzina klinkierowa ścian, komponująca się z kontrastującymi kolorami ram okiennych i obróbek blacharskich. Wejście do domu to szerokie drzwi z naświetlami, we wciętym narożniku bryły, podkreślone dodatkowym zadaszeniem. Od strony ogrodu na pierwszy plan wychodzi nadwieszony nad podcieniem tarasu fragment piętra budynku. Bryła budynku jest kompromisem między chęcią posiadania przez Inwestora modernistycznego domu z płaskim dachem a dostosowaniem się do często spotykanych przepisów w naszym kraju, nakazujących budowę domu z dachem spadzistym (dach nad garażem jest tarasem). Dzięki takiej bryle można połączyć pragnienie z wymaganiami urzędowymi. Wnętrze domu to głównie otwarta przestrzeń salonu, aneksu jadalnego i holu. Częściowo zasłonięta kuchnia kryje się za centralną ścianą telewizyjno- kominkową pokoju dziennego. W holu mamy piękne schody oraz otwarcie przestrzenne sufitu na piętro. Na parterze znajduje się dodatkowo pokój -gabinet, oraz część techniczna z garażem i kotłownią. Piętro domu to dwie ładne sypialnie dziecięce z garderobami, łazienką i pralnią, oraz oddzielony apartament rodziców z własną łazienką i garderobami. Bryła budynku jest prosta, łatwa w budowie. Dom został zaprojektowany jako energooszczędny, z nowoczesnymi instalacjami i materiałami wykończeniowymi. Qubik 2 stanowi doskonałą propozycję dla Inwestorów szukających nietuzinkowej nowoczesnej architektury = domu praktycznego i rzucającego się w oczy.
Zapraszamy do obejrzenia wszystkich projektów domów z serii Qubik: projekt domu Qubik, projekt domu Qubik 2, projekt domu Qubik 3, projekt domu Qubik 3 wariant B, projekt domu Qubik 4.
Materiały:
- Fundamentypłyta fundamentowa
- Ściany zewnętrzne ściany murowane - pustaki silikatowe + styropian
- Strop monolityczny betonowy nad parterem i piętrem
- Elewacje płytki klinkierowe
- Pokrycie dachu blacha na rąbek + dach płaski





















