Projekt domu Willa Parkowa 8 B - elegancki dom jednorodzinny z poddaszem użytkowym
Projekt ten to parterowy dom z poddaszem użytkowym w stylu dworkowym, projekt to dom energooszczędny. Willa Parkowa 8 B to elegancki dom jednorodzinny z poddaszem użytkowym. Projekt został zainspirowany tradycyjną architekturą dworkową, ale został przystosowany do współczesnych potrzeb. Dom jest komfortowy, funkcjonalny i łatwy w utrzymaniu.
Willa Parkowa 8 B to idealny dom dla osób, które cenią sobie elegancki wygląd, komfort i funkcjonalność. Dom jest idealny dla rodzin z dziećmi lub dla osób, które potrzebują dużej przestrzeni dziennej.
Architektura w projekcie domu Willa Parkowa 8B
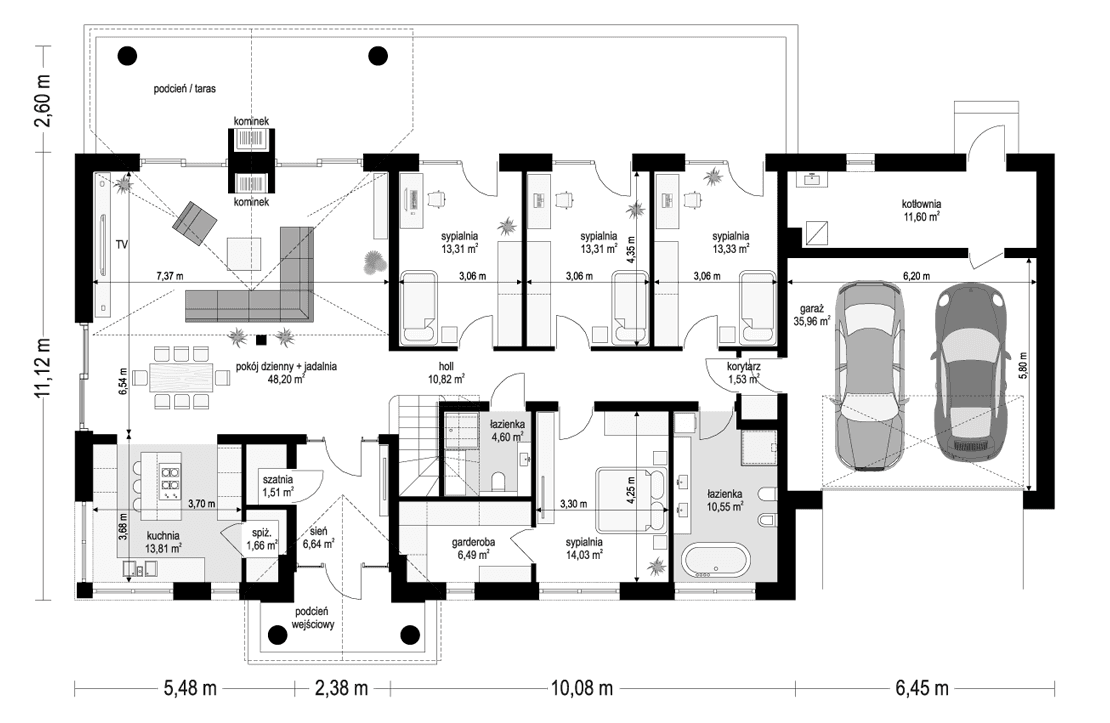
Dom o powierzchni użytkowej 178,7 m² został zaprojektowany na planie prostokąta. Bryła budynku jest prosta i harmonijna, ale dzięki łukowym elementom i sztukaterii zyskuje na elegancji.
Front domu jest ozdobiony pięknym portykiem wejściowym z szerokimi drzwiami frontowymi z naświetlami i łukowym świetlikiem doświetlającym podniesiony westybul. Od strony ogrodu urody dodaje zadaszenie tarasu z dużym przeszkleniem z salonu, z łukowymi oknami i kominkiem dwustronnym.
Wnętrze w projekcie domu Willa parkowa 8B
Wnętrze domu podzielono wyraźnie na trzy strefy: dzienną, nocną i gospodarczą.
Do domu wchodzimy reprezentacyjnym wejściem przez podwyższony przedsionek z sufitem łukowym, do pokoju dziennego łączącego funkcję holu, salonu i jadalni. Od frontu część dzienną zamyka dodatkowo kuchnia z wyspą, spiżarnią i narożnym oknem.
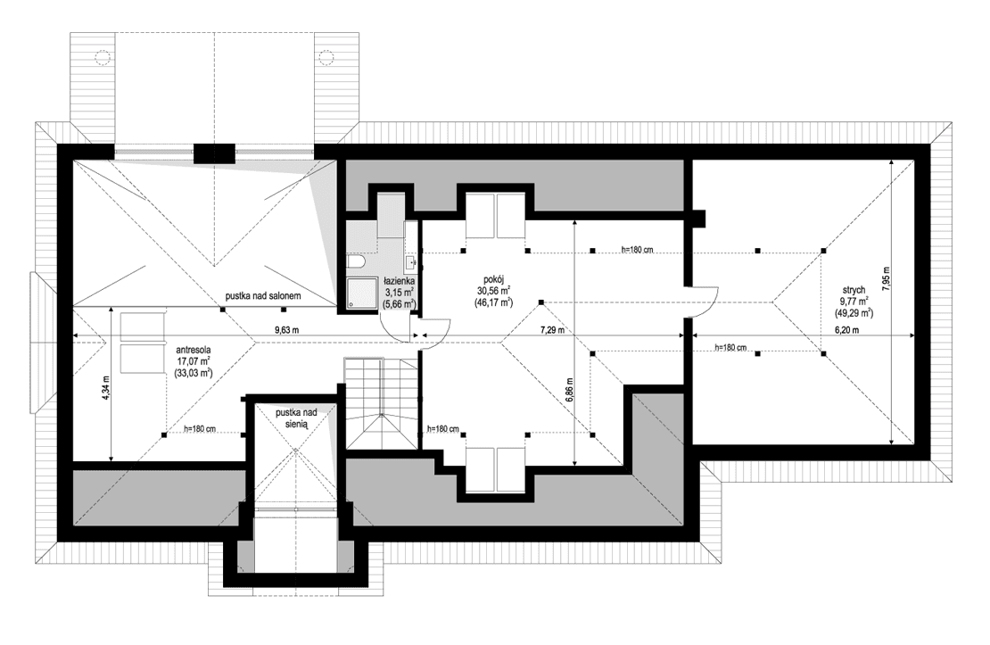
Salon zaprojektowano z otwarciem przestrzennym – pustką, łącząc przestrzennie parter z antresolą na poddaszu - będącą przedłużeniem pokoju dziennego. Dzięki temu przestrzeń jest jasna i przestronna.
W strefie nocnej zaprojekotwane wygodne przestrzenie. W części sypialnej mamy trzy sypialnie dziecięce z łazienką, oraz sypialnię master z własną łazienką i garderobą. Sypialnie są ustawne i komfortowe.
Strefa gospodarcza -Dalej zaprojektowano dostępną z korytarza przez śluzę podwójnych drzwi część gospodarczą, z pomieszczeniami kotłowni i dwustanowiskowym garażem.
Wygodne i ustawne wnętrza
Wnętrza domu są wygodne i ustawne. Salon jest przestronny i jasny, dzięki otwarciu przestrzennemu. Sypialnie są komfortowe i zapewniają wystarczającą ilość miejsca dla wszystkich domowników.
Funkcjonalny układ pomieszczeń w domu Willa Parkowa 8B
Dom został zaprojektowany z myślą o komforcie i funkcjonalności. Część dzienna jest przestronna i jasna, dzięki otwarciu przestrzennemu, które łączy salon z antresolą. Sypialnie są ustawne i komfortowe, a strefa gospodarcza zapewnia wygodny dostęp do wszystkich niezbędnych pomieszczeń.
Energooszczędność domu Willa Parkowa 8B
Dom został zaprojektowany z wykorzystaniem nowoczesnych technologii, które zapewniają jego energooszczędność. Dzięki temu dom jest tani w utrzymaniu.
Willa Parkowa 8 B to idealny dom dla rodzin z dziećmi. Parterowy układ domu zapewnia łatwość poruszania się dla wszystkich domowników, a duża powierzchnia użytkowa zapewnia wystarczającą przestrzeń dla wszystkich potrzeb.
Opinie projekt Willa Parkowa 8B:
"Zawsze marzyliśmy o domu, który będzie jednocześnie stylowy i optymalny pod względem funkcjonalności. Willa Parkowa 8 B spełniła wszystkie nasze oczekiwania.
Bardzo podoba nam się klasyczna bryła domu z eleganckimi łukami i sztukaterią. Dzięki temu dom wygląda bardzo szykownie, ale jednocześnie jest nowoczesny.
Układ pomieszczeń w domu jest również bardzo przemyślany. Część dzienna jest przestronna i jasna, dzięki czemu można w niej wygodnie spędzać czas z rodziną i przyjaciółmi. Sypialnie są ustawne i zapewniają prywatność każdemu domownikowi. Po prostu czadowy dom!" - rodzinkaPL;)




















