Projekt domu z poddaszem w stylu dworkowym - Willa Parkowa 8 A
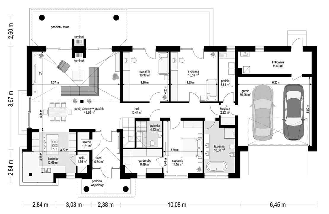
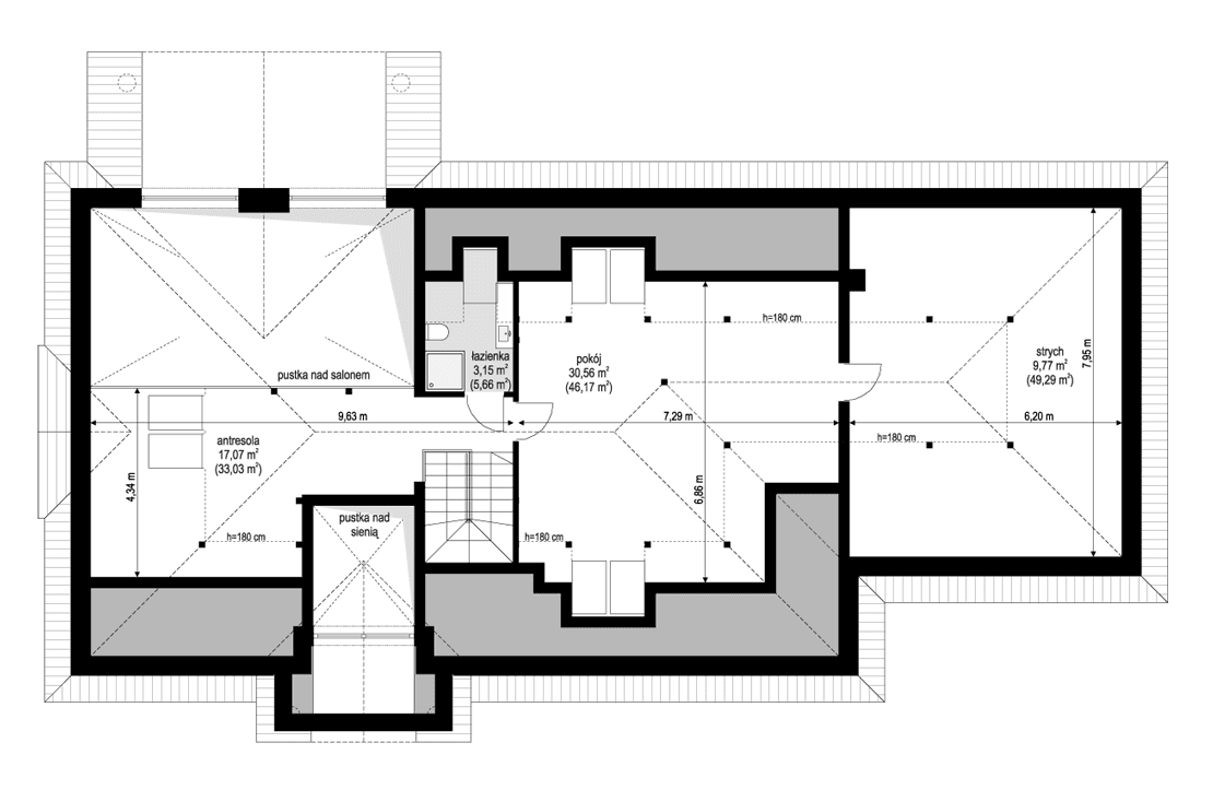
Willa Parkowa 8 A to projekt domu z poddaszem w stylu dworkowym. Dom jest parterowy, z użytkowym poddaszem, który można zaadaptować na dodatkowe pokoje, salon, gabinet lub inne pomieszczenia. Budynek ma powierzchnię użytkową 161,57 m² i jest przeznaczony dla rodziny 4-5-osobowej.
Dom zaprojektowano w stylu dworkowym, z nowoczesnymi elementami. Bryła budynku jest prosta i elegancka, z dużymi oknami i charakterystycznym łukowym świetlikiem na frontowej elewacji.
Dlaczego Willa Parkowa 8 A jest idealna dla wymagających?
Styl i elegancja - dom zaprojektowany jest w stylu dworkowo-rezydencyjnym, z nowoczesnymi elementami. Bryła budynku jest prosta i harmonijna, z dużymi oknami i charakterystycznym łukowym świetlikiem na frontowej elewacji.
Funkcjonalność - dom zapewnia komfortowe warunki życia dla rodziny 4-5-osobowej. Na parterze znajduje się strefa dzienna, nocna oraz gospodarcza.
Przestronne wnętrza - strefa dzienna jest bardzo przestronna i jasna, a strefa nocna składa się z trzech sypialni, każda z własną łazienką.
Energooszczędność - dom jest wyposażony w nowoczesne instalacje oraz bardzo dobre ocieplenia, dzięki czemu jest tani w eksploatacji.
Architektura domu Willa Parkowa 8A:
Dom zaprojektowany jest w stylu dworkowo-rezydencyjnym, z nowoczesnymi elementami. Bryła budynku jest prosta i harmonijna, z dużymi oknami i charakterystycznym łukowym świetlikiem na frontowej elewacji.
Strefa dzienna w domu Willa Parkowa 8A
Strefa dzienna domu jest bardzo przestronna i jasna. Salon połączony jest z jadalnią i kuchnią, tworząc jedno duże pomieszczenie. Salon ma wysokość do kalenicy, dzięki czemu jest bardzo jasny i przestronny. Kuchnia jest połączona z salonem wyspą kuchenną, co zapewnia wygodę i swobodę podczas gotowania.
Strefa nocna i gospodarcza w domu Willa Parkowa 8A
Strefa nocna domu składa się z trzech sypialni, każda z własną łazienką. Jedna z sypialni jest sypialnią master, z większą łazienką i garderobą. W strefie gospodarczej znajdują się garaż dwustanowiskowy, kotłownia i pralnia.
Energia i energooszczędność w projekcie domu
Willa Parkowa 8 A została zaprojektowana w zgodzie z najnowszymi standardami energooszczędności. Dom jest wyposażony w nowoczesne instalacje oraz bardzo dobre ocieplenia, dzięki czemu jest tani w eksploatacji.
Jeśli szukasz stylowego, funkcjonalnego i przestronnego domu na jeden poziom, który będzie energooszczędny, to Willa Parkowa 8 A jest idealnym wyborem dla Ciebie.
Zalety projektu domu Willa Parkowa 8A:
- stylowy projekt domu
- funkcjonalny dom z poddaszem
- dom wyjątkowy architektonicznie
- przestronny układ wnętrza
- dom rodzinny z potencjałem
- styl dworkowy w pięknym nowoczesnym wydaniu




















