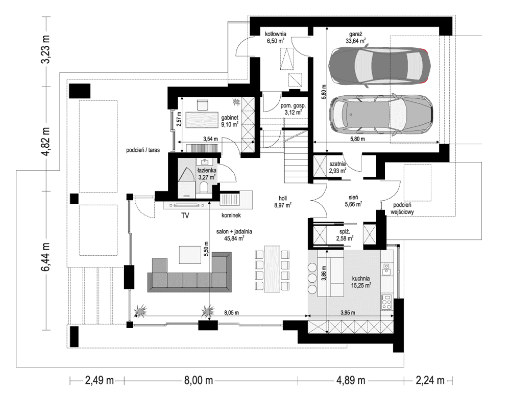
Projekt domu Willa Floryda 6 to kolejny wariant projektu domu jednorodzinnego z serii „Willa Floryda”, będący odpowiedzią na pytania wielu Inwestorów o wersję o mniejszej powierzchni użytkowej. Dom jest nowoczesną miejską willą, o jednopiętrowej bryle, przykrytą wielospadowym dachem z szerokim gzymsowaniem, z dobudowanymi parterowymi częściami garażu i zadaszeniem nad tarasem. Nowoczesną stylistykę budynku podkreślają poziome podziały elewacji w kontrastujących kolorach, duże okna z narożnymi przeszkleniami, belki wokół głównego rdzenia bryły i dominujący nad wejściem wykusz piętra. Architektura domu jest nietuzinkowa, nowoczesna i bardzo efektowna. Willa mimo nieprzesadzonej wielkości prezentuje się jak prawdziwa mini-rezydencja. Budynek na pewno zrobi wrażenie i długo będzie się wyróżniał swoim stylem wśród sąsiedniej zabudowy. Do wnętrza wchodzimy przez ładny podcień i podest wprost do obszernego przedsionka z szatnią, a następnie do części dziennej połączonego salonu, holu i jadalni. Częściowo oddzielona kuchnia z pięknym narożnym oknem z widokiem na front dopełnia wnętrze dzienne. Przeszklenia salonu pozwalają na usytuowanie budynku na działce zarówno z ogrodem z tyłu jak i z boku domu. Z salonu wychodzimy na duży taras, częściowo zadaszony podcieniem i pergolą. Na parterze mamy do dyspozycji jeszcze dodatkowy pokój – gabinet, oraz cześć gospodarczą z kotłownią i garażem. Na piętro dostajemy się wygodnymi schodami i mamy tam przewidziane dwie sypialnie dziecięce, z dużą łazienką i pralnią, oraz apartament rodziców z własną łazienką i garderobą. Pomieszczenia można dowolnie kształtować i zmieniać ustawienie ścianek działowych, dzięki zastosowaniu monolitycznych stropów żelbetowych. Willa Floryda 6 jest wygodnym komfortowym domem dla 4-5 osobowej rodziny. W budynku zastosowano nowoczesne materiały i rozwiązania technologiczne. Dzięki energooszczędnym instalacjom i dobrym izolacjom budynek będzie niedrogi w utrzymaniu i eksploatacji. Konstrukcja domu nie jest wbrew pozorom bardzo skomplikowana (główną trudnością są tutaj dwa stropy żelbetowe). Willa Floryda 6 to propozycja dla osób preferujących nowoczesną architekturę, poszukujących oryginalnego projektu, jednocześnie domu o nieprzesadzonej skali i powierzchni. Istnieje możliwość dostosowania projektu do standardu NF40. Zapraszamy!
Zapraszamy do zapoznania się z pełną ofertą pracowni: projekt domu Willa Floryda, projekt domu Willa Floryda 2, projekt Willa Floryda 3, projekt domu Willa Floryda 4, projekt domu Willa Floryda 5, projekt Rezydencja Floryda, projekt Rezydencja Floryda 2, projekt domu Willa Floryda 7, projekt domu Willa Floryda 8.
Materiały:
- Fundamenty betonowe ławy i ściany fundamentowe z bloczków betonowych
- Ściany zewnętrzne ściany murowane - pustaki porotherm 25 + styropian
- Strop monolityczny betonowy
- Elewacje tynk cienkowarstwowy
- Pokrycie dachu blacha na rąbek




















