Projekt domu Willa Parkowa 6 Modern A - nowoczesna rezydencja dla wymagających
Projekt Willa Parkowa 6 modern A to dom parterowy z poddaszem do adaptacji, w zasadzie przestrzeń na strychu to potencjał wykonania dużego poddasza. Projekt to nowoczesna i stylowa rezydencja, która doskonale sprawdzi się na rozległej działce. Dom jest funkcjonalny i wygodny w użytkowaniu. Dzięki dużej powierzchni użytkowej i przestronnym pomieszczeniom może pomieścić nawet dużą rodzinę.
Willa Parkowa 6 modern A to doskonała propozycja dla osób, które szukają nowoczesnej i stylowej rezydencji na rozległej działce. Dom jest funkcjonalny i wygodny w użytkowaniu. Dzięki dużej powierzchni użytkowej i przestronnym pomieszczeniom może pomieścić nawet dużą rodzinę.
Dlaczego warto wybrać projekt Willa Parkowa 6 Modern A?
Nowoczesna stylistyka - dom wyróżnia się na tle tradycyjnej zabudowy eleganckimi elewacjami, dużymi przeszkleniami i łagodnym dachem.
Funkcjonalny układ - na parterze znajduje się wszystko, co niezbędne do życia, w tym przestronna strefa dzienna, wygodne sypialnie i łazienki.
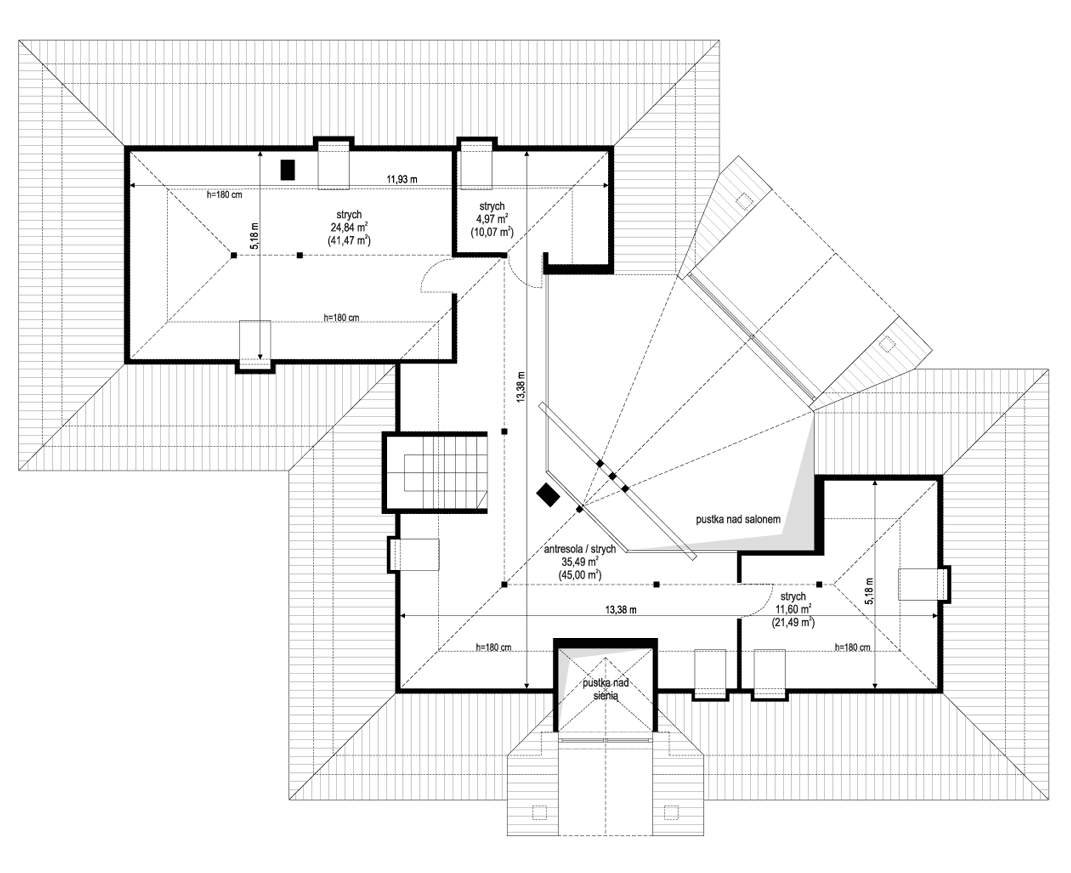
Przestrzeń do dowolnej aranżacji - na górnej kondygnacji znajduje się przestrzeń, którą można zagospodarować na poddasze użytkowe lub strych.
Co znajdziemy w domu Willa Parkowa 6 Modern A?
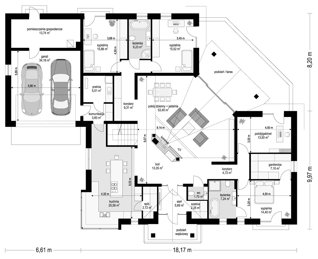
Strefa dzienna - składa się z salonu z kominkiem, jadalni i kuchni. Salon jest dwukondygnacyjny, z piękną przeszkloną elewacją.
Sypialnie - w domu znajdują się 4 sypialnie, każda z własną łazienką. Jedna z sypialni to apartament master z garderobą i gabinetem.
Pozostałe pomieszczenia - w domu znajduje się również garaż, pralnia, kotłownia i spiżarnia.
Zalety projektu domu Willa Parkowa 6 Modern A:
- nowoczesna architektura
- funkcjonalny układ pomieszczeń
- duża powierzchnia użytkowa
- przestronna bryła domu
- duże przeszklenia
- możliwość zagospodarowania poddasza
Architektura domu Willa Parkowa 6A
Dom ma kształt litery L z dobudowaną częścią garażową. Bryła budynku jest prosta i symetryczna, z wyraźnie zaznaczonym podziałem na parter i poddasze. Elewacje wykonano z tynku cienkowarstwowego w różnych kolorach, co nadaje budynkowi nowoczesnego i dynamicznego charakteru. Dopełnieniem aranżacji są duże przeszklenia, które zapewniają optymalną ilość światła dziennego i łączą wnętrze z otaczającą naturą.
Rozkład pomieszczeń w domu Willa Parkowa 6a
Na parterze budynku znajduje się strefa dzienna i nocna. Strefa dzienna obejmuje przestronny salon z jadalnią, kuchnię z wyspą oraz wiatrołap. Salon jest dwukondygnacyjny, z dużymi przeszkleniami wychodzącymi na ogród. Dzięki temu wnętrze jest jasne i pełne naturalnego światła. Kuchnia jest funkcjonalna i wygodna w użytkowaniu. Wyposażona jest w nowoczesne sprzęty AGD, a jej centralnym punktem jest wyspa z blatem roboczym i barowymi hokerami.
Opinie projekt domu Willa Parkowa 6A:
"Piękny dom, który spełnia wszystkie wymagania
Jesteśmy bardzo zadowoleni z projektu Willa Parkowa 6 Modern A. Dom jest piękny, nowoczesny i spełnia wszystkie nasze wymagania.
Od początku wiedzieliśmy, że chcemy mieć duży dom, w którym będzie dużo przestrzeni. Ten projekt idealnie się w to wpisuje. Na parterze mamy przestronny salon z jadalnią, kuchnię z wyspą, trzy sypialnie z łazienkami oraz gabinet. To wszystko zapewnia nam komfort i swobodę. Bardzo podoba nam się też nowoczesna stylistyka budynku. Elewacje w różnych kolorach nadają mu elegancki i stylowy wygląd."- Marek




















