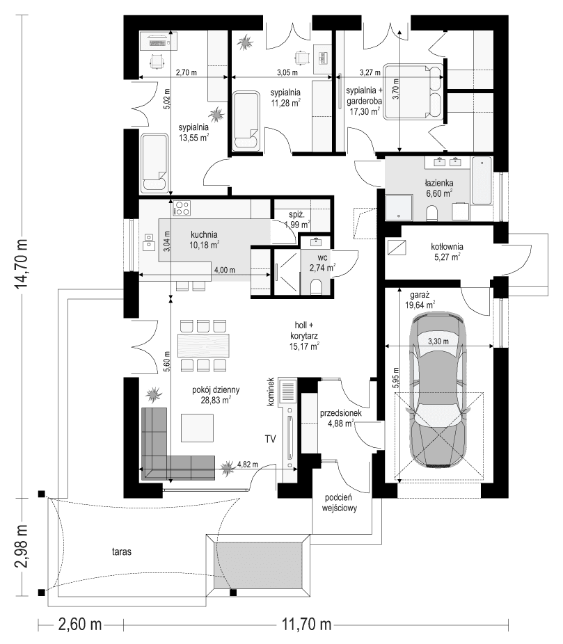
Projekt domu Dom na Słonecznej to projekt parterowego domu jednorodzinnego przeznaczonego dla 3- 4-osobowej rodziny. Dom został zaprojektowany z myślą o działkach z niekorzystnym usytuowaniem w stosunku do stron świata i nasłonecznienia. Dzięki lokalizacji salonu i części dziennej we frontowo-bocznym narożniku budynku, wnętrze jest bardzo dobrze oświetlone. Bryła domu zaprojektowana została na planie prostokąta, przykrytego czterospadowym łagodnym dachem, kryjącym w sobie przestrzeń strychową wygospodarowaną w przestrzeni konstrukcji dachowej z wiązarów prefabrykowanych. Bryła domu jest bardzo prosta, konstrukcja budynku również, dzięki czemu dom jest nieskomplikowany w budowie. Architektura budynku jest nowoczesna. Elewacje urozmaicono dużymi atrakcyjnymi przeszkleniami okien, oraz kontrastującymi kolorystycznie fragmentami ścian. Dach budynku pokryty jest blachą na rąbek stojący. Wejście do domu zaakcentowano podcieniem z szerokimi nowoczesnymi drzwiami wejściowymi z naświetlem bocznym. Wnętrze domu podzielone zostało na trzy części. Obszernym przedsionkiem wchodzimy do części dziennej połączonego salonu, holu i kuchni. W salonie wygospodarowano część wypoczynkową z narożnym siedziskiem i ścianą telewizyjno -kominkową, oraz jadalnię. Otwarta kuchnia z półwyspem, spiżarnią i ścianą z pełną zabudową, powiększa dodatkowo wnętrze. Z centralnie usytuowanego holu przechodzimy korytarzem wgłęb domu do części nocnej z sypialniami, gdzie znajdują się dwa pokoje dziecięce z łazienką, oraz sypialnia rodziców z garderobami. Uzupełnieniem programu użytkowego jest część gospodarcza, czyli dostępny z przedsionka garaż i pomieszczenie kotłowni. Wnętrze domu jest bardzo wygodne i komfortowe i odpowiada na wszystkie potrzeby czteroosobowej rodziny. Dodatkowo, dzięki usytuowaniu salonu, ogródek może znajdować się z boku domu, lub od frontu - przy wycofaniu budynku wgłęb działki. Takie rozwiązanie jest optymalne dla działek z wjazdem od południa lub południowego wschodu. Budynek jest energooszczędny - ma bardzo dobre izolacje i zastosowane nowoczesne instalacje. Dom ma prostą konstrukcję i będzie łatwy i niedrogi z budowie. Dom na Słonecznej jest doskonałą propozycją dla Klientów oczekujących prostego sensownego budynku, bez przesadnych udziwnień i ozdobników, domu który nie będzie wymagał wiecznego serwisowania i poprawiania, budynku o ponadczasowej architekturze, który się szybko nie znudzi i nie zestarzeje.
Materiały:
- Fundamenty betonowe ławy i ściany fundamentowe z bloczków betonowych
- Ściany zewnętrzne ściany murowane - bloczki gazobetonowe 24 cm + styropian
- Strop wiązary drewniane prefabrykowane z przestrzenią strychową
- Elewacje tynk cienkowarstwowy
- Pokrycie dachu blacha na rąbek




















