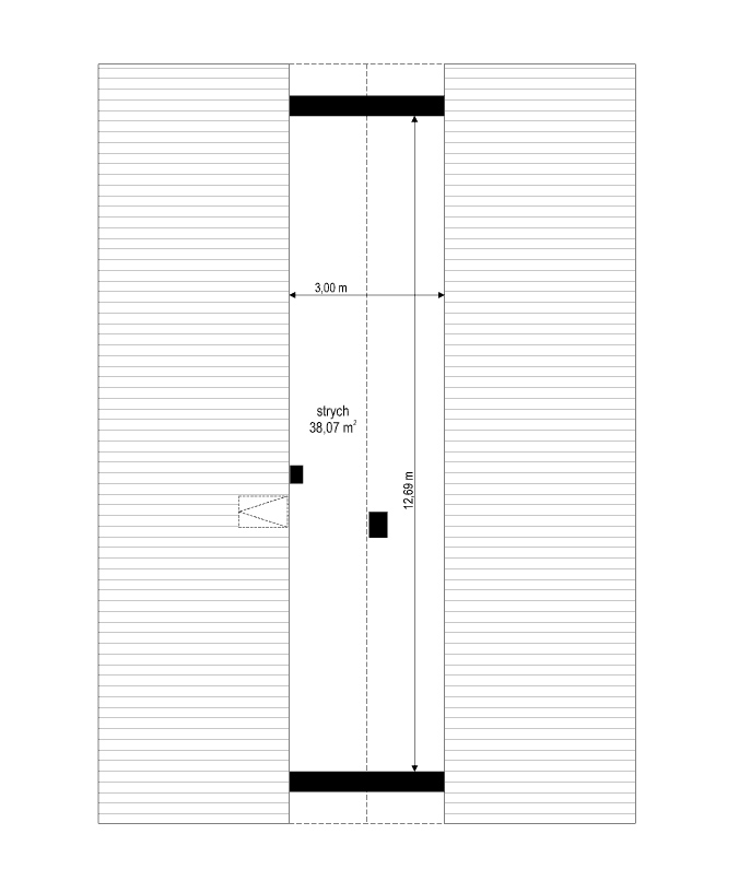
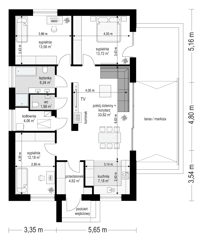
Projekt domu Dom na Przytulnej to projekt niewielkiego parterowego domu jednorodzinnego z serii „Dom na Przytulnej” - wariant podstawowy, najprostszy. Budynek zaprojektowano z przeznaczeniem dla 3- 4-osobowej rodziny, z całym programem użytkowym mieszczącym się na jednej kondygnacji. Dom założono na planie prostokąta, przykrytego dwuspadowym łagodnym dachem. Architektura budynku jest nowoczesna, o oszczędnym detalu, bez zbędnych ozdób i udziwnień. Sensem domu jest prostota i funkcjonalność, oraz myślenie o późniejszej bezproblemowej eksploatacji. Elewacje domu zdobią duże przeszklenia okien i fragmenty ścian w kontrastującym kolorze. Wejście zaakcentowane zostało ciekawym zadaszeniem osłaniającym podest. Od strony ogrodowej główne skrzypce grają szerokie drzwi balkonowe łączące salon z tarasem. Wnętrze domu zaprojektowano dzieląc je na dwie części: na przestrzeń dzienną z salonem i kuchnią, oraz na część z trzema sypialniami i pomieszczeniami pomocniczymi. Na środku domu ustawiona została masywna ściana telewizyjno-kominkowa, za którą korytarzem dostajemy się do sypialni, łazienek i pomieszczenia gospodarczego. W salonie mamy zestaw mebli wypoczynkowych, oraz wygodny stół jadalny. Otwarta kuchnia powiększa przestrzennie pokój dzienny. Otwarcie salonu na taras i ogród stanowi atrakcję i powiększa optycznie wnętrze, a dodatkowe wyjście z sypialni rodziców na taras jest jeszcze jednym uroczym dodatkiem. Budynek ma bardzo prostą konstrukcję. Cała bryła zamknięta jest czterema ścianami prostokątnego rzutu - prościej się nie da. Ściany zwieńczone są dwuspadowym dachem w konstrukcji z wiązarów - również proste i ekonomiczne rozwiązanie. W przestrzeni dachu przewidziano oczywiście strych jako dodatkowe miejsce do zagospodarowania na domowy magazyn. Budynek jest bardzo dobrze ocieplony i wyposażony w nowoczesne instalacje, dzięki czemu jest energooszczędny. Jego eksploatacja będzie bardzo niedroga. Do tego prosta forma i łatwa konstrukcja domu znakomicie ułatwią i przyspieszą budowę, oraz ułatwią późniejszą eksploatację i serwisowanie budynku. „Dom na Przytulnej” to propozycja małego niedrogiego domu, dla Inwestorów nie planujących stracić fortuny na budowę, chcących mieszkać wygodnie i komfortowo w swoim małym funkcjonalnym „M”.
Materiały:
- Fundamenty betonowe ławy i ściany fundamentowe z bloczków betonowych
- Ściany zewnętrzne ściany murowane - bloczki gazobetonowe 24 cm + styropian
- Strop wiązary drewniane prefabrykowane z przestrzenią strychową
- Elewacje tynk cienkowarstwowy
- Pokrycie dachu dachówka




















