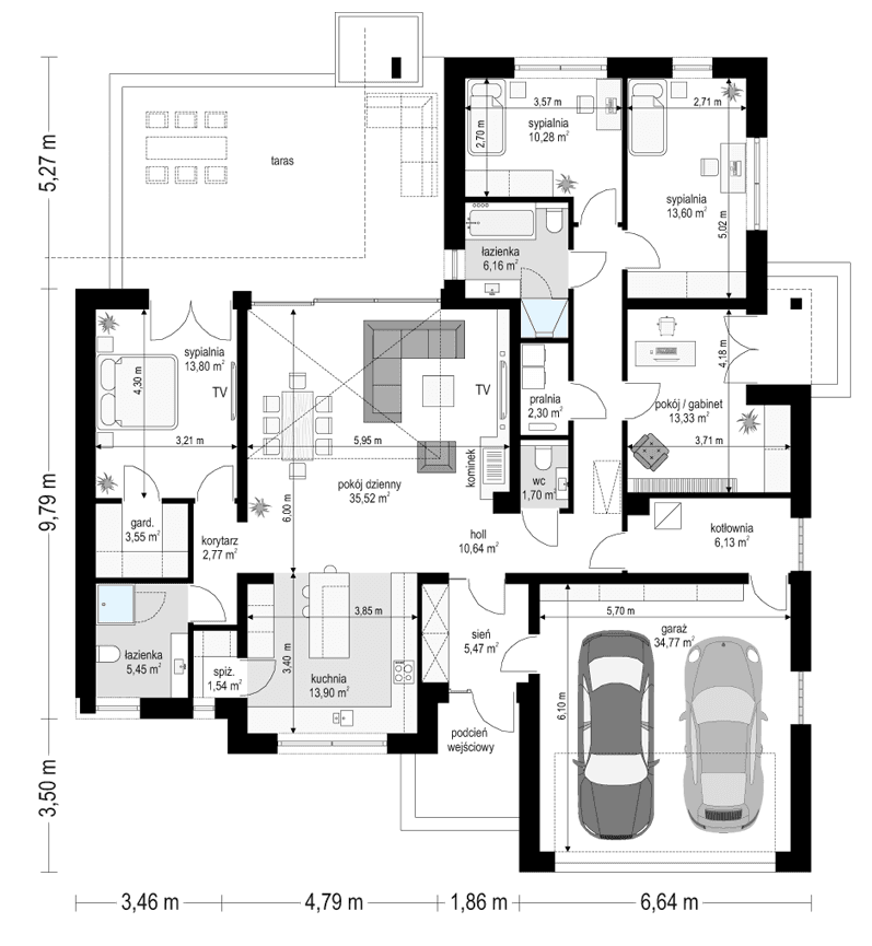
Projekt domu Willa parterowa 3 jest kolejną wersją wariantową domu z cieszącej się dużą popularnością serii projektów „ Willa parterowa”. Willa parterowa 3 to budynek nieco mniejszy, o węższej elewacji frontowej - nadający się na węższą działkę, z głębszą bryłą wchodzącą bardziej w ogród. Projekt przeznaczony dla 4-5osobowej rodziny, parterowy, przykryty wielospadowym dachem zbudowanym na rzucie w kształcie litery „T”. Nowoczesna architektura budynku, z ciekawymi materiałami i detalami wykończeniowymi, schowana jest pod tradycyjnym łagodnym dachem przykrytym dachówką ceramiczną. Budynek daje wrażenie porządnego i solidnego. Mimo niewielkiej powierzchni użytkowej dom sprawia wrażenie dużej willi o rozłożystej bryle. Sylwetka zewnętrza domu została uatrakcyjniona poziomymi podziałami elewacji, oraz dużymi przeszkleniami. Okna połączone z wstawkami z kontrastującego tynku i okładzinami drewnianymi lub drewnopodobnymi dodają dodatkowego sznytu. Do wnętrza wchodzimy szerokimi drzwiami z naświetlem, przez obszerny przedsionek z szafami, połączony z garażem, wprost do przestrzeni dziennej połączonych pomieszczeń salonu, holu i kuchni. Część dzienna w centralnym miejscu domu z oknami na przestrzał całego wnętrza, z widokiem zarówno na front posesji jak i taras z ogrodem to bardzo korzystne rozwiązanie. Od frontu mamy ładną kuchnię z wyspą, spiżarnią, i z dużym szerokim oknem. Od strony tarasu - ustawny salon z wygodnym stołem jadalnym i meblami wypoczynkowymi przy ścianie telewizyjno – kominkowej. Szerokie przesuwne drzwi balkonowe otwierają wnętrze na czesiowo zadaszony piękny taras. Nad częścią salonu zaprojektowano otwartą przestrzeń sufitu aż do skosu dachu, dzięki czemu pokój dzienny jest wyższy i dodatkowo doświetlony świetlikami w połaci dachu. Z salonu przedostajemy się do dwóch części z sypialniami - apartamentu państwa domu w jednym końcu budynku i pozostałymi pokojami dziecięcymi po przeciwległej stronie wnętrza. Sypialnia rodziców ma własne wejście na taras i ogród, oraz garderobę i łazienkę. Część z sypialniami dziecięcymi obejmuje trzy pokoje, łazienkę i pomieszczenie na pralkę, suszarkę, oraz kosze do prania. Całość wnętrza domyka dwustanowiskowy garaż i pomieszczenie gospodarcze kotłowni. Nad parterem zaprojektowano obszerną przestrzeń strychową, którą można w dowolny sposób zaadaptować i wykorzystać. Budynek ma dość prostą konstrukcję, a brak żelbetowego stropu płytowego nad parterem zdecydowanie uprości, przyspieszy i obniży koszt budowy.
W projekcie zastosowano bardzo dobre izolacje termiczne i nowoczesne instalacje, dzięki czemu dom będzie tani w późniejszej eksploatacji.
Willa Parterowa 3 jest świetną propozycją dla Inwestorów planujących budowę nowoczesnego, komfortowego, średniej wielkości domu parterowego, marzących o mieszkaniu na jednej kondygnacji, blisko otaczającego dom ogrodu. Zapraszamy do zapoznania się z pełną ofertą pracowni MG Projekt: https://www.mgprojekt.com.pl/willa-parterowa, https://www.mgprojekt.com.pl/willa-parterowa-2, https://www.mgprojekt.com.pl/willa-parterowa-2-wariant-b, https://www.mgprojekt.com.pl/willa-parterowa-2-wariant-c, https://www.mgprojekt.com.pl/willa-parterowa-2-wariant-d, https://www.mgprojekt.com.pl/willa-parterowa-3, https://www.mgprojekt.com.pl/willa-parterowa-3-wariant-b, https://www.mgprojekt.com.pl/willa-parterowa-4, https://www.mgprojekt.com.pl/willa-parterowa-4-wariant-b, https://www.mgprojekt.com.pl/willa-parterowa-wariant-b, https://www.mgprojekt.com.pl/willa-parterowa-wariant-c, https://www.mgprojekt.com.pl/willa-parterowa-wariant-d, https://www.mgprojekt.com.pl/willa-parterowa-wariant-e.
Materiały:
- Fundamenty betonowe ławy i ściany fundamentowe z bloczków betonowych
- Ściany zewnętrzne ściany murowane - pustaki porotherm 25 + styropian
- Strop strop i więźba z wiązarów drewnianych prefabrykowanych (MG dachy)
- Elewacje tynk cienkowarstwowy
- Pokrycie dachu dachówka




















