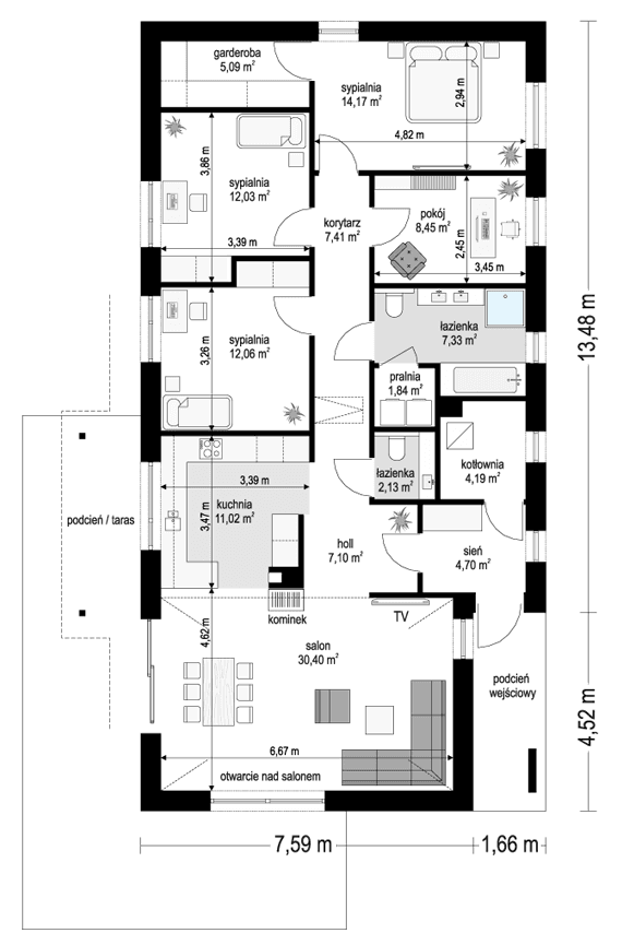
Projekt domu Wąski 2 jest to kolejny projekt z popularnej serii domów „Wąski" z biura MG Projekt. Jak sama nazwa wskazuje, projekt przeznaczony jest na działki z wąskim bokiem od strony drogi dojazdowej. Budynek doskonale będzie pasował na parcelę z niekorzystną orientacją względem słońca - z wjazdem od południa. Wąskiego 2 można też postawić bokiem do frontu działki - wówczas staje się regularnym, typowym projektem na działkę z ogródkiem od południa lub zachodu. Bryłę budynku zamknięto w prostokątnym rzucie, z wyciętym narożnikiem podcienia wejściowego i przykryto ją dwuspadowym symetrycznym dachem. Architektura domu łączy w sobie prostotę i bezpretensjonalność, z właściwymi proporcjami, konsekwentną kolorystyką podkreślającą jakość i umiar. Minimalistyczna forma osłodzona jest kilkoma finezyjnymi detalami jak kontrastowe kolory ścian, okładziny drewniane elewacji, a przede wszystkim duże przeszklenia okien. Od strony wejścia najistotniejszym elementem jest podcień wejściowy. Od strony ogrodu pierwsze skrzypce grają narożne okna salonu, oraz taras w kształcie litery „L" - częściowo zadaszony. Jeżeli budynek jest posadowiony na wąskiej działce z wjazdem od południa, to jednocześnie z tej samej strony znajdują się: wejście z podjazdem dla auta, oraz taras z wyjściem na ogród. Te dwie funkcje są zostały w udany sposób wizualnie oddzielone - bez starty dla funkcjonalności wnętrza i wyglądu zewnętrznego budynku. Wnętrze domu składa się z dwóch części - otwartej jednoprzestrzennej części dziennej, oraz części prywatnej z sypialniami i łazienkami. Do budynku wchodzimy przez obszerny przedsionek wprost do holu, otwierającego się na salon i kuchnię. Pięknie doświetlony salon ma podniesiony sufit, dzięki czemu pokój dzienny wydaje się być jeszcze większy. Kuchnia oddzielona jest wizualnie ścianą kominkową z kominkiem będącym centralnym elementem wnętrza. Naprzeciwko narożnego kącika wypoczynkowego znajduje się ściana TV. Z części dziennej korytarzem przechodzimy do czterech pokoi sypialnych, z sypialnią master z własną garderobą. Najmniejszy pokój może pełnić funkcję gabinetu - domowego biura, albo być przerobiony na oddzielną łazienkę z sypialni master i dodatkową garderobę. Z korytarza dla wszystkich pokoi dostępna jest ładna duża łazienka z oddzielnym pomieszczeniem na pralkę, suszarkę i kosze do prania. Z przedsionka mamy dostęp do pomieszczenia gospodarczego kotłowni. Nad przestrzenią parteru do dyspozycji jest duża powierzchnia strychowo-magazynowa. „Wąski 2" ma prostą konstrukcję. Wszystkie prace murarskie i betoniarskie w budynku kończą się na wysokości wieńców nad parterem. Pozostałą część konstrukcji stanowi układ drewnianych wiązarów prefabrykowanych, będących zarówno stropem nad parterem, jak i więźbą dachową. Takie rozwiązanie znakomicie upraszcza budowę, przyspiesza ją i - przede wszystkim - zmniejsza koszt realizacji budynku. Dom jest energooszczędny - w projekcie zastosowano bardzo dobre izolacje termiczne, nowoczesne materiały i instalacje. Budynek będzie łatwy i niedrogi w budowie, oraz tani w przyszłej eksploatacji.
Wąski 2 to doskonała propozycja dla Inwestorów planujących budowę łatwej w realizacji, zgrabnej parterówki, która będzie miała ponadczasowy wygląd i klasę. To dobra propozycja dla Inwestorów mających trudną działkę, na której nie ma możliwości postawienia domu z typowym układem. Zapraszamy do zapoznania się z pełną ofertą pracowni MG Projekt: https://www.mgprojekt.com.pl/waski, https://www.mgprojekt.com.pl/waski-2, https://www.mgprojekt.com.pl/waski-3
Materiały:
- Fundamenty betonowe ławy i ściany fundamentowe z bloczków betonowych
- Ściany zewnętrzne ściany murowane - pustaki gazobetonowe 24 cm + styropian
- Strop i konstrukcja dachu wiązary prefabrykowane drewniane
- Elewacje tynk cienkowarstwowy
- Pokrycie dachu dachówka



















